1233 47th Avenue N, Saint Petersburg, FL 33703
Local realty services provided by:Gulf Shores Realty ERA Powered
1233 47th Avenue N,St Petersburg, FL 33703
$1,695,000
- 4 Beds
- 4 Baths
- 3,017 sq. ft.
- Single family
- Pending
Listed by: alex plotkin
Office: compass florida llc.
MLS#:TB8438885
Source:MFRMLS
Price summary
- Price:$1,695,000
- Price per sq. ft.:$422.17
About this home
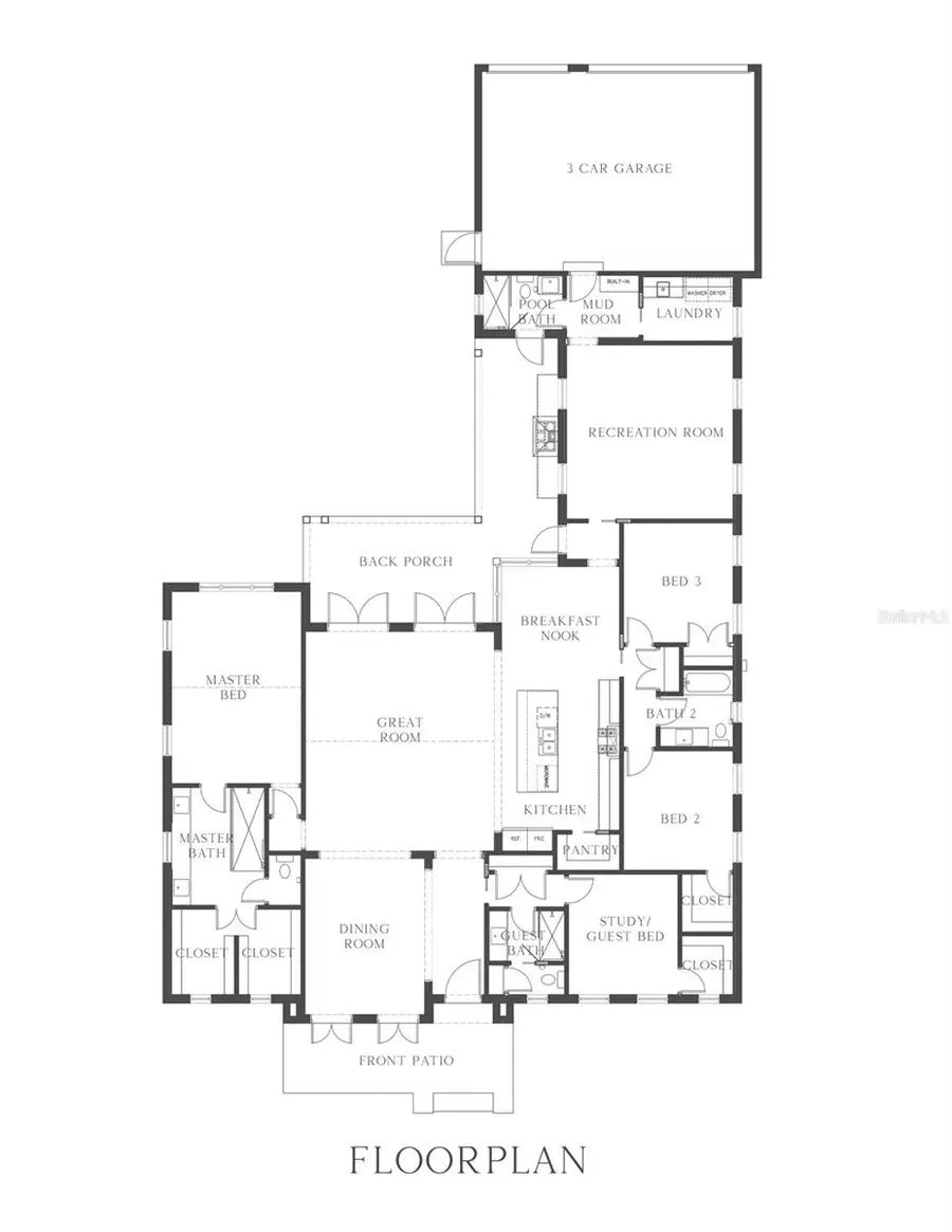
Est. Completion: Jan 2027. Would you love to live in St. Petersburg’s coveted Euclid Heights in a SINGLE-STORY HOME? Here’s your chance to make that dream a reality with Canopy Builders – St. Petersburg’s most TRUSTED name in luxury home construction. Located in a NON-FLOOD AND NON-EVACUATION ZONE, this brand-new ALL BLOCK build sits on an expansive lot measuring 70 x 127 sq ft and offers 4 Bedrooms + Study + Recreation room, 4 Baths, and an oversized 3-car garage. The main residence boasts a total of 3,033 sq ft under air. Surrounded by the neighborhood’s charming tree lined streets, this home blends modern luxury with timeless character. All of this, just a 10-minute drive to downtown St. Pete. Buyers currently have an EXCLUSIVE opportunity to personalize this home with the expertise of an in-house designer from the Canopy Builders team—but this chance won’t last long. A generous design allowance allows for the selection of customized finishes, ensuring every detail aligns seamlessly with the home's luxury specifications. Entering through the front corridor, you’re welcomed into the spacious great room, featuring vaulted ceilings. Off the great room sits the formal dining room and kitchen, complete with a breakfast nook, pantry, gas oven and range, and a large center island ideal for both cooking and gathering. The primary suite, located off the great room, also offers vaulted ceilings, dual closets, and a luxurious en suite bathroom with dual vanities. Featuring a split floor plan, the study or guest bedroom includes a full closet and a detached bathroom for added flexibility. Bedrooms two and three share a bathroom, providing both function and privacy. Toward the back of the home, a recreation room offers multipurpose space—perfect for entertaining, hobbies, or a playroom. Beyond the recreation room, you’ll find a full pool bathroom with shower, a mudroom with built-in cabinetry, and a laundry room with a sink for everyday convenience. Outside, double doors from the great room open to the covered back porch, featuring an outdoor kitchen—ideal for relaxing or entertaining by the pool. Several key features have already been planned including a tankless gas water heater, impact-resistant windows, and engineered hardwood flooring throughout. Additional luxury elements include 10’ ceilings throughout , 12’ ceilings in the great room and primary bedroom, as well as 8’ interior doors. Canopy’s signature gas sconce adds an elegant touch to the front porch. The large backyard offers ample space for lounging and entertaining. Enjoy a 10 minute drive to downtown St. Pete, 20-minute drive to St. Pete Beach and only 20 minutes to Tampa. Don’t miss the opportunity to make this breathtaking home yours today!...
Contact an agent
Home facts
- Year built:2026
- Listing ID #:TB8438885
- Added:160 day(s) ago
- Updated:March 27, 2026 at 07:47 AM
Rooms and interior
- Bedrooms:4
- Total bathrooms:4
- Full bathrooms:4
- Flooring:Hardwood, Tile
- Dining Description:Eat In Kitchen
- Kitchen Description:Dishwasher, Disposal, Eat-in Kitchen, Exhaust Fan, Kitchen/Family Room Combo, Microwave, Range, Range Hood, Refrigerator, Solid Surface Counters, Solid Wood Cabinets, Stone Counters
- Bedroom Description:High Ceilings, Primary Bedroom Main Floor, Walk-In Closet(s)
- Living area:3,017 sq. ft.
Heating and cooling
- Cooling:Central Air
- Heating:Central
- Central air:Yes
Structure and exterior
- Roof:Shingle
- Year built:2026
- Building area:3,017 sq. ft.
- Lot area:0.2 Acres
- Construction Materials:Block, Stucco
- Exterior Features:Lighting, Outdoor Grill, Outdoor Kitchen, Private Mailbox, Rain Gutters, Sidewalk, Sprinkler Metered
- Foundation Description:Slab
- Levels:1 Story
Utilities
- Water:Public
- Sewer:Public, Public Sewer
Finances and disclosures
- Price:$1,695,000
- Price per sq. ft.:$422.17
- Tax amount:$906 (2024)
Features and amenities
- Appliances:Dishwasher, Disposal, Exhaust Fan, Gas Water Heater, Irrigation Equipment, Microwave, Range, Range Hood, Refrigerator, Tankless Water Heater
- Laundry features:Inside, Laundry Room
- Amenities:Crown Molding, Eat-in Kitchen, High Ceilings, In Wall Pest System, Irrigation Equipment, Kitchen/Family Room Combo, Open Floorplan, Primary Bedroom Main Floor, Solid Surface Counters, Solid Wood Cabinets, Stone Counters, Thermostat, Walk-In Closet(s)
- Pool features:Public Pool
Parking
- Parking description:Attached Garage
- Garage:Yes
- Garage spaces:3
New listings near 1233 47th Avenue N
- Open Sun, 11am to 2pmNew
$825,000Active10 beds 6 baths2,378 sq. ft.2844 30th Avenue N, ST PETERSBURG, FL 33713
MLS# W7884253Listed by: MAYNARD PROPERTY GROUP LLC - New
$289,900Active-- beds -- baths414 sq. ft.13343 Gulf Boulevard #D14, ST PETERSBURG, FL 33708
MLS# TB8491141Listed by: J LONG REALTY GROUP LLC - New
$299,000Active2 beds 2 baths1,500 sq. ft.5745 Calais Boulevard N #2, ST PETERSBURG, FL 33714
MLS# A4687589Listed by: PREMIER SOTHEBY'S INTERNATIONAL REALTY - New
$359,000Active2 beds 2 baths1,130 sq. ft.4900 Brittany Drive S #301, ST PETERSBURG, FL 33715
MLS# TB8488142Listed by: REALTY ONE GROUP BEYOND - New
$599,900Active2 beds 2 baths1,560 sq. ft.1307 Pelican Creek Crossing #1307, ST PETERSBURG, FL 33707
MLS# TB8489927Listed by: RE/MAX PREFERRED - New
$1,690,000Active5 beds 3 baths2,886 sq. ft.1330 Cherry Street Ne, ST PETERSBURG, FL 33701
MLS# O6393648Listed by: THE SIMON SIMAAN GROUP - New
$209,000Active-- beds 1 baths425 sq. ft.130 4th Avenue N #106, ST PETERSBURG, FL 33701
MLS# TB8489148Listed by: KELLER WILLIAMS ST PETE REALTY - Open Sat, 11am to 1pmNew
$475,000Active3 beds 2 baths1,130 sq. ft.3911 14th Avenue N, ST PETERSBURG, FL 33713
MLS# TB8489230Listed by: KELLER WILLIAMS ST PETE REALTY - New
$229,000Active3 beds 2 baths1,296 sq. ft.6817 Mount Pleasant Road Ne #49, ST PETERSBURG, FL 33702
MLS# TB8490522Listed by: BAREFOOT REALTY GROUP - New
$495,000Active3 beds 2 baths1,628 sq. ft.2700 49th Street N, ST PETERSBURG, FL 33710
MLS# TB8490661Listed by: REAL BROKER, LLC