2410 Coffee Pot Boulevard Ne, Saint Petersburg, FL 33704
Local realty services provided by:Tomlin St Cyr Real Estate Services ERA Powered
Listed by: randy mosley, lisa genzer
Office: exp realty llc.
MLS#:TB8487123
Source:MFRMLS
Price summary
- Price:$2,700,000
- Price per sq. ft.:$692.31
About this home
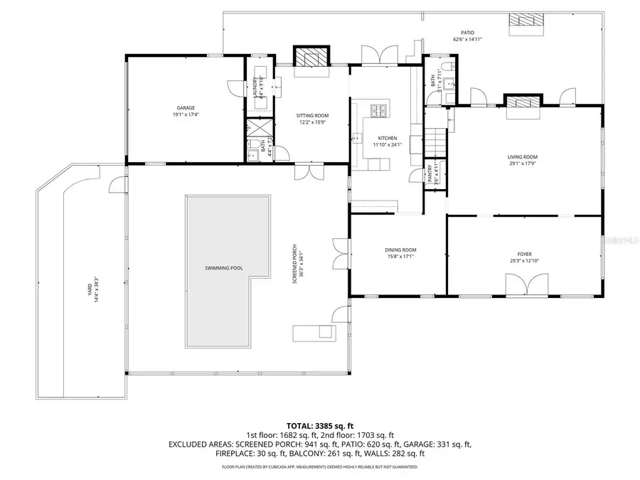
Set along the iconic curve of Coffee Pot Boulevard, and Coffee Pot Bayou, is this extraordinary 1925 Mediterranean-style residence offers a rare fusion of historic grandeur and modern coastal luxury. This 3,469 square foot home, listed on the Historic Register, has been meticulously restored. State-of-the-art appliances and modern technologies create the ultimate experience in comfort and luxury living. The property commands sweeping views of Coffee Pot Bayou from nearly every vantage point.
Classic Spanish Revival architecture defines the residence, with graceful Roman arches, refined millwork, and thoughtfully preserved details that honor its heritage. Three expansive bedrooms and four-and-a-half beautifully appointed baths provide both convenience and privacy. Interior upgrades include wide-plank wood floors, elegant crown molding. The compound boasts three gas fireplaces—two indoors and a dramatic outdoor centerpiece that anchors the home’s alfresco living spaces.
At the heart of the home, a custom-designed kitchen pairs timeless style with modern performance, featuring premium Thermador appliances, granite countertops, and bespoke finishes ideal for both intimate gatherings and refined entertainment.
Outdoor living is nothing short of exceptional. A private water lot located directly across the street includes a newly constructed dock and a 14,000-pound boat lift, offering effortless access to the bayou. A newly added second-floor patio provides a shaded retreat with tranquil water views, while the redesigned pool and entertainment area showcases a Pentair pool system, a high-end outdoor kitchen, a 98-inch Seura outdoor television, and a remote-controlled sunscreen—creating an idyllic setting for year-round coastal living.
The estate rests on a solid concrete foundation and has been extensively enhanced with renewed flooring throughout, waterproofed first-floor walls, copper downspouts, custom awnings and window treatments, and a striking handcrafted front door. Impact-resistant windows and doors ensure both beauty and resilience. Additional features include a solar-powered rear gate, renovated two-car garage, dual sump pumps, an advanced Aniks insect prevention system, and a modern tankless water heater.
Following water impact from Hurricane Helene, the entire first level and all flooring were comprehensively renovated, resulting in a cohesive, refreshed interior that seamlessly blends old-world charm with contemporary refinement.
Moments from downtown St. Petersburg’s vibrant arts scene, waterfront parks, and acclaimed dining, this distinguished residence stands as a timeless expression of Mediterranean elegance—offering an unparalleled lifestyle in one of the city’s most coveted waterfront enclaves....
Contact an agent
Home facts
- Year built:1925
- Listing ID #:TB8487123
- Added:49 day(s) ago
- Updated:May 11, 2026 at 11:48 AM
Rooms and interior
- Bedrooms:3
- Total bathrooms:5
- Full bathrooms:4
- Half bathrooms:1
- Flooring:Wood
- Kitchen Description:Cooktop, Dishwasher, Disposal, Microwave, Solid Wood Cabinets, Stone Counters
- Bedroom Description:Primary Bedroom Upstairs
- Basement Description:Concrete Perimeter
- Living area:3,479 sq. ft.
Heating and cooling
- Cooling:Central Air
- Heating:Natural Gas
- Central air:Yes
Structure and exterior
- Roof:Built-Up, Tile
- Year built:1925
- Building area:3,479 sq. ft.
- Lot area:0.23 Acres
- Architectural Style:Mediterranean
- Construction Materials:Concrete
- Exterior Features:Awning(s), Lighting, Outdoor Grill, Outdoor Kitchen, Patio, Rain Gutters
- Foundation Description:Concrete Perimeter
- Levels:2 Story
Schools
- High school:St. Petersburg High-PN
- Middle school:John Hopkins Middle-PN
- Elementary school:North Shore Elementary-PN
Utilities
- Water:Public, Water Available, Water Connected
- Sewer:Public Sewer, Sewer Available, Sewer Connected
Finances and disclosures
- Price:$2,700,000
- Price per sq. ft.:$692.31
- Tax amount:$23,608 (2025)
Features and amenities
- Appliances:Cooktop, Dishwasher, Disposal, Dryer, Gas Water Heater, Irrigation Equipment, Microwave, Washer
- Laundry features:Dryer, Inside, Washer
- Amenities:Built-In Features, Cable Available, Cable Connected, Ceiling Fans(s), Crown Molding, Electricity Available, Irrigation Equipment, Primary Bedroom Upstairs, Solid Wood Cabinets, Stone Counters, Thermostat, Window Treatments
- Pool features:Gunite, Heated, In Ground, Private Pool, Salt Water, Screen Enclosure, Sweep
Parking
- Parking description:Attached Garage
- Garage:Yes
- Garage spaces:2
New listings near 2410 Coffee Pot Boulevard Ne
- New
$650,000Active2 beds 2 baths1,367 sq. ft.1010 Central Avenue #436, ST PETERSBURG, FL 33705
MLS# TB8505738Listed by: KELLER WILLIAMS ST PETE REALTY - New
$85,000Active0.11 Acres3519 3rd Avenue S, ST PETERSBURG, FL 33711
MLS# TB8506925Listed by: RE/MAX REALTY UNLIMITED - Open Sun, 2 to 4pmNew
$499,900Active3 beds 2 baths1,484 sq. ft.6901 17th Lane N, ST PETERSBURG, FL 33702
MLS# A4690729Listed by: CHARLES RUTENBERG REALTY INC - New
$259,000Active1 beds 1 baths668 sq. ft.5107 Salmon Drive Se #C, ST PETERSBURG, FL 33705
MLS# TB8507138Listed by: KELLER WILLIAMS ST PETE REALTY - New
$550,000Active3 beds 3 baths2,100 sq. ft.545 Pinellas Bayway S #302, ST PETERSBURG, FL 33715
MLS# TB8506496Listed by: SUNBELT REAL ESTATE FLORIDA - New
$5,295,000Active5 beds 4 baths4,630 sq. ft.386 26th Avenue Se, ST PETERSBURG, FL 33705
MLS# TB8506901Listed by: RE/MAX ACTION FIRST OF FLORIDA - New
$410,000Active4 beds 2 baths1,581 sq. ft.4811 Emerson Avenue S, ST PETERSBURG, FL 33711
MLS# TB8507092Listed by: INVESTING N FLORIDA, LLC
$649,900Active3 beds 2 baths1,792 sq. ft.625 Folsom Street S, ST PETERSBURG, FL 33707
MLS# TB8468483Listed by: RE/MAX PREFERRED- New
$535,000Active3 beds 3 baths1,635 sq. ft.602 51st Avenue N, ST PETERSBURG, FL 33703
MLS# TB8505574Listed by: LPT REALTY, LLC - New
$698,000Active3 beds 2 baths1,418 sq. ft.533 8th Avenue N, ST PETERSBURG, FL 33701
MLS# TB8507005Listed by: SWEET SPOT REALTY