3673 45th Way N, Saint Petersburg, FL 33713

Local realty services provided by:ERA American Suncoast
3673 45th Way N,St Petersburg, FL 33713
$265,000
  • 2 Beds
  • 2 Baths
  • 1,105 sq. ft.
  • Townhouse
  • Active
Listed by: tony baroni
Office: keller williams suburban tampa
MLS#:TB8480365
Source:MFRMLS

Price summary

  • Price:$265,000
  • Price per sq. ft.:$239.82
  • Monthly HOA dues:$150

About this home

Townhome living just got an upgrade — and this beautifully maintained home is ready for you. A charming courtyard welcomes you in, setting the tone for the warmth and care you’ll find throughout. Step inside to a welcoming foyer that opens into a thoughtfully designed main floor featuring gorgeous, carpet-free bamboo flooring that adds both style and durability. The kitchen offers sleek countertops, a deep stainless steel sink, and a stacked-stone accent on the breakfast bar that adds warmth and texture, blending function and charm. It flows seamlessly into the dining area, highlighted by a stylish chandelier, and into the open living room — creating an easy, connected space for everyday living or entertaining. Just beyond, enjoy a screened lanai, perfect for morning coffee or relaxing under those stunning Florida sunset skies. A convenient half bath completes the main level. Upstairs, both bedrooms provide comfortable retreats along with a full bath and a perfectly placed...

Contact an agent

contact an agent

Yes, I would like more information. Please use and/or share my information with an ERA®  affiliated agent to contact me about my real estate needs. By clicking Send message, I request to be contacted by phone or text message and consent to being contacted by automated means. I understand that my consent to receive calls or texts is not a condition of purchasing any property, goods, or services. Alternatively, I understand that I can access real estate services by email or I can contact the agent myself.

If an ERA®  affiliated agent is not available in the area where I need assistance, I agree to be contacted by a real estate agent affiliated with another brand owned or licensed by Anywhere Real Estate (BHGRE® , CENTURY 21® , Coldwell Banker® , Corcoran® , Sotheby's International Realty® ).
 I acknowledge that I have read and agree to theTerms of useandPrivacy notice

Home facts

  • Year built:1983
  • Listing ID #:TB8480365
  • Added:63 day(s) ago
  • Updated:April 30, 2026 at 12:58 PM

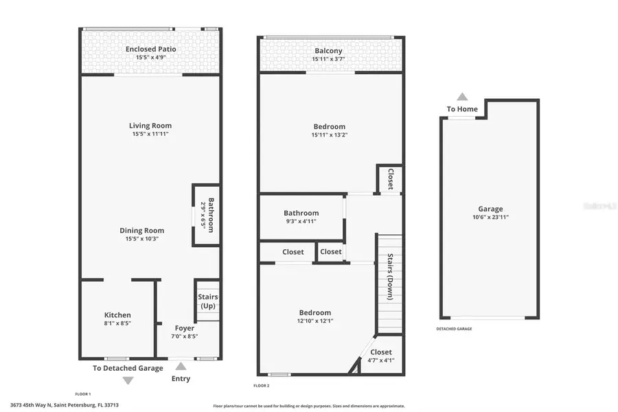
Rooms and interior

  • Bedrooms:2
  • Total bathrooms:2
  • Full bathrooms:1
  • Half bathrooms:1
  • Flooring:Bamboo, Ceramic Tile
  • Dining Description:Living Room/Dining Room Combo
  • Kitchen Description:Range, Refrigerator
  • Bedroom Description:Primary Bedroom Upstairs
  • Living area:1,105 sq. ft.

Heating and cooling

  • Cooling:Central Air
  • Heating:Central
  • Central air:Yes

Structure and exterior

  • Roof:Shingle
  • Year built:1983
  • Building area:1,105 sq. ft.
  • Lot area:0.04 Acres
  • Construction Materials:Frame
  • Exterior Features:Balcony, Courtyard, Rear Porch, Screened
  • Foundation Description:Slab
  • Levels:2 Story

Schools

  • High school:St. Petersburg High-PN
  • Middle school:Tyrone Middle-PN
  • Elementary school:Westgate Elementary-PN

Utilities

  • Water:Public
  • Sewer:Private Sewer, Public

Finances and disclosures

  • Price:$265,000
  • Price per sq. ft.:$239.82
  • Tax amount:$4,135 (2025)

Features and amenities

  • Appliances:Range, Refrigerator
  • Laundry features:Inside, Laundry Closet, Laundry Upper Level
  • Amenities:Ceiling Fans(s), Living Room/Dining Room Combo, Open Floorplan, Primary Bedroom Upstairs
  • Pool features:Public Pool

Parking

  • Parking description:Assigned, Garage Door Opener, Reserved
  • Garage:Yes
  • Garage spaces:1
MLS LogoThe information being provided by Stellar Mls is for the consumer's personal, non-commercial use and may not be used for any purpose other than to identify prospective properties consumer may be interested in purchasing. Any information relating to real estate for sale referenced on this web site comes from the Internet Data Exchange (IDX) program of the Stellar Mls. ERA American Suncoast is not a Multiple Listing Service (MLS), nor does it offer MLS access. This website is a service of ERA American Suncoast, a broker participant of Stellar Mls. This web site may reference real estate listing(s) held by a brokerage firm other than the broker and/or agent who owns this web site. The accuracy of all information, regardless of source, including but not limited to open house information, square footages and lot sizes, is deemed reliable but not guaranteed and should be personally verified through personal inspection by and/or with the appropriate professionals. The data contained herein is copyrighted by Stellar Mls and is protected by all applicable copyright laws. Any unauthorized dissemination of this information is in violation of copyright laws and is strictly prohibited. Properties in listings may have been sold or may no longer be available. Copyright 2026 Stellar Mls. All rights reserved.