202 Bedford Street #49, Sun City Center, FL 33573
Local realty services provided by:ERA Advantage Realty, Inc.
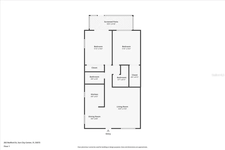
202 Bedford Street #49,Sun City Center, FL 33573
$99,900
- 2 Beds
- 2 Baths
- 960 sq. ft.
- Condominium
- Active
Listed by: tony baroni
Office: keller williams suburban tampa
MLS#:TB8463987
Source:MFRMLS
Price summary
- Price:$99,900
- Price per sq. ft.:$93.54
- Monthly HOA dues:$662
About this home
Embrace the sun-kissed retirement you’ve worked so hard for in the premier 55+ active adult destination of Sun City Center, Florida. This This 2-bedroom, 2-bathroom condo is the perfect canvas for your personal touch, offering a clean and bright living space with a practical layout that truly maximizes the Florida sunshine. You will immediately appreciate the easy-to-maintain flooring, featuring a mix of tile and vinyl with absolutely no carpet throughout the home—ideal for keeping things cool and simple. The dining room boasts plenty of natural light with space to gather for a family meal!
The spacious living area flows beautifully and is filled with an abundance of natural light, creating an airy atmosphere that feels open and welcoming. Step through to your private, screened-in porch to enjoy the gentle afternoon breeze in total comfort. And don’t forget to utilize your dedicated covered carport space to keep your vehicle protected from the elements. This community haven offers an incredible lifestyle where your daily worries melt away, especially since this community includes essential cable, high-speed internet, and convenient community transportation right in your monthly fees. Imagine starting your mornings with a peaceful stroll along the beautiful bike and walking paths or catching up with neighbors at one of the two vibrant community pools.
Whether you're looking to stay active on the tennis and pickleball courts or enjoy a friendly afternoon of shuffleboard, this community is designed to keep you moving and engaged. Life here is made even easier by the unique golf cart-friendly culture, allowing you to zip over to the on-site restaurant for a delicious meal or visit one of the active clubhouses without ever needing to start your car. With world-class medical facilities, shopping, and dining all accessible by your preferred electric ride, you’ll quickly see why so many choose this safe and welcoming neighborhood for their best years.
Beyond the gates, you are perfectly situated in the heart of the Tampa Bay-Sarasota corridor, putting you just minutes from professional sports, high-end entertainment, and the breathtaking white sand beaches of the Gulf Coast. Experience the perfect blend of small-town charm and resort-style luxury in a place that truly celebrates your freedom and vitality....
Contact an agent
Home facts
- Year built:1973
- Listing ID #:TB8463987
- Added:115 day(s) ago
- Updated:May 09, 2026 at 12:04 PM
Rooms and interior
- Bedrooms:2
- Total bathrooms:2
- Full bathrooms:2
- Flooring:Tile, Vinyl
- Kitchen Description:Range, Refrigerator
- Basement Description:Block
- Living area:960 sq. ft.
Heating and cooling
- Cooling:Central Air
- Heating:Central
- Central air:Yes
Structure and exterior
- Roof:Concrete, Metal
- Year built:1973
- Building area:960 sq. ft.
- Lot area:0.02 Acres
- Construction Materials:Concrete
- Exterior Features:Sidewalk
- Foundation Description:Block
- Levels:1 Story
Utilities
- Water:Public
- Sewer:Public, Public Sewer
Finances and disclosures
- Price:$99,900
- Price per sq. ft.:$93.54
- Tax amount:$29 (2024)
Features and amenities
- Appliances:Range, Refrigerator
- Laundry features:In Kitchen
- Amenities:Open Floorplan
- Pool features:Public Pool
Parking
- Parking description:1 Car Carport
- Carport spaces:1
New listings near 202 Bedford Street #49
- New
$460,000Active3 beds 2 baths2,079 sq. ft.1134 Signature Drive, SUN CITY CENTER, FL 33573
MLS# TB8500581Listed by: COASTAL PROPERTIES GROUP INTER - New
$115,000Active2 beds 2 baths960 sq. ft.101 Cambridge Trail #200, SUN CITY CENTER, FL 33573
MLS# TB8506188Listed by: DALTON WADE INC - New
$365,000Active3 beds 2 baths1,860 sq. ft.1364 Emerald Dunes Drive, SUN CITY CENTER, FL 33573
MLS# TB8506859Listed by: CENTURY 21 BEGGINS ENTERPRISES - New
$355,000Active2 beds 2 baths1,949 sq. ft.1525 Emerald Dunes Drive, SUN CITY CENTER, FL 33573
MLS# TB8506035Listed by: RE/MAX ALLIANCE GROUP - New
$424,900Active3 beds 2 baths2,031 sq. ft.2109 New Bedford Drive, SUN CITY CENTER, FL 33573
MLS# TB8506852Listed by: CENTURY 21 BEGGINS ENTERPRISES - New
$375,000Active5 beds 3 baths2,949 sq. ft.4436 Eternal Prince Drive, SUN CITY CENTER, FL 33573
MLS# C7525971Listed by: SOVEREIGN REAL ESTATE GROUP - Open Sat, 10am to 2pmNew
$297,500Active2 beds 2 baths1,503 sq. ft.660 Chipper Drive, SUN CITY CENTER, FL 33573
MLS# TB8500999Listed by: FLORIDA'S 1ST CHOICE RLTY LLC - New
$589,000Active3 beds 3 baths2,296 sq. ft.2208 Myrtle Vista Court, SUN CITY CENTER, FL 33573
MLS# TB8506307Listed by: RE/MAX COLLECTIVE - New
$319,900Active3 beds 2 baths1,986 sq. ft.2309 E Del Webb Boulevard, SUN CITY CENTER, FL 33573
MLS# TB8505762Listed by: HOMESMART SUNSHINE REALTY - New
$325,000Active3 beds 2 baths1,663 sq. ft.3711 Palmas Lane, SUN CITY CENTER, FL 33573
MLS# TB8505533Listed by: COASTAL PROPERTIES GROUP INTER