115 N Arrawana Avenue #8, Tampa, FL 33609
Local realty services provided by:ERA Advantage Realty, Inc.
115 N Arrawana Avenue #8,Tampa, FL 33609
$575,000
- 3 Beds
- 3 Baths
- 1,677 sq. ft.
- Townhouse
- Active
Listed by: tony baroni
Office: keller williams suburban tampa
MLS#:TB8475759
Source:MFRMLS
Price summary
- Price:$575,000
- Price per sq. ft.:$278.32
- Monthly HOA dues:$418
About this home
If you’ve been waiting for something that truly feels special in the heart of Tampa, this is it. This beautifully updated townhome offers three spacious bedrooms, a two-car garage, and the kind of thoughtful layout that just makes sense for everyday living.
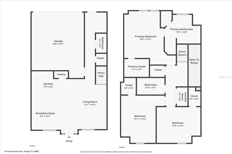
From the moment you walk inside, you can feel the care and intention that went into every upgrade. The first floor welcomes you with an open, airy living space that flows effortlessly from the stunning kitchen to the dining area and into the living room — perfect for entertaining or simply enjoying a quiet night at home. The kitchen is truly the heart of the home, featuring beautiful cabinetry, granite countertops, a gas range, a generous island for gathering, and a pantry for extra storage. A convenient half bath downstairs adds to the smart and functional layout.
Brand-new hardwood floors instantly elevate the space and create a warm, seamless flow throughout, and you’ll appreciate that there is no carpet anywhere in the home — giving it a clean, modern feel while making maintenance simple. Natural light pours in, highlighting the elegant finishes and thoughtful details at every turn.
Upstairs is where comfort meets convenience. All three bedrooms are spacious and filled with beautiful natural light. The primary suite feels like a true retreat, complete with a tray ceiling that adds architectural charm and dimension. The ensuite bath offers a soaking tub, a walk-in shower, and plenty of counter space, along with a large walk-in closet thoughtfully positioned outside of the bathroom. The two secondary bedrooms are generously sized and versatile, perfect for guests, a home office, or whatever your lifestyle calls for. The laundry room is also located upstairs — exactly where you need it — making daily routines that much easier.
The two-car garage provides ample space for both parking and additional storage, adding even more practicality to this already well-designed home.
This home strikes that rare balance of polished and welcoming. Tucked into one of the most convenient and loved pockets of the city, you’re just minutes from Hyde Park Village, SoHo, Downtown Tampa, Water Street, and the iconic Bayshore Boulevard. Morning coffee runs, dinner reservations, sunset walks along the water, Lightning games — it’s all right at your fingertips. With quick access to Kennedy Boulevard and Dale Mabry Highway, getting anywhere in the city is effortless. Refined yet comfortable, updated yet timeless, this home offers a lifestyle that’s as vibrant as Tampa itself!...
Contact an agent
Home facts
- Year built:2017
- Listing ID #:TB8475759
- Added:47 day(s) ago
- Updated:April 01, 2026 at 12:04 PM
Rooms and interior
- Bedrooms:3
- Total bathrooms:3
- Full bathrooms:2
- Half bathrooms:1
- Flooring:Wood
- Kitchen Description:Dishwasher, Microwave, Range, Refrigerator
- Bedroom Description:Primary Bedroom Upstairs
- Basement Description:Block
- Living area:1,677 sq. ft.
Heating and cooling
- Cooling:Central Air
- Heating:Central
- Central air:Yes
Structure and exterior
- Roof:Shingle
- Year built:2017
- Building area:1,677 sq. ft.
- Lot area:0.04 Acres
- Construction Materials:Stucco
- Exterior Features:Sidewalk
- Foundation Description:Block
- Levels:2 Story
Schools
- High school:Plant-HB
- Middle school:Wilson-HB
- Elementary school:Mitchell-HB
Utilities
- Water:Public
- Sewer:Public, Public Sewer
Finances and disclosures
- Price:$575,000
- Price per sq. ft.:$278.32
- Tax amount:$6,893 (2024)
Features and amenities
- Appliances:Dishwasher, Microwave, Range, Refrigerator
- Laundry features:Inside
- Amenities:Open Floorplan, Primary Bedroom Upstairs
- Pool features:Public Pool
Parking
- Parking description:Attached Garage
- Garage:Yes
- Garage spaces:2
New listings near 115 N Arrawana Avenue #8
- New
$340,000Active3 beds 2 baths1,204 sq. ft.4407 N 44th Street, TAMPA, FL 33610
MLS# TB8491105Listed by: APPLE HOMES CORP - New
$399,999Active11 beds 4 baths2,315 sq. ft.2002 E 33rd Avenue, TAMPA, FL 33610
MLS# TB8492762Listed by: DALTON WADE INC - Open Sat, 11am to 1pmNew
$440,000Active3 beds 2 baths1,372 sq. ft.1007 E Robson Street, TAMPA, FL 33604
MLS# TB8492375Listed by: BRAINARD REALTY - New
$350,000Active3 beds 2 baths1,306 sq. ft.10313 N Armenia Avenue, TAMPA, FL 33612
MLS# TB8492268Listed by: EXP REALTY LLC - New
$680,000Active4 beds 3 baths2,388 sq. ft.7205 N Lois Avenue, TAMPA, FL 33614
MLS# TB8491162Listed by: CHIRINO REAL ESTATE - Open Sat, 11am to 1pmNew
$499,900Active3 beds 2 baths1,444 sq. ft.4206 N Downing Avenue, TAMPA, FL 33603
MLS# TB8492376Listed by: BRAINARD REALTY - New
$319,000Active4 beds 2 baths970 sq. ft.8315 N 14th Street, TAMPA, FL 33604
MLS# TB8492712Listed by: REALTY HUB - New
$270,000Active4 beds 2 baths1,138 sq. ft.8008 N 12th Street, TAMPA, FL 33604
MLS# TB8492678Listed by: GENSTONE REALTY - New
$389,000Active3 beds 2 baths1,120 sq. ft.8419 N Ola Avenue, TAMPA, FL 33604
MLS# TB8492482Listed by: IMPACT REALTY TAMPA BAY - New
$869,000Active4 beds 2 baths2,059 sq. ft.208 S Ward Street, TAMPA, FL 33609
MLS# O6395255Listed by: BEYCOME OF FLORIDA LLC