1909 Kennedy Court, Terra Ceia, FL 34250
Local realty services provided by:Tomlin St Cyr Real Estate Services ERA Powered
Listed by: zorka vlasik
Office: charles rutenberg realty inc
MLS#:TB8487381
Source:MFRMLS
Price summary
- Price:$230,000
- Monthly HOA dues:$95
About this home
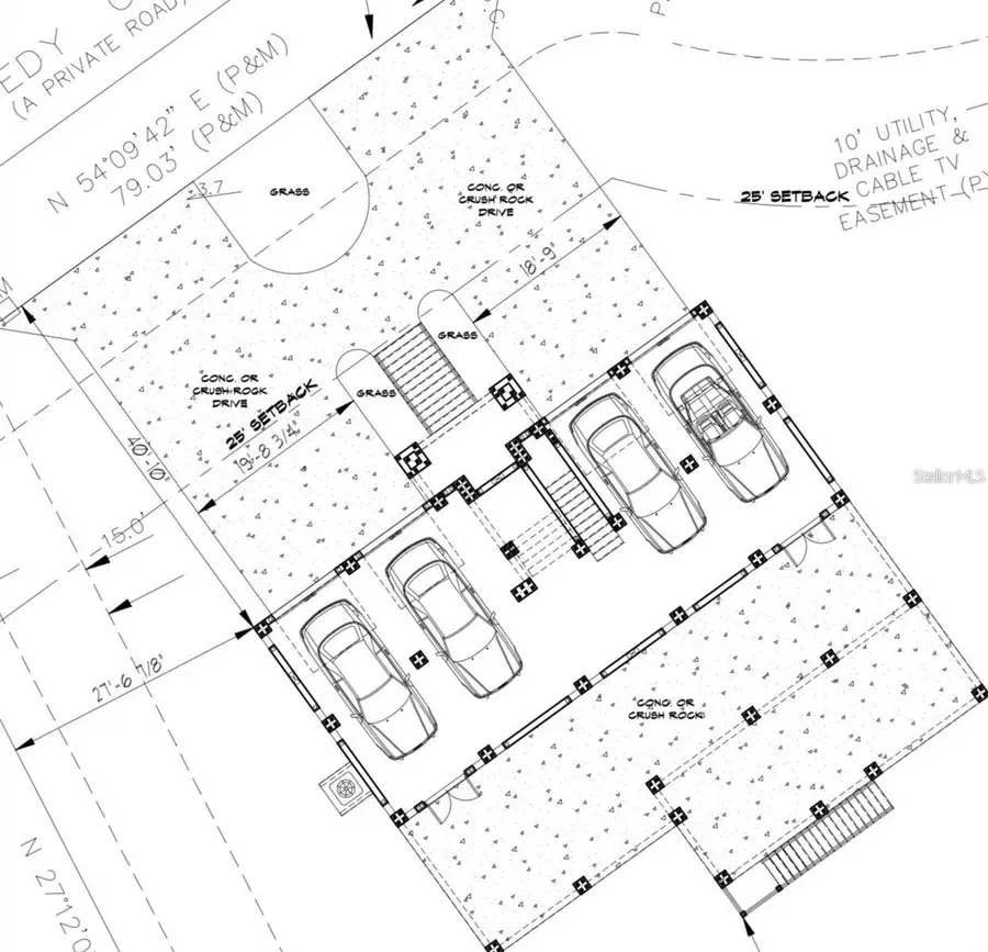
ATTENTION BUYER’s and INVESTORS - Huge Price Improvement! Sellers are motivated! This is the “All-inclusive” package you have been looking for! Welcome to Terra Ceia Island! Welcome to Paradise! This amazing vacant land already comes with "PERMIT READY" construction designs for a beautiful open concept 4 bed 2 ½ baths, office and 4 car garages. Are you ready to own your dream location, home or investment and to be built with abundance of storage, beauty and space? If yes, this is the ONE for you. Just over the Sunshine Skyway Bridge in Manatee County where Old Florida charm meets vibrant growth is one of the best kept secrets in West Central Florida, Terra Ceia Island! Own your piece of paradise in one of Terra Ceia's newest communities, Bayside. The Bayside subdivision has only 8 homesites. This homesite features almost one-half acre measuring 20,064 square feet (.46 acres). County water and underground utilities are completed and ready for hook up. The homesite backs up to a preserve and a multiple level home might offer water views and spectacular sightseeing of the Sunshine Skyway Bridge. It also includes irrigation water from the Bayside community well through the minimal priced homeowner's association. In addition, for a nominal annual fee membership in Terra Ceia VIA (Village Improvement Association) gives you access to the community's Seabreeze Park w/ private boat ramp, fishing dock & picnic facilities. Also, the island hosts the newest, most unique and family friendly oriented attraction in the area “Ananda Farm” which is a short drive or even a walking distance from the homesite. Lastly, Terra Ceia Island is a unique waterfront community featuring a 2000-acre park, mangrove forests, freshwater and saltwater wetlands, and 9 miles of hiking trails. Kayaking, fishing, and hiking are the primary activities within the preserve and island. For more information check the Florida State Parks website. A 2000-acre Old Florida strip of land along the mouth of Tampa Bay in a natural setting a little out of the way but within 25 minutes to Downtown St. Pete, and a short drive to Tampa, Bradenton, Lakewood Ranch, Sarasota and all of the beautiful Gulf Beaches (Siesta Key, Anna Maria, St. Pete Beach, Clearwater Beach). Welcome Home to Terra Ceia Island! Call today for more information and/or arrange a viewing! Updated Survey Available....
Contact an agent
Home facts
- Listing ID #:TB8487381
- Added:9 day(s) ago
- Updated:March 26, 2026 at 07:53 PM
Structure and exterior
- Lot area:0.46 Acres
- Levels:1 Story
Utilities
- Water:Public
- Sewer:Public Sewer
Finances and disclosures
- Price:$230,000
- Tax amount:$2,313 (2025)
Features and amenities
- Amenities:BB/HS Internet Available, Cable Available
- Pool features:Public Pool
New listings near 1909 Kennedy Court
- Open Sun, 11am to 2pmNew
$1,499,999Active3 beds 4 baths4,055 sq. ft.925 Bayshore Drive, TERRA CEIA, FL 34250
MLS# A4686443Listed by: COLDWELL BANKER REALTY - New
$1,500,500Active6.75 Acres7000 Us-19, TERRA CEIA, FL 34250
MLS# A4686617Listed by: WEICHERT REALTORS HALLMARK PRO
$849,900Pending3 beds 2 baths1,568 sq. ft.115 Burns Road, TERRA CEIA, FL 34250
MLS# A4682893Listed by: COLDWELL BANKER REALTY
$1,995,000Active4 beds 4 baths3,042 sq. ft.125 Burns Road, TERRA CEIA, FL 34250
MLS# L4958501Listed by: COMPASS FLORIDA LLC- Open Sun, 12 to 3pm
$1,399,000Active3 beds 2 baths2,113 sq. ft.910 Bayshore Drive, TERRA CEIA, FL 34250
MLS# A4674151Listed by: COLDWELL BANKER REALTY - Open Sat, 11am to 1pm
$997,500Active3 beds 3 baths2,582 sq. ft.1605 Center Road, TERRA CEIA, FL 34250
MLS# TB8467636Listed by: COASTAL PROPERTIES GROUP INTERNATIONAL
$2,600,000Active5 beds 4 baths3,636 sq. ft.1470 Bayshore Drive, TERRA CEIA, FL 34250
MLS# A4678311Listed by: KW SUNCOAST
$599,900Pending0.56 Acres1770 Bayshore Drive, TERRA CEIA, FL 34250
MLS# A4677680Listed by: INTEGRA REALTY GROUP INC
$525,900Pending4 beds 3 baths2,691 sq. ft.935 Bayshore Drive, TERRA CEIA, FL 34250
MLS# TB8459498Listed by: MCPEAK REAL ESTATE FIRM