78 Hutton Cove #Lot 55, Watersound, FL 32461
Local realty services provided by:ERA Neubauer Real Estate, Inc.
78 Hutton Cove #Lot 55,Watersound, FL 32461
$1,200,400
- 4 Beds
- 3 Baths
- 2,405 sq. ft.
- Single family
- Active
Listed by: builder services, lisa d jones
Office: watersound real estate
MLS#:997887
Source:FL_ECAR
Price summary
- Price:$1,200,400
- Price per sq. ft.:$499.13
About this home
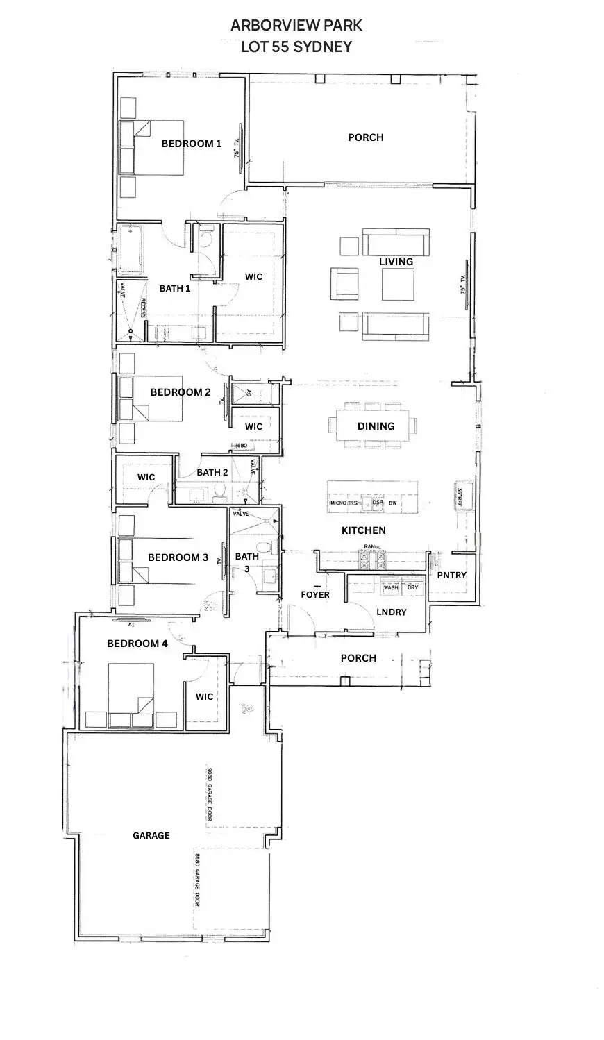
Welcome to the Sydney by Huff Homes, part of the Preserve Collection in the Arborview Park neighborhood of Watersound Origins. Positioned on a deep homesite exceeding 150 feet with a wooded view, this thoughtfully designed single-level home offers 4 bedrooms, 3 bathrooms, and a 2-car garage with space to add a future pool.
The open living, dining, and kitchen areas create a spacious central gathering space, highlighted by 12-foot sliding glass doors in the living room that open to a 12' x 24' screened rear porch, seamlessly connecting indoor and outdoor living.
The kitchen is designed for both function and style with quartz countertops, stainless steel appliances, a large island, and stacked glass upper cabinets that add visual interest and additional storage. The primary suite is privately positioned and features a well-appointed bath with a freestanding soaking tub, tiled shower, dual vanities, and a large walk-in closet. Each of the guest bedrooms includes generous walk-in closets, offering excellent storage throughout the home.
Additional upgrades include pre-wiring and a gas stub for a future generator, plumbing for a water filtration system, shiplap in the foyer, along hallway leading to garage and on kitchen island, solid core doors throughout, extra cabinets and basin sink in the laundry room, epoxy garage floor and EV car charger.
Homes in the Preserve Collection benefit from larger homesites that provide additional privacy and flexibility for outdoor living, including the opportunity to add a pool.
Estimated completion: end-June 2026
As part of Watersound Origins, often called "A Coastal Village," residents relish abundant amenities like the Village Commons resort-style pool, fitness center, sports courts, miles of nature trails, event lawns, and the Origins Golf Course. Surrounded by towering pines and just minutes from Lake Powell and the beaches of Scenic Highway 30A, this community blends natural beauty with easy access to Inlet Beach, Grayton Beach, and beyond. Upcoming highlights include the 15.5-acre Longleaf Art Park, opening in 2027, featuring cultural and recreational experiences....
Contact an agent
Home facts
- Year built:2026
- Listing ID #:997887
- Added:1 day(s) ago
- Updated:March 13, 2026 at 07:44 PM
Rooms and interior
- Bedrooms:4
- Total bathrooms:3
- Full bathrooms:3
- Rooms Total:7
- Kitchen Description:Dishwasher, Disposal, Microwave, Range Hood, Refrigerator/Icemaker, Stove/Oven Dual Fuel, Warranty Provided
- Living area:2,405 sq. ft.
Heating and cooling
- Central air:Yes
Structure and exterior
- Year built:2026
- Building area:2,405 sq. ft.
- Lot Features:Interior, Wooded
- Architectural Style:Craftsman Style
- Exterior Features:Sprinkler System
Schools
- High school:South Walton
- Middle school:Emerald Coast
- Elementary school:Dune Lakes
Utilities
- Water:Public Water, Tap Fee Paid
Finances and disclosures
- Price:$1,200,400
- Price per sq. ft.:$499.13
Features and amenities
- Appliances:Dishwasher, Disposal, Microwave, Range Hood, Refrigerator w/Ice Maker, Stove/Oven Dual Fuel
- Amenities:Kitchen Island, Pantry
Parking
- Garage:Yes
- Garage spaces:2
New listings near 78 Hutton Cove #Lot 55
- New
$877,640Active3 beds 3 baths2,750 sq. ft.1009 Suwannee Drive #Lot 2, Watersound, FL 32461
MLS# 997857Listed by: WATERSOUND REAL ESTATE - New
$887,640Active3 beds 3 baths1,960 sq. ft.1029 Suwannee Drive #Lot 4, Watersound, FL 32461
MLS# 997861Listed by: WATERSOUND REAL ESTATE - New
$1,001,920Active4 beds 4 baths2,750 sq. ft.999 Suwannee Drive #Lot 1, Watersound, FL 32461
MLS# 997852Listed by: WATERSOUND REAL ESTATE - New
$1,475,000Active4 beds 3 baths2,612 sq. ft.39 W Firethorn Circle, Watersound, FL 32461
MLS# 997591Listed by: SCENIC SOTHEBY'S INTERNATIONAL REALTY - New
$3,245,000Active3 beds 3 baths1,980 sq. ft.337 S Bridge Lane #312B, Watersound, FL 32461
MLS# 997480Listed by: SCENIC SOTHEBY'S INTERNATIONAL REALTY
$1,264,440Pending4 beds 5 baths2,883 sq. ft.75 Pollard Cove East #Lot 8, Watersound, FL 32461
MLS# 987411Listed by: WATERSOUND REAL ESTATE
$964,380Pending4 beds 5 baths2,476 sq. ft.69 Pollard Cove East #Lot 7, Watersound, FL 32461
MLS# 991112Listed by: WATERSOUND REAL ESTATE
$547,067Pending2 beds 2 baths1,418 sq. ft.560-B Suwannee Drive #36B, Watersound, FL 32461
MLS# 992524Listed by: WATERSOUND REAL ESTATE
$521,995Pending2 beds 2 baths1,448 sq. ft.560-A Suwannee Drive #36A, Watersound, FL 32461
MLS# 995969Listed by: WATERSOUND REAL ESTATE