1050 Garibaldi Street Sw, Atlanta, GA 30310

Local realty services provided by:ERA Towne Square Realty, Inc.
1050 Garibaldi Street Sw,Atlanta, GA 30310
$130,000
  • 1 Beds
  • 1 Baths
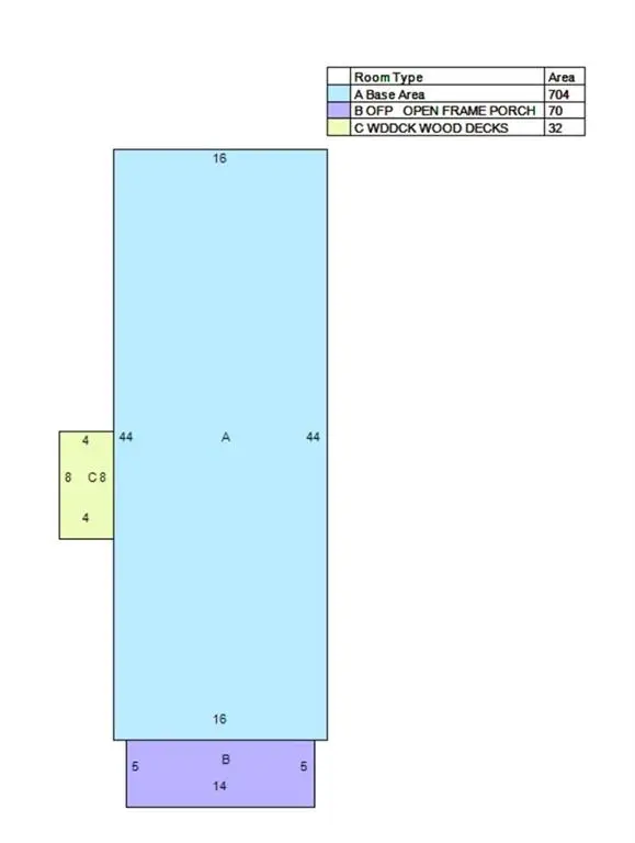
  • 704 sq. ft.
  • Single family
  • Active
Listed by: andrew griffin678-808-1300
Office: keller williams realty atl partners
MLS#:7637320
Source:FIRSTMLS

Price summary

  • Price:$130,000
  • Price per sq. ft.:$184.66

About this home

Superb location tear-down or opportunity to fix and flip in the changing Pittsburgh neighborhood of Atlanta, near the desirable Beltline area. New construction and higher end renovations in this area are $500K-$600K! Quick and easy access within walking distance to two Beltline entrances, The Beltline Westside Trail @ Pittman Park, near the New Pittsburgh Yards 31-acre mixed-used development - and the future Beltline Southside Corridor. This investment opportunity is situated near many of the City's newest redevelopment projects: Pittsburgh Yards, The Met, Summerhill, Lee & White Street, Empire Metro townhomes, Adair Park - Conveniently located near all major highways (75/85/20), just minutes from Downtown, Georgia State University, Hartsfield-Jackson International Airport and so much more!

Contact an agent

contact an agent

Yes, I would like more information. Please use and/or share my information with an ERA®  affiliated agent to contact me about my real estate needs. By clicking Send message, I request to be contacted by phone or text message and consent to being contacted by automated means. I understand that my consent to receive calls or texts is not a condition of purchasing any property, goods, or services. Alternatively, I understand that I can access real estate services by email or I can contact the agent myself.

If an ERA®  affiliated agent is not available in the area where I need assistance, I agree to be contacted by a real estate agent affiliated with another brand owned or licensed by Anywhere Real Estate (BHGRE® , CENTURY 21® , Coldwell Banker® , Corcoran® , Sotheby's International Realty® ).
 I acknowledge that I have read and agree to theTerms of useandPrivacy notice

Home facts

  • Year built:1919
  • Listing ID #:7637320
  • Updated:February 11, 2026 at 03:43 AM

Rooms and interior

  • Bedrooms:1
  • Total bathrooms:1
  • Full bathrooms:1
  • Living area:704 sq. ft.

Structure and exterior

  • Roof:Composition
  • Year built:1919
  • Building area:704 sq. ft.
  • Lot area:0.06 Acres

Schools

  • High school:G.W. Carver
  • Middle school:Sylvan Hills
  • Elementary school:Charles L. Gideons

Utilities

  • Water:Public
  • Sewer:Public Sewer

Finances and disclosures

  • Price:$130,000
  • Price per sq. ft.:$184.66
  • Tax amount:$2,386 (2024)
MLS LogoListings identified with the FMLS IDX logo come from FMLS and are held by brokerage firms other than the owner of this website. The listing brokerage is identified in any listing details. Information is deemed reliable but is not guaranteed. If you believe any FMLS listing contains material that infringes your copyrighted work please click here (https://www.fmls.com/dmca) to review our DMCA policy and learn how to submit a takedown request. ©2026 First Multiple Listing Service, Inc.