LOT 2 Middle Ground Church Road, Chester, GA 31012

Local realty services provided by:ERA Hirsch Real Estate Team
LOT 2 Middle Ground Church Road,Chester, GA 31012
$239,999
  • 3 Beds
  • 2 Baths
  • - sq. ft.
  • Single family
  • Active
Listed by: edward springer
Office: exp realty
MLS#:10687608
Source:METROMLS

Price summary

  • Price:$239,999

About this home

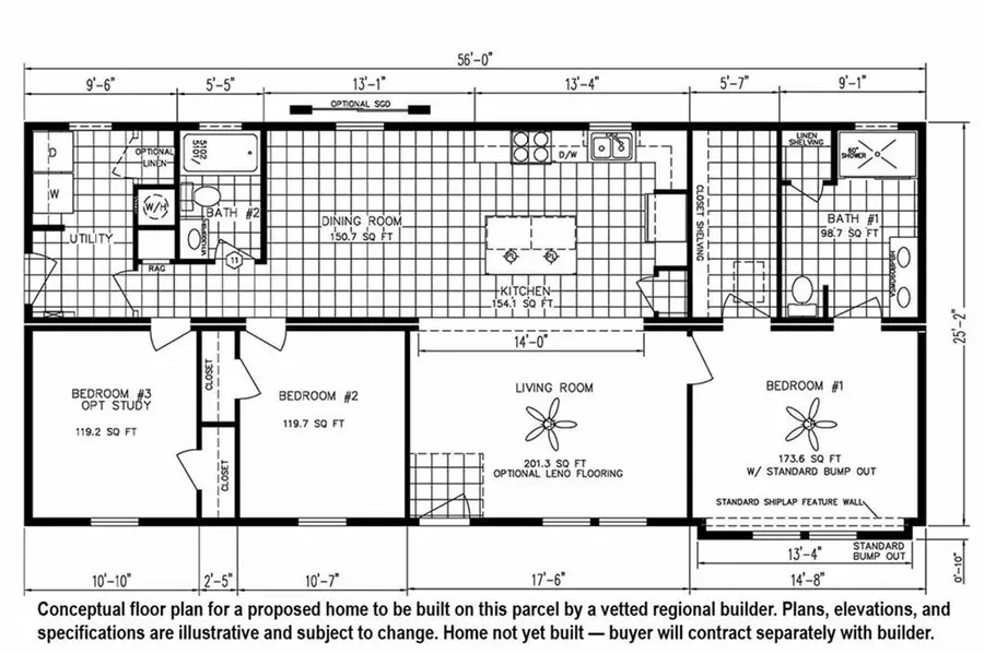
The $15,999 price is just for the land only. Seller is willing to sell the land only to an interested buyer, or one can have the To-be-built new home package for $239,999 on a 1.1-acre wooded homesite in Dodge County, GA. Home not yet built. This coordinated land-home offering pairs a build-ready parcel with a vetted regional builder, providing a clear path to new construction at an accessible price. New construction on acreage at this price level is extremely limited locally, offering a strong alternative to older resale homes. The property features approx. 140 ft of paved road frontage on Middle Ground Church Rd, a flat homesite, & mature trees. Located near State Route 518 with access to I-16, approx. 15 miles from Eastman. Electricity available; well & septic included. Residential zoning. How it works: Select home design & builder specs, secure construction-to-perm financing, then close on the land & begin construction. Home is partially built offsite with a 5-6 month timeline....

Contact an agent

contact an agent

Yes, I would like more information. Please use and/or share my information with an ERA®  affiliated agent to contact me about my real estate needs. By clicking Send message, I request to be contacted by phone or text message and consent to being contacted by automated means. I understand that my consent to receive calls or texts is not a condition of purchasing any property, goods, or services. Alternatively, I understand that I can access real estate services by email or I can contact the agent myself.

If an ERA®  affiliated agent is not available in the area where I need assistance, I agree to be contacted by a real estate agent affiliated with another brand owned or licensed by Anywhere Real Estate (BHGRE® , CENTURY 21® , Coldwell Banker® , Corcoran® , Sotheby's International Realty® ).
 I acknowledge that I have read and agree to theTerms of useandPrivacy notice

Home facts

  • Year built:2025
  • Listing ID #:10687608
  • Updated:April 13, 2026 at 10:41 AM

Rooms and interior

  • Bedrooms:3
  • Total bathrooms:2
  • Full bathrooms:2
  • Flooring:Laminate
  • Bathrooms Description:Double Vanity
  • Kitchen Description:Dishwasher
  • Bedroom Description:Master On Main Level, Walk-In Closet(s)

Heating and cooling

  • Cooling:Ceiling Fan(s), Central Air
  • Heating:Central
  • Central air:Yes

Structure and exterior

  • Roof:Composition
  • Year built:2025
  • Lot area:1.1 Acres
  • Lot Features:Private
  • Architectural Style:Modular Home
  • Construction Materials:Vinyl Siding
  • Foundation Description:Slab
  • Levels:1 Story

Schools

  • High school:Dodge
  • Middle school:Dodge
  • Elementary school:Other

Utilities

  • Water:Private, Water Available
  • Sewer:Septic Tank, Sewer Available

Finances and disclosures

  • Price:$239,999
  • Tax amount:$78 (2024)

Features and amenities

  • Appliances:Dishwasher
  • Laundry features:Common Area
  • Amenities:Carbon Monoxide Detector(s), Smoke Detector(s)

Parking

  • Parking description:Kitchen Level
MLS Logo2026 Georgia MLS. All rights reserved. Information Deem Reliable But Not Guaranteed April 13, 2026