00 Eatonton Highway, Gray, GA 31032
Local realty services provided by:ERA Strother Real Estate
00 Eatonton Highway,Gray, GA 31032
$600,000
- 20.65 Acres
- Lots / Land
- Active
Listed by: brian elrod
Office: nai elrod group
MLS#:CM1014463
Source:NC_CCAR
Price summary
- Price:$600,000
About this home
Property Description:
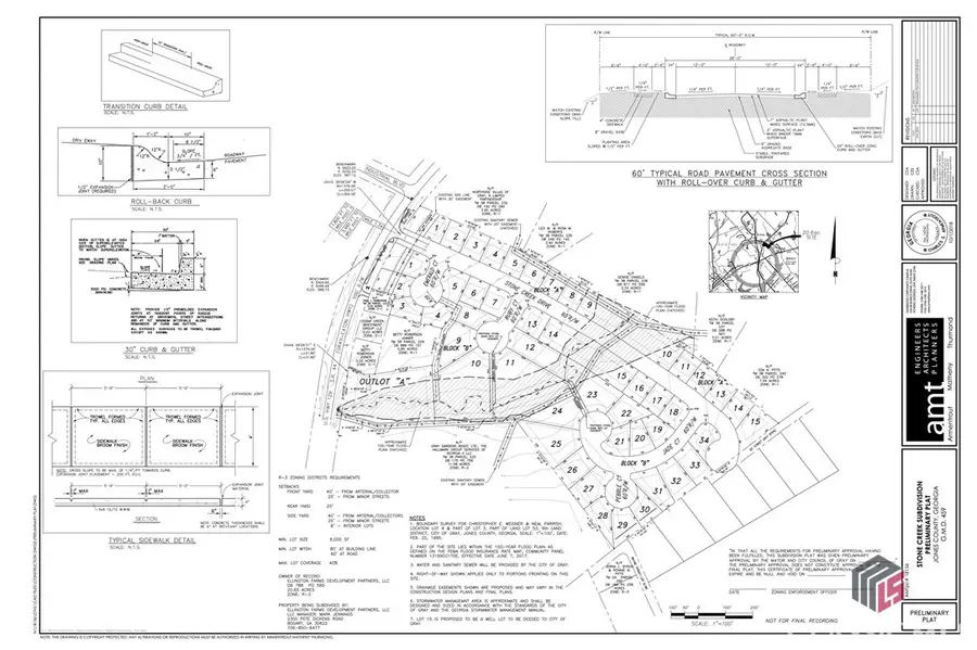
This residential land listing within the city of Gray, GA, is a proposed 48-lot subdivision. This property features 80' lots with a minimum lot size of 8,000 square feet. Less than a mile from downtown Gray, this property has easy access to grocery stores, restaurants, and shopping. Less than three miles away is the Morris Bank Recreation Complex, which offers ballfields, batting cages, pickleball courts, and two playgrounds.
Please note that the existing preliminary plat has expired, requiring the buyer to apply for a new preliminary plat and sewer capacity letter with the Gray City Council.
Location Description:
Located less than a mile from Downtown Gray, GA, this property has great accessibility to grocery stores, restaurants, and shopping. With both Atlanta & Athens being 1.5 hours away, residents can enjoy the small-town feel that the city of Gray boasts of while also being a short ride away from all the bigger cities have to offer.1. Proposed 48-Lot Subdivision, 2. 80' Lots, 3. 8,000 SF Minimum Lot Size, 4. In the City of Gray, GA
Contact an agent
Home facts
- Listing ID #:CM1014463
- Added:65 day(s) ago
- Updated:December 22, 2025 at 11:14 AM
Structure and exterior
- Lot area:20.65 Acres
Finances and disclosures
- Price:$600,000
New listings near 00 Eatonton Highway
- New
$114,900Active4 beds 2 baths1,744 sq. ft.133 Daisy Circle, Gray, GA 31032
MLS# 10658198Listed by: Beycome Brokerage Realty LLC
$289,900Active3 beds 3 baths1,744 sq. ft.247 Southern Walk Circle, Gray, GA 31032
MLS# 10656178Listed by: Southern Classic Realtors
$219,000Active3 beds 2 baths1,568 sq. ft.143 Ragan Drive, Gray, GA 31032
MLS# 10655733Listed by: RE/MAX Cutting Edge Realty
$85,000Active3 beds 2 baths1,464 sq. ft.362 Old Macon Road, Gray, GA 31032
MLS# 10650609Listed by: Maximum One Platinum Realtors
$225,000Active3 beds 1 baths1,128 sq. ft.129 Woodland Drive, Gray, GA 31032
MLS# 10650345Listed by: eXp Realty
$419,000Active3 beds 4 baths3,008 sq. ft.191 Henry Drive, Gray, GA 31032
MLS# 10646733Listed by: RE/MAX Cutting Edge Realty
$260,000Active3 beds 2 baths1,753 sq. ft.357 Cypress Drive, Gray, GA 31032
MLS# 10643015Listed by: eXp Realty
$389,000Active5 beds 3 baths2,680 sq. ft.664 Aarons Circle, Gray, GA 31032
MLS# 10639545Listed by: RE/MAX Cutting Edge Realty
$39,000Active1.23 Acres266 Clinton Crossing Drive, Gray, GA 31032
MLS# 10638454Listed by: Fickling & Company Inc.
$15,000Active1.5 Acres146 Lite N Tie Road, Gray, GA 31032
MLS# 10638462Listed by: Fickling & Company Inc.