704 Leela Court, Grovetown, GA 30813
Local realty services provided by:ERA Strother Real Estate
704 Leela Court,Grovetown, GA 30813
$141,000
- 0.17 Acres
- Lots / Land
- Active
Listed by: joe edge
Office: sherman & hemstreet real estate
MLS#:98224406
Source:NC_CCAR
Price summary
- Price:$141,000
About this home
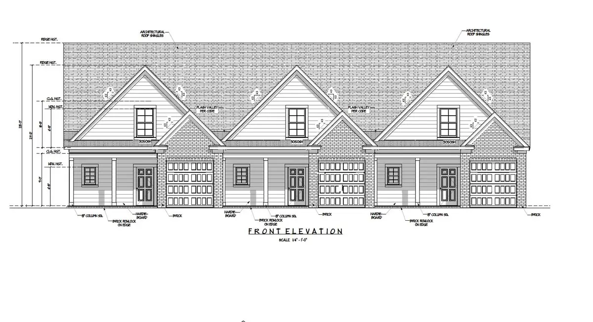
Offering consists of 3 pad ready lots in Lakeview Commons subdivision. Fully stamped and approved drawings are included in the sale. The lots must be sold together as the three townhomes are all adjoined. Lots back up to Sadie Morris Creek. New construction townhouses in Columbia County have averaged high prices per square foot.
Contact an agent
Home facts
- Listing ID #:98224406
- Added:209 day(s) ago
- Updated:May 14, 2026 at 10:13 AM
Structure and exterior
- Lot area:0.17 Acres
Schools
- High school:Grovetown High
- Middle school:Grovetown
- Elementary school:Cedar Ridge
Finances and disclosures
- Price:$141,000
New listings near 704 Leela Court
- New
$449,900Active5 beds 3 baths3,558 sq. ft.1421 Dooley Lane, Grovetown, GA 30813
MLS# 100573619Listed by: BETTER HOMES & GARDENS EXECUTIVE PARTNERS - New
$245,900Active3 beds 3 baths1,580 sq. ft.725 Leela Court, Grovetown, GA 30813
MLS# 100573584Listed by: SUMMER HOUSE REALTY - New
$415,000Active4 beds 4 baths2,986 sq. ft.223 Carlow Drive, Grovetown, GA 30813
MLS# 100573463Listed by: REALTY ONE GROUP VISIONARIES - New
$384,200Active4 beds 3 baths2,455 sq. ft.524 Alex Court, Grovetown, GA 30813
MLS# 100573491Listed by: STANLEY MARTIN SOUTH CAROLINA BROKERAGE - New
$399,900Active4 beds 3 baths2,775 sq. ft.3617 Kearsley Street, Grovetown, GA 30813
MLS# 100573432Listed by: HEARTLAND REAL ESTATE - New
$744,900Active5 beds 4 baths3,313 sq. ft.5172 Mill Creek Lane, Grovetown, GA 30813
MLS# 10763202Listed by: Blanchard & Calhoun Real Estate - Open Sat, 11am to 5pmNew
$235,000Active3 beds 3 baths1,425 sq. ft.1284 Bent Water Circle, Grovetown, GA 30813
MLS# 100573277Listed by: D.R. HORTON REALTY OF GEORGIA, INC. - New
$429,900Active4 beds 3 baths2,650 sq. ft.6236 Canterbury Farms Parkway, Grovetown, GA 30813
MLS# 98195401Listed by: MEYBOHM - NEW HOME DIV. - New
$298,000Active4 beds 3 baths1,876 sq. ft.2072 Lonsdale Drive #Dh342, Grovetown, GA 30813
MLS# 98253828Listed by: IVEY REALTY ASSOCIATES, LLC - New
$292,900Active3 beds 3 baths1,772 sq. ft.2061 Lonsdale Drive #Dh355, Grovetown, GA 30813
MLS# 98253927Listed by: IVEY REALTY ASSOCIATES, LLC