1183 Wilson Bridge Road, Homer, GA 30547
Local realty services provided by:ERA Towne Square Realty, Inc.
1183 Wilson Bridge Road,Homer, GA 30547
$350,000
- 9.38 Acres
- Lots / Land
- Active
Listed by: kim howington
Office: howington realty company
MLS#:10701272
Source:METROMLS
Price summary
- Price:$350,000
About this home
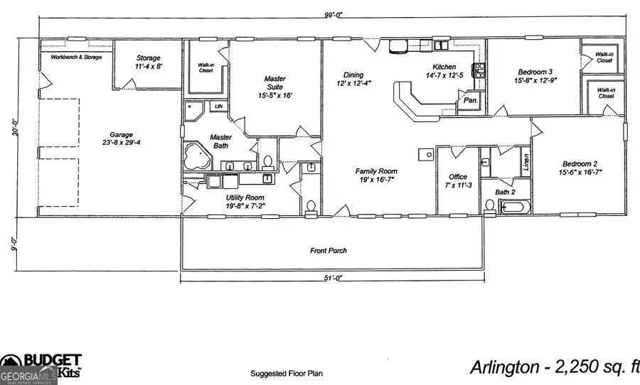
9.38 wooded acres with Barndominium construction started. Foundation poured with a 9' x 51' front porch slab, plumbing rough-ins completed, red-iron beams installed, 1,500-gallon septic tank in place, and construction power on site. The Arlington floor plan Barndominium kit (2,250 heated sq ft plus a 2-car side-entry garage with space for a workbench and storage) was purchased from Budget HomeKits and is on site. The package is designed to complete the exterior shell and includes interior metal studs. The manufacturer provides a detailed assembly guide, real-time consultation support, and options for plan or order modifications if desired. Exterior color selections include Buckskin Tan walls, a Galvalume roof, Polished Slate jamb trim, and coordinating trim to complement the roof and wall colors. The purchase also includes a powered storage building and a 40-foot shipping container. Several fixtures are on site and included: a wood stove, garage doors, windows, doors, and select special-order items, including a 60" x 36" flip-out/up kitchen window. An existing bored well is on the property, though the sellers had intended to drill a new well. A well company has previously confirmed the presence of a water table on site. Conveniently located with easy access to U.S. Route 441 and Interstate 85, as well as nearby shopping and restaurants. Shown by appointment only....
Contact an agent
Home facts
- Listing ID #:10701272
- Updated:March 14, 2026 at 10:48 AM
Structure and exterior
- Lot area:9.38 Acres
- Lot Features:Private, Sloped
Schools
- High school:Banks
- Middle school:Banks
- Elementary school:Banks
Utilities
- Water:Well
- Sewer:Septic Tank
Finances and disclosures
- Price:$350,000
- Tax amount:$939 (24)
New listings near 1183 Wilson Bridge Road
- New
$600,000Active4 beds 4 baths2,888 sq. ft.129 Preserve Lane, Homer, GA 30547
MLS# 7728778Listed by: EXP REALTY, LLC.
$465,000Active4 beds 3 baths2,325 sq. ft.1539 Scales Creek Road, Homer, GA 30547
MLS# 7725870Listed by: VIRTUAL PROPERTIES REALTY. BIZ
$125,000Active-- beds -- baths0 Hwy 51 N, Homer, GA 30547
MLS# 10699316Listed by: Purcell Realty
$349,999Active3 beds 2 baths1,500 sq. ft.605 Berlin, Homer, GA 30547
MLS# 10699317Listed by: RE/MAX Signature
$499,999Active3 beds 2 baths1,840 sq. ft.2331 Highway 51 N, Homer, GA 30547
MLS# 10698958Listed by: RE/MAX Signature
$49,999Active3.3 Acres0 Scales Creek Road, Homer, GA 30547
MLS# 10698479Listed by: Keller Williams Realty Atl. Partners
$360,000Active3 beds 2 baths1,702 sq. ft.192 Sweet Briar Way, Homer, GA 30547
MLS# 7724647Listed by: RE/MAX TRU
$471,849Active4 beds 4 baths108 Ginger Trail, Homer, GA 30547
MLS# 10694817Listed by: PBG Built Realty
$475,000Active3 beds 3 baths3,663 sq. ft.140 Wild Turkey Pass, Homer, GA 30547
MLS# 10693952Listed by: NorthGroup Real Estate Inc