2040 Freestone Way, Marietta, GA 30064
Local realty services provided by:ERA Towne Square Realty, Inc.
2040 Freestone Way,Marietta, GA 30064
$849,000
- 5 Beds
- 4 Baths
- - sq. ft.
- Single family
- Active
Listed by: angi sklar
Office: toll brothers real estate inc.
MLS#:10662413
Source:METROMLS
Price summary
- Price:$849,000
- Monthly HOA dues:$83.33
About this home
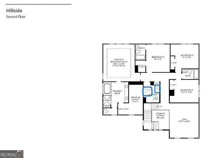
Toll Brothers at FREESTONE STATION.....HILLSIDE PLAN UNDER CONSTRUCTION AND READY MAY '26! Our most popular floorplan AND THE LAST ONE TO BE BUILT IN THE NEIGHBORHOOD, the Hillside, is located in Freestone Station, a community of 100 homes with convenient access to shopping, dining, and top-rated Cobb County schools. The chef's kitchen features quartz countertops, KitchenAid appliances with double oven, and a large island, with TRIPLE SLIDING DOORS opening to a covered patio overlooking your private yard. The great room and flex space offer a spacious, open layout beaming with possibilities- need an office or a space for your grand piano? We've got you covered! Upstairs welcomes you with a large loft as you head down the hallway to the bedrooms. The primary bath boasts a large shower and soaking tub. Upstairs laundry includes a sink and quick access from the large primary closet. The garage offers ample space with a CAR CHARGING OUTLET. Amenities include a pool, cabana, play area, pocket park, and sidewalks throughout the community. Just minutes from Marietta Square, the Avenue of West Cobb, and the Battery, with easy access to the airport. Toll Brothers has been trusted since 1967 to offer the best in luxury home building. For 10 Years Toll Brothers has been ranked #1 Builder Worldwide on FORTUNE Magazine's "World's Most Admired Companies" list. With just 5 opportunities left to own in Freestone Station, don't miss your chance! Stop by today!...
Contact an agent
Home facts
- Year built:2026
- Listing ID #:10662413
- Updated:March 30, 2026 at 10:47 AM
Rooms and interior
- Bedrooms:5
- Total bathrooms:4
- Full bathrooms:4
- Flooring:Carpet, Hardwood, Tile
- Bathrooms Description:Double Vanity
- Kitchen Description:Dishwasher, Disposal, Double Oven, Kitchen Island, Microwave, Solid Surface Counters, Walk-in Pantry
- Bedroom Description:Walk-In Closet(s)
Heating and cooling
- Cooling:Ceiling Fan(s), Central Air
- Heating:Central
- Central air:Yes
Structure and exterior
- Roof:Composition
- Year built:2026
- Lot area:0.24 Acres
- Lot Features:Private
- Architectural Style:Traditional
- Construction Materials:Brick
- Exterior Features:Deck/Patio
- Foundation Description:Slab
- Levels:2 Story
Schools
- High school:Hillgrove
- Middle school:Lovinggood
- Elementary school:Dowell
Utilities
- Water:Public, Water Available
- Sewer:Public Sewer, Sewer Available
Finances and disclosures
- Price:$849,000
Features and amenities
- Appliances:Dishwasher, Disposal, Double Oven, Microwave, Tankless Water Heater
- Laundry features:Laundry, Upper Level
- Amenities:Double Pane Windows, High Ceilings, Smoke Detector(s), Tankless Water Heater, Tray Ceiling(s)
Parking
- Total parking spaces:2
- Parking description:Garage, Garage Door Opener, Kitchen Level
- Garage:Yes
New listings near 2040 Freestone Way
- New
$569,900Active3 beds 2 baths2,696 sq. ft.3341 Carolina Wren Trail Sw, Marietta, GA 30060
MLS# 10720546Listed by: Flynn Realty - Coming Soon
$675,000Coming Soon4 beds 4 baths1386 Churchill Way, Marietta, GA 30062
MLS# 10720541Listed by: Virtual Properties Realty.com - New
$610,000Active5 beds 2 baths217 Montgomery Street Ne, Marietta, GA 30060
MLS# 10720486Listed by: Dream Elite Properties, LLC - Coming Soon
$724,900Coming Soon6 beds 4 baths915 Chipley Court, Marietta, GA 30062
MLS# 7741551Listed by: KELLER WILLIAMS REALTY WEST ATLANTA - New
$629,900Active3 beds 3 baths2,837 sq. ft.1241 Hightower Crossing Nw, Marietta, GA 30060
MLS# 7742869Listed by: ANSLEY REAL ESTATE - New
$435,000Active3 beds 3 baths2,152 sq. ft.1231 Herty Drive, Marietta, GA 30062
MLS# 10720400Listed by: Virtual Properties Realty.com - New
$345,000Active3 beds 2 baths1,293 sq. ft.1810 Killarney Drive Sw, Marietta, GA 30008
MLS# 7743349Listed by: REAL ESTATE AROUND ATL, LLC. - New
$525,000Active5 beds 3 baths3,867 sq. ft.2788 Dellinger Drive, Marietta, GA 30062
MLS# 7726993Listed by: RE/MAX AROUND ATLANTA - New
$539,000Active3 beds 2 baths2,220 sq. ft.643 Grove Parkway Se, Marietta, GA 30067
MLS# 7741361Listed by: ATLANTA REAL ESTATE BROKERS - Coming Soon
$495,000Coming Soon4 beds 2 baths1548 Sprayberry Drive, Marietta, GA 30066
MLS# 7743287Listed by: MAXIMUM ONE EXECUTIVE REALTORS