109 Praline Road, Savannah, GA 31419
Local realty services provided by:ERA Strother Real Estate
109 Praline Road,Savannah, GA 31419
$391,104
- 4 Beds
- 3 Baths
- 2,440 sq. ft.
- Single family
- Pending
Listed by: taelor neal
Office: mungo homes realty llc.
MLS#:SA352855
Source:NC_CCAR
Price summary
- Price:$391,104
- Price per sq. ft.:$160.29
About this home
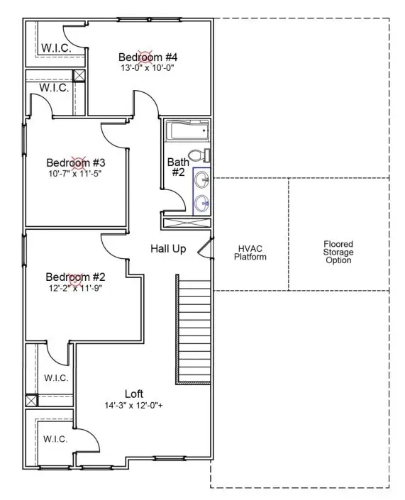
The Pickens is a thoughtfully designed two-story home featuring four bedrooms and two-and-one-half bathrooms with flexible living spaces ideal for today’s lifestyle. Just inside the front entry, a versatile flex room provides the perfect space for a home office, formal dining area, or playroom. The open-concept layout seamlessly connects the kitchen, eat-in dining area, and spacious great room, creating an inviting space for everyday living and entertaining, with the option to extend outdoor living by adding a covered back porch. On the main floor, the primary suite offers a relaxing retreat with an optional vaulted ceiling, a private en-suite bathroom, and a generous walk-in closet. Each additional bedroom includes its own walk-in closet and shares a well-appointed full bathroom. The second floor also features a spacious loft area, along with an optional storage room for added convenience.
Contact an agent
Home facts
- Year built:2026
- Listing ID #:SA352855
- Added:43 day(s) ago
- Updated:May 23, 2026 at 07:49 AM
Rooms and interior
- Bedrooms:4
- Total bathrooms:3
- Full bathrooms:2
- Half bathrooms:1
- Rooms Total:1
- Kitchen Description:Dishwasher, Disposal, Microwave, Range
- Living area:2,440 sq. ft.
Heating and cooling
- Cooling:Central Air
- Heating:Electric, Heating
- Central air:Yes
Structure and exterior
- Year built:2026
- Building area:2,440 sq. ft.
- Lot area:0.13 Acres
- Architectural Style:Traditional
- Construction Materials:Vinyl Siding
- Foundation Description:Slab
Finances and disclosures
- Price:$391,104
- Price per sq. ft.:$160.29
Features and amenities
- Appliances:Dishwasher, Disposal, Range
- Laundry features:Laundry Room, Washer Hookup
Parking
- Parking description:Attached
- Garage:Yes
- Garage spaces:2
New listings near 109 Praline Road
- New
$825,000Active3 beds 3 baths1,919 sq. ft.388 Hunt Drive, Savannah, GA 31406
MLS# SA356636Listed by: KELLER WILLIAMS COASTAL AREA P - New
$534,900Active3 beds 3 baths2,082 sq. ft.1 Sumatra Lane, Savannah, GA 31419
MLS# SA356720Listed by: SIGNATURE PROPERTIES SAVANNAH - New
$339,900Active4 beds 2 baths1,540 sq. ft.318 Briarcliff Circle, Savannah, GA 31419
MLS# SA356729Listed by: LIST WITH FREEDOM - New
$345,000Active3 beds 2 baths1,224 sq. ft.1348 Whitfield Park Drive, Savannah, GA
MLS# SA356396Listed by: ENGEL & VOLKERS - Open Sat, 12am to 2pmNew
$859,000Active3 beds 3 baths2,390 sq. ft.65 Richmond Drive, Savannah, GA 31406
MLS# SA356671Listed by: RE/MAX SAVANNAH - New
$577,900Active4 beds 4 baths3,713 sq. ft.180 Coffee Pointe Drive, Savannah, GA 31419
MLS# SA356560Listed by: SIGNATURE PROPERTIES SAVANNAH - New
$1,750,000Active3 beds 4 baths2,364 sq. ft.419 E Charlton Street, Savannah, GA 31401
MLS# SA356632Listed by: EXP REALTY LLC - New
$350,000Active3 beds 2 baths2,414 sq. ft.136 Heritage Way, Savannah, GA 31419
MLS# SA356614Listed by: SCHUMAN SIGNATURE REALTY LLC - New
$299,000Active3 beds 3 baths1,770 sq. ft.4717 Sylvan Drive, Savannah, GA 31405
MLS# SA356697Listed by: SCOTT REALTY PROFESSIONALS - Open Sun, 10am to 12pmNew
$1,500,000Active5 beds 4 baths3,978 sq. ft.34 E 50th Street, Savannah, GA 31405
MLS# SA355186Listed by: KELLER WILLIAMS COASTAL AREA P