0 Stambuk Lane, Statesboro, GA 30458
Local realty services provided by:ERA Hirsch Real Estate Team
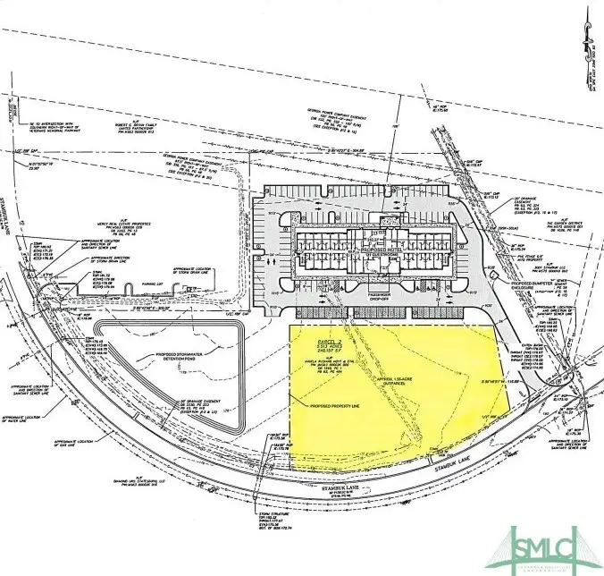
0 Stambuk Lane,Statesboro, GA 30458
$575,000
- 1.55 Acres
- Lots / Land
- Active
Listed by: jack conner
Office: coldwell banker conner realty
MLS#:10507731
Source:METROMLS
Price summary
- Price:$575,000
About this home
Prime Commercial Land with Highway Frontage - 1.55 Acres on Stambuk Ln, Statesboro, GA Unlock exceptional business potential with this 1.55-acre commercial lot located on highly visible Stambuk Lane, just off the highway in rapidly growing Statesboro, Georgia. Offering excellent frontage and exposure, this property is ideally positioned for a wide range of commercial uses. Water and sewer available.
Contact an agent
Home facts
- Listing ID #:10507731
- Updated:January 10, 2026 at 12:27 PM
Structure and exterior
- Lot area:1.55 Acres
Schools
- High school:Statesboro
- Middle school:Langston Chapel
- Elementary school:Langston Chapel
Utilities
- Water:Public, Water Available
- Sewer:Public Sewer, Sewer Available
Finances and disclosures
- Price:$575,000
- Tax amount:$5,484 (23)
New listings near 0 Stambuk Lane
- New
$253,150Active3 beds 2 baths1,299 sq. ft.129 Landmark Circle #LOT 15, Statesboro, GA 30458
MLS# 10669585Listed by: Coldwell Banker Conner Realty - New
$430,000Active3 beds 2 baths1,510 sq. ft.1610 Clifton Road, Statesboro, GA 30458
MLS# 10669594Listed by: Cumberland Nine Realty - New
$253,150Active3 beds 2 baths1,299 sq. ft.129 Landmark Circle, Statesboro, GA 30458
MLS# SA346515Listed by: COLDWELL BANKER CONNER REALTY - New
$334,999Active4 beds 2 baths506 Delta Pine Court, Statesboro, GA 30461
MLS# 10669564Listed by: Statesboro Real Estate & Investments - New
$559,900Active4 beds 3 baths2,700 sq. ft.226 Bald Cypress Court, Statesboro, GA 30458
MLS# 10669299Listed by: Statesboro Real Estate & Investments - New
$299,900Active4 beds 2 baths2,322 sq. ft.120 N Edgewood Dr, Statesboro, GA 30458
MLS# 10669024Listed by: RE/MAX Eagle Creek Realty - New
$509,900Active5 beds 3 baths2,587 sq. ft.2041 Pippin Place, Statesboro, GA 30461
MLS# 10668710Listed by: Next Move Real Estate - New
$279,999Active3 beds 2 baths1,462 sq. ft.258 Stonebrook Way, Statesboro, GA 30458
MLS# 10668223Listed by: Statesboro Real Estate & Investments - New
$369,000Active4 beds 2 baths1,700 sq. ft.4335 Nessmith Road, Statesboro, GA 30458
MLS# 10668224Listed by: Statesboro Real Estate & Investments - New
$250,000Active19.13 Acres19.13 ACRES Highway 301 N, Statesboro, GA 30458
MLS# 10667838Listed by: Coldwell Banker Conner Realty