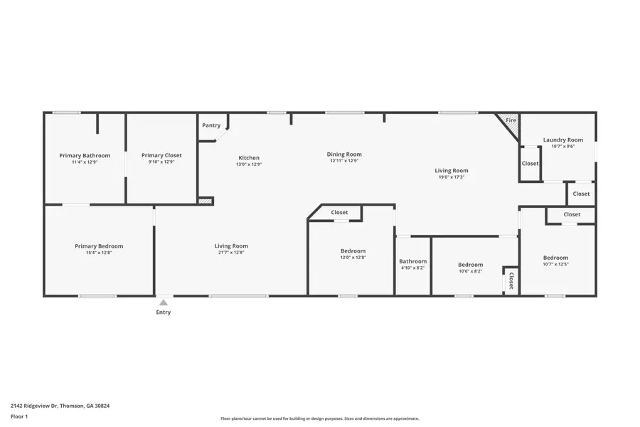
2142 Ridgeview Drive, Thomson, GA 30824
Local realty services provided by:ERA Strother Real Estate
Listed by:donnie reese
Office:re/max reinvented
MLS#:547999
Source:NC_CCAR
Price summary
- Price:$199,900
 - Price per sq. ft.:$93.94
 
About this home
Spacious 4-Bedroom Home on 2.35 Acres with Modern Comforts & Country Charm
Welcome to this beautifully maintained 4-bedroom, 2-bathroom home nestled on a peaceful 2.35-acre lot—offering the perfect blend of open space and functional design.
With 2,128 square feet of living space, this home boasts an open floorplan ideal for both everyday living and entertaining. The huge living room flows seamlessly into a spacious kitchen and family room featuring a cozy fireplace, creating the perfect gathering spot for all seasons. Home features durable laminate flooring throughout, No Carpet.
The kitchen is designed for convenience and style, with a breakfast bar, pantry, and plenty of cabinetry. The primary suite is a true retreat, featuring an ensuite bathroom with a garden tub, separate shower, double sink vanity, and a humongous walk-in closet complete with a dressing island and built-in storage.
The split floorplan provides privacy, with 3 additional bedrooms and a full bathroom located on the opposite side of the home. A spacious laundry room includes a closet and enough room for an extra fridge or freezer.  Permanent foundation,  12x20 Storage Building, Roof 2025, Water Heater 2023, HVAC 2022, new front entry stairs and side deck.  No HOA.  Close to local restaurants, shopping and hospital.  Easy access to I-20 with short distance to Ft. Gordon, Amazon, and Augusta.   
Contact an agent
Home facts
- Year built:2008
 - Listing ID #:547999
 - Added:18 day(s) ago
 - Updated:November 04, 2025 at 08:56 AM
 
Rooms and interior
- Bedrooms:4
 - Total bathrooms:2
 - Full bathrooms:2
 - Living area:2,128 sq. ft.
 
Heating and cooling
- Cooling:Heat Pump
 - Heating:Heat Pump
 
Structure and exterior
- Roof:Composition
 - Year built:2008
 - Building area:2,128 sq. ft.
 
Schools
- High school:THOMSON
 - Middle school:Thomson
 - Elementary school:Maxwell
 
Finances and disclosures
- Price:$199,900
 - Price per sq. ft.:$93.94
 
New listings near 2142 Ridgeview Drive
- New
$29,900Active0.96 Acres0 Meadowood Drive, Thomson, GA 30824
MLS# 220301Listed by: G REALTY - New
$215,000Active3 beds 2 baths1,248 sq. ft.306 Michael St Street, Thomson, GA 30824
MLS# 548743Listed by: VANDERMORGAN REALTY - New
$95,000Active0 Acres293 NW South Lake Drive, Thomson, GA 30824
MLS# 538225Listed by: BRADSHAW LAND & REALTY - New
$349,900Active4 beds 3 baths2,300 sq. ft.664 Magnolia Drive, Thomson, GA 30824
MLS# 548674Listed by: BETTER HOMES & GARDENS EXECUTIVE PARTNERS 
$339,900Pending4 beds 3 baths3,005 sq. ft.2123 April Dawn Trail, Thomson, GA 30824
MLS# 548545Listed by: MEYBOHM REAL ESTATE - EVANS
$289,900Active3 beds 2 baths1,661 sq. ft.2119 April Dawn Trail, Thomson, GA 30824
MLS# 548551Listed by: MEYBOHM REAL ESTATE - EVANS
$400,000Active-- beds -- baths1761 Augusta Highway, Thomson, GA 30824
MLS# 10629522Listed by: Southeastern Land Group
$329,999Active3 beds 2 baths3,015 sq. ft.123 Lee Street, Thomson, GA 30824
MLS# 548469Listed by: THE WILSON COMPANY
$279,900Active4 beds 2 baths2,432 sq. ft.1008 Wrens Highway, Thomson, GA 30824
MLS# 10627841Listed by: DeFoor Realty
$279,900Active4 beds 2 baths2,432 sq. ft.1008 Wrens Highway, Thomson, GA 30824
MLS# 548337Listed by: DEFOOR REALTY