1583 W Covenant Hill Ct, Eagle, ID 83616
Local realty services provided by:ERA West Wind Real Estate
1583 W Covenant Hill Ct,Eagle, ID 83616
$2,135,000
- 5 Beds
- 6 Baths
- 7,745 sq. ft.
- Single family
- Active
Upcoming open houses
- Sat, Mar 2801:00 pm - 03:00 pm
Listed by: sage hickamMain: 208-377-0422
Office: silvercreek realty group
MLS#:98979617
Source:ID_IMLS
Price summary
- Price:$2,135,000
- Price per sq. ft.:$275.66
- Monthly HOA dues:$116.67
About this home
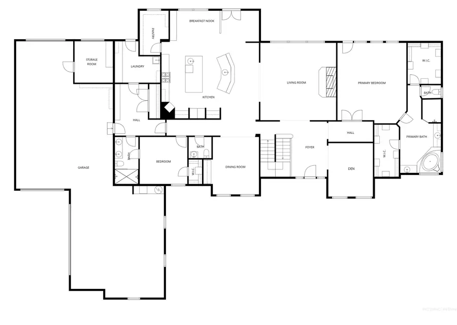
Welcome home to Covenant Hill - where space, craftsmanship, and lifestyle meet on nearly an acre in one of Eagle’s most sought-after neighborhoods. This custom 3-level home is designed for those who value both comfort and capability. The main-level primary suite offers a private retreat with dual vanities, dual walk-in closets, a walk-in shower, and a jetted tub. Thoughtfully designed for everyday living and entertaining, the gourmet kitchen features granite countertops, a large center island, built-in refrigerator, double ovens, Wolf appliances, dual dishwashers, and an oversized pantry. Throughout the home, you’ll find custom millwork, refinished Brazilian Cherry hardwood floors, new carpet, and fresh interior paint. The upper level includes two spacious bedrooms, each with en-suite bathrooms and walk-in closets, plus a versatile flex space. The main level features a formal dining room, casual eating nook, built-in workspace, an inviting living room with a floor-to-ceiling stone fireplace, an additional bedroom with attached bath, and a generously sized mudroom and utility space. Downstairs, the lower level expands your options with a large recreation area, kitchenette, full bathroom, dedicated gym space, theater room, craft room, and a fifth bedroom currently used as an office-plus abundant storage. And for all the extras: a 1,500+ sq ft garage with epoxy floors and an RV bay!...
Contact an agent
Home facts
- Year built:2007
- Listing ID #:98979617
- Added:1 day(s) ago
- Updated:March 27, 2026 at 08:42 PM
Rooms and interior
- Bedrooms:5
- Total bathrooms:6
- Full bathrooms:6
- Flooring:Carpet, Hardwood, Tile
- Bathrooms Description:Bath-Master
- Kitchen Description:Kitchen Island, Pantry, Two Kitchens
- Living area:7,745 sq. ft.
Heating and cooling
- Cooling:Central Air
- Heating:Forced Air, Natural Gas
- Central air:Yes
Structure and exterior
- Roof:Architectural Style
- Year built:2007
- Building area:7,745 sq. ft.
- Lot area:0.87 Acres
- Lot Features:Corner Lot, Sidewalks
- Construction Materials:Frame, Masonry, Stone, Stucco
Schools
- High school:Eagle
- Middle school:Eagle Middle
- Elementary school:Seven Oaks
Utilities
- Water:City Service
Finances and disclosures
- Price:$2,135,000
- Price per sq. ft.:$275.66
- Tax amount:$6,651 (2025)
Features and amenities
- Amenities:Bath-Master, Breakfast Bar, Kitchen Island, Pantry, Split Bedroom, Two Kitchens, Two Master Bedrooms, Walk-In Closet(s)
Parking
- Parking description:Attached, Finished Driveway
- Garage:Yes
- Garage spaces:4
New listings near 1583 W Covenant Hill Ct
- Open Sat, 12 to 3pmNew
$895,000Active3 beds 3 baths2,568 sq. ft.6091 W Hamm Court, Eagle, ID 83616
MLS# 98979701Listed by: ALEI INTERNATIONAL - New
$1,649,900Active4 beds 5 baths3,647 sq. ft.434 W Elkton St, Eagle, ID 83616
MLS# 98979706Listed by: ASPIRE REALTY GROUP - New
$589,900Active5 beds 2 baths1,990 sq. ft.1700 N Trail Creek Way, Eagle, ID 83616
MLS# 98979674Listed by: BOISE PREMIER REAL ESTATE - Open Sat, 1 to 3pmNew
$675,000Active3 beds 3 baths2,310 sq. ft.8389 W Shams Ln, Eagle, ID 83616
MLS# 98979650Listed by: AMHERST MADISON - Open Sat, 1 to 3pmNew
$1,679,900Active4 beds 4 baths4,000 sq. ft.1102 N Lionbridge Ave, Eagle, ID 83616
MLS# 98979651Listed by: AMHERST MADISON - Open Sat, 12 to 2pmNew
$1,099,000Active4 beds 4 baths3,423 sq. ft.1790 N Black Forest Way, Eagle, ID 83616
MLS# 98979633Listed by: SILVERCREEK REALTY GROUP - Open Sat, 12 to 2pmNew
$999,900Active3 beds 3 baths2,511 sq. ft.7290 W Bed Mill St, Eagle, ID 83616
MLS# 98979598Listed by: AMHERST MADISON - Open Sat, 10am to 12pmNew
$1,399,000Active4 beds 3 baths3,318 sq. ft.885 E Joplin Lane, Eagle, ID 83616
MLS# 98979603Listed by: FINDING 43 REAL ESTATE - Open Sun, 1 to 4pmNew
$999,900Active5 beds 4 baths3,260 sq. ft.151 N Lost Canyon, Eagle, ID 83616
MLS# 98979555Listed by: AMHERST MADISON