2613 7th Ave N, Payette, ID 83661
Local realty services provided by:ERA West Wind Real Estate
2613 7th Ave N,Payette, ID 83661
$825,000
- 3 Beds
- 2 Baths
- 2,693 sq. ft.
- Single family
- Active
Listed by: chuck jonesMain: 208-442-8500
Office: homes of idaho
MLS#:98977288
Source:ID_IMLS
Price summary
- Price:$825,000
- Price per sq. ft.:$306.35
About this home
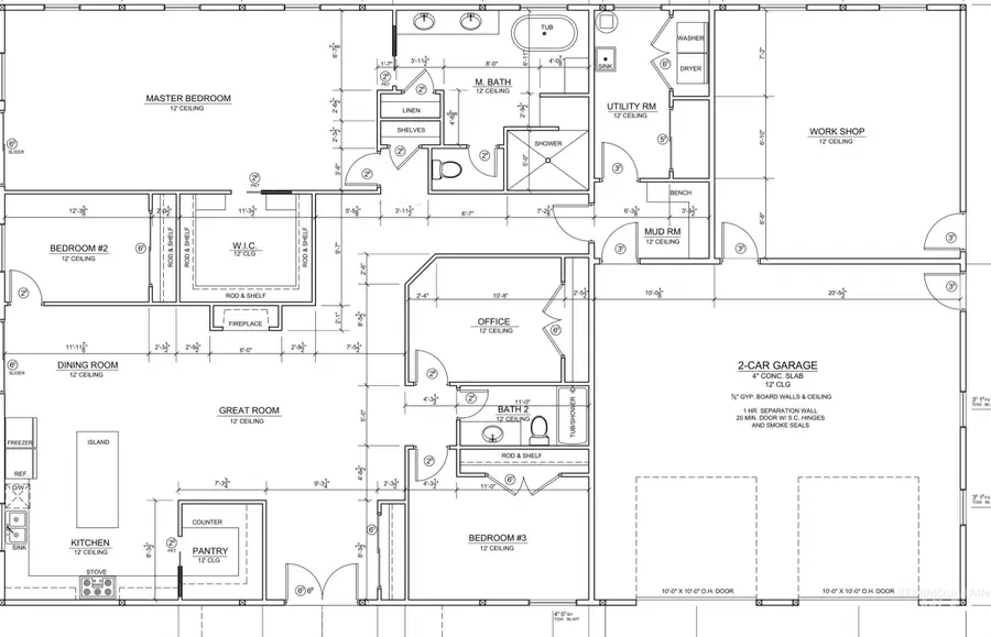
Framing is underway! Discover your dream home—custom built and set on just under an acre! This spacious home welcomes you with a bright open floor plan designed for comfortable living and entertaining. The beautiful kitchen features rich cherry wood cabinetry, solid surface countertops, and flows seamlessly into the great room, where a cozy propane fireplace creates the perfect gathering space. Quality craftsmanship is found throughout, including engineered wood flooring, tile entry, cherry cabinetry in the bathrooms and utility room, solid knotty wood doors and trim, and impressive 10-foot ceilings that add to the home's open feel. Step outside and relax on the expansive wrap-around porch, perfect for enjoying peaceful mornings or evening sunsets. Additional upgrades include instant hot water with a softener, durable cedar siding, and a long-lasting metal roof. Need space for vehicles, toys, or a workshop? The massive 1,951 sq. ft. garage features an RV bay and room for up to five vehicles—plenty of space for all your needs. Construction is currently underway, and with an early offer you may still have the opportunity to choose some colors and finishing touches to make this home truly your own. Posted plans are similar to actual plans....
Contact an agent
Home facts
- Year built:2026
- Listing ID #:98977288
- Added:11 day(s) ago
- Updated:March 21, 2026 at 12:44 AM
Rooms and interior
- Bedrooms:3
- Total bathrooms:2
- Full bathrooms:2
- Flooring:Tile
- Bathrooms Description:Bath-Master
- Kitchen Description:Pantry
- Living area:2,693 sq. ft.
Heating and cooling
- Cooling:Ductless/Mini Split
- Heating:Electric
Structure and exterior
- Roof:Metal
- Year built:2026
- Building area:2,693 sq. ft.
- Lot area:1 Acres
- Lot Features:Horses
- Construction Materials:Frame, Wood Siding
- Foundation Description:Slab
Schools
- High school:Payette
- Middle school:McCain
- Elementary school:Payette
Utilities
- Water:Well
- Sewer:Septic Tank
Finances and disclosures
- Price:$825,000
- Price per sq. ft.:$306.35
- Tax amount:$600 (2025)
Features and amenities
- Amenities:Bath-Master, Breakfast Bar, Pantry, Split Bedroom, Walk-In Closet(s)
Parking
- Parking description:Attached, RV/Boat
- Garage:Yes
- Garage spaces:5
New listings near 2613 7th Ave N
- New
$269,900Active2 beds 2 baths1,122 sq. ft.334 17th Ave North, Payette, ID 83661
MLS# 98978627Listed by: GOLDWINGS REAL ESTATE GROUP - New
$349,000Active3 beds 3 baths1,840 sq. ft.2082 NE 16th Ave., Payette, ID 83661
MLS# 98978532Listed by: CORBETT REAL ESTATE AUCTIONS - New
$569,900Active4 beds 3 baths2,171 sq. ft.2465 Center Avenue, Payette, ID 83661
MLS# 98978373Listed by: COLDWELL BANKER/CLASSIC PROPER - New
$369,000Active3 beds 2 baths1,365 sq. ft.2570 Driftwood Pl, Payette, ID 83661
MLS# 98978376Listed by: SWEET GROUP REALTY - New
$548,974Active2.86 AcresTBD N 2nd St, Payette, ID 83661
MLS# 98978207Listed by: LPT REALTY - New
$235,000Active3 beds 1 baths920 sq. ft.508 N 7th Street, Payette, ID 83661
MLS# 98978214Listed by: PREMIER GROUP REALTY WEST - New
$1,300,000Active32.78 AcresTBD Center Avenue, Payette, ID 83661
MLS# 98978192Listed by: PREMIER GROUP REALTY WEST - New
$150,000Active0.21 Acres900 S Iowa Ave, Payette, ID 83661
MLS# 98978185Listed by: LPT REALTY - New
$319,900Active3 beds 2 baths1,706 sq. ft.684 S Park St, Payette, ID 83661
MLS# 98978172Listed by: RE/MAX EXECUTIVES - New
$245,000Active2 beds 1 baths832 sq. ft.918 N 11th St, Payette, ID 83661
MLS# 98978152Listed by: WALDO REAL ESTATE