107 Blazing Saddle Ct, Pinehurst, ID 83850
Local realty services provided by:ERA Shelman Realty
107 Blazing Saddle Ct,Pinehurst, ID 83850
$699,000
- 4 Beds
- 3 Baths
- 4,126 sq. ft.
- Single family
- Active
Listed by: edward warren
Office: xpr expert realty
MLS#:26-2183
Source:ID_CDAR
Price summary
- Price:$699,000
- Price per sq. ft.:$169.41
About this home
Interest Rate of 4.6% available through builder program!
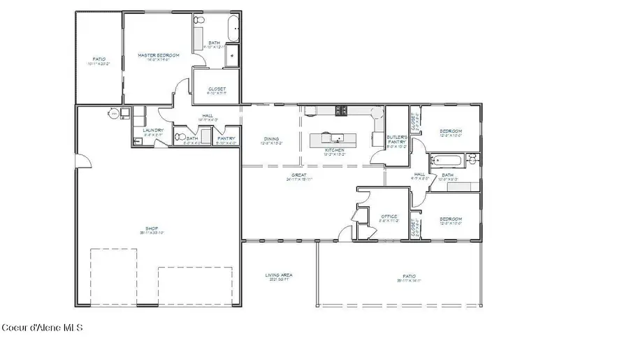
To be built a beautiful 4,100 sqft home with attached SHOP! Customize this floorplan to fit your needs! This exquisite 3 bedroom, 2.5 bathroom rancher offers single-level living. The gourmet kitchen features a spacious walk in butlers pantry, ideal for culinary enthusiasts. A separate office provides a quiet workspace, while the master bedroom suite, complete with a luxurious en suite bathroom and walkout private porch, creates a serene retreat for relaxing evenings. This layout includes an unfinished basement under the majority of the house. The enormous attached garage includes RV parking, catering to adventure seekers. Nestled in the hills surrounding Pinehurst, this home is just minutes from Silver Mountain Resort, offering year-round recreation with skiing, biking, and more. The scenic Trail of the Coeur d'Alenes, perfect for biking and walking, is also nearby, connecting you to North Idaho's natural beauty.
Contact an agent
Home facts
- Year built:2025
- Listing ID #:26-2183
- Added:203 day(s) ago
- Updated:March 15, 2026 at 02:51 PM
Rooms and interior
- Bedrooms:4
- Total bathrooms:3
- Full bathrooms:3
- Flooring:Carpet
- Basement:Yes
- Basement Description:Unfinished
- Living area:4,126 sq. ft.
Heating and cooling
- Heating:Furnace
Structure and exterior
- Roof:Composition
- Year built:2025
- Building area:4,126 sq. ft.
- Lot area:0.58 Acres
- Foundation Description:Concrete Perimeter
Utilities
- Water:Public
- Sewer:Public Sewer
Finances and disclosures
- Price:$699,000
- Price per sq. ft.:$169.41
- Tax amount:$350 (2025)
New listings near 107 Blazing Saddle Ct
- New
$340,000Active3 beds 2 baths1,087 sq. ft.605 Lewiston AVE, Pinehurst, ID 83850
MLS# 26-2416Listed by: KELLER WILLIAMS REALTY COEUR D'ALENE - New
$1,499,900Active3 beds 2 baths3,183 sq. ft.483 Paradise LN, Pinehurst, ID 83850
MLS# 26-2363Listed by: SILVERCREEK REALTY GROUP, LLC
$450,000Active3 beds 2 baths2,890 sq. ft.305 S 1st ST, Pinehurst, ID 83850
MLS# 26-2188Listed by: REAL BROKER LLC
$499,000Pending4 beds 3 baths2,300 sq. ft.502 Lewiston AVE, Pinehurst, ID 83850
MLS# 26-1848Listed by: BERKSHIRE HATHAWAY HOMESERVICES JACKLIN REAL ESTATE
$599,000Pending3 beds 3 baths1,903 sq. ft.101 Happy Trails LN, Pinehurst, ID 83850
MLS# 26-1612Listed by: SILVERCREEK REALTY GROUP, LLC
$245,000Pending2 beds 1 baths931 sq. ft.6 Maple AVE, Pinehurst, ID 83850
MLS# 26-1301Listed by: SILVERCREEK REALTY GROUP, LLC
$355,500Active3 beds 3 baths1,962 sq. ft.1 Elsie Peak CT #B1, BLDG B, Pinehurst, ID 83850
MLS# 26-1253Listed by: EXP REALTY
$126,000Pending2.24 Acres754 Paradise Lane, Pinehurst, ID 83850
MLS# 26-1105Listed by: CENTURY 21 BEUTLER & ASSOCIATES
$235,000Active2 beds 1 baths786 sq. ft.208 S 6th ST, Pinehurst, ID 83850
MLS# 26-946Listed by: SILVERCREEK REALTY GROUP, LLC
$579,000Active2 beds 2 baths2,738 sq. ft.207 S Division ST, Pinehurst, ID 83850
MLS# 26-844Listed by: KELLER WILLIAMS REALTY COEUR D'ALENE