L15B8 N Eclipse Road, Rathdrum, ID 83858
Local realty services provided by:ERA Shelman Realty
L15B8 N Eclipse Road,Rathdrum, ID 83858
$1,295,063
- 4 Beds
- 3 Baths
- 2,709 sq. ft.
- Single family
- Pending
Listed by: chad salsbury
Office: windermere hayden llc.
MLS#:20260038
Source:ID_SAR
Price summary
- Price:$1,295,063
- Price per sq. ft.:$478.06
- Monthly HOA dues:$60
About this home
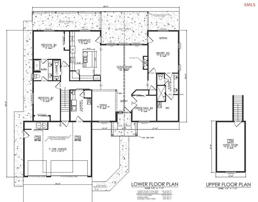
NEW CONSTRUCTION - 5 +/- ACRE TREED LOTS - LONE MOUNTAIN ESTATES NEW ADDITION AVAILABLE NOW! Craftsman home with detached shop is situated on 4.74 acres in desirable Lone Mountain Estates. This 2709 square foot home with high quality features offers 4 bedroom, 2.5 bathroom with bonus room, large great room with soaring vaulted ceilings, gas fireplace with masonry accents and large windows to capture the outdoors. The spacious kitchen offers an oversized island with an abundance of cabinets. The luxurious master suite features spacious walk-in closet, gorgeous bathroom with dual sinks, soaking tub and walk-in tiled shower. Enjoy relaxing or entertaining from the vaulted covered patio. Other lots and floor plans available in Lone Mountain Estates that is situated in the Lakeland School District. Easy access to Spokane and/or Coeur d'Alene.
Contact an agent
Home facts
- Year built:2026
- Listing ID #:20260038
- Added:70 day(s) ago
- Updated:March 19, 2026 at 10:10 AM
Rooms and interior
- Bedrooms:4
- Total bathrooms:3
- Kitchen Description:Breakfast Nook, Gourmet Kitchen, Pantry
- Living area:2,709 sq. ft.
Heating and cooling
- Cooling:Ceiling Fan(s)
- Heating:FORCED AIR, Fireplace(s), Furnace, Natural gas
- Central air:Yes
Structure and exterior
- Roof:Composition
- Year built:2026
- Building area:2,709 sq. ft.
- Lot area:4.74 Acres
- Lot Features:1 to 5 Miles to City/Town, Level, Wooded
- Architectural Style:Craftsman
- Construction Materials:Fiber Cement, Frame, Masonry
- Foundation Description:Concrete Perimeter
Schools
- High school:Other
- Middle school:Other
- Elementary school:Other
Utilities
- Water:Community
- Sewer:Septic Tank
Finances and disclosures
- Price:$1,295,063
- Price per sq. ft.:$478.06
Parking
- Total parking spaces:3
- Garage:Yes
New listings near L15B8 N Eclipse Road
- New
$1,134,797Active4 beds 2 baths2,709 sq. ft.L9B8 N Eclipse Road, Rathdrum, ID 83858
MLS# 26-2403Listed by: WINDERMERE/HAYDEN, LLC - New
$660,000Active4 beds 2 baths2,102 sq. ft.13457 N Bale St, Rathdrum, ID 83858
MLS# 26-2402Listed by: SOLID GROUND REAL ESTATE
$559,000Pending3 beds 2 baths1,613 sq. ft.11737 N SIMMONS LN, Rathdrum, ID 83858
MLS# 26-2388Listed by: COLDWELL BANKER SCHNEIDMILLER REALTY- New
$445,000Active3 beds 2 baths1,311 sq. ft.5914 W Irish DR, Rathdrum, ID 83858
MLS# 26-2372Listed by: NORTHWEST REALTY GROUP - New
$529,999Active3 beds 2 baths1,574 sq. ft.6673 W Frehley WAY, Rathdrum, ID 83858
MLS# 26-2371Listed by: EXP REALTY
$774,000Pending4 beds 4 baths2,533 sq. ft.5945 W MORESBY AVE, Rathdrum, ID 83858
MLS# 26-2343Listed by: COLDWELL BANKER SCHNEIDMILLER REALTY- New
$749,900Active4 beds 3 baths2,316 sq. ft.19652 N Silver Ln, Rathdrum, ID 83858
MLS# 26-2286Listed by: CENTURY 21 BEUTLER & ASSOCIATES
$469,000Pending3 beds 2 baths1,245 sq. ft.12139 N LENNON LN, Rathdrum, ID 83858
MLS# 26-1261Listed by: COLDWELL BANKER SCHNEIDMILLER REALTY- New
$525,000Active3 beds 2 baths1,582 sq. ft.7605 W Boekel RD, Rathdrum, ID 83858
MLS# 26-2282Listed by: PROFESSIONAL REALTY SERVICES IDAHO - New
$279,000Active0.33 Acres7918 W Twin Lakes RD, Rathdrum, ID 83858
MLS# 26-2226Listed by: SILVERCREEK REALTY GROUP, LLC