1545 Rolling Pass, Beecher, IL 60401
Local realty services provided by:ERA Naper Realty
Listed by: bill flemming
Office: homesmart connect llc.
MLS#:12621047
Source:MLSNI
Price summary
- Price:$338,990
- Price per sq. ft.:$189.17
About this home
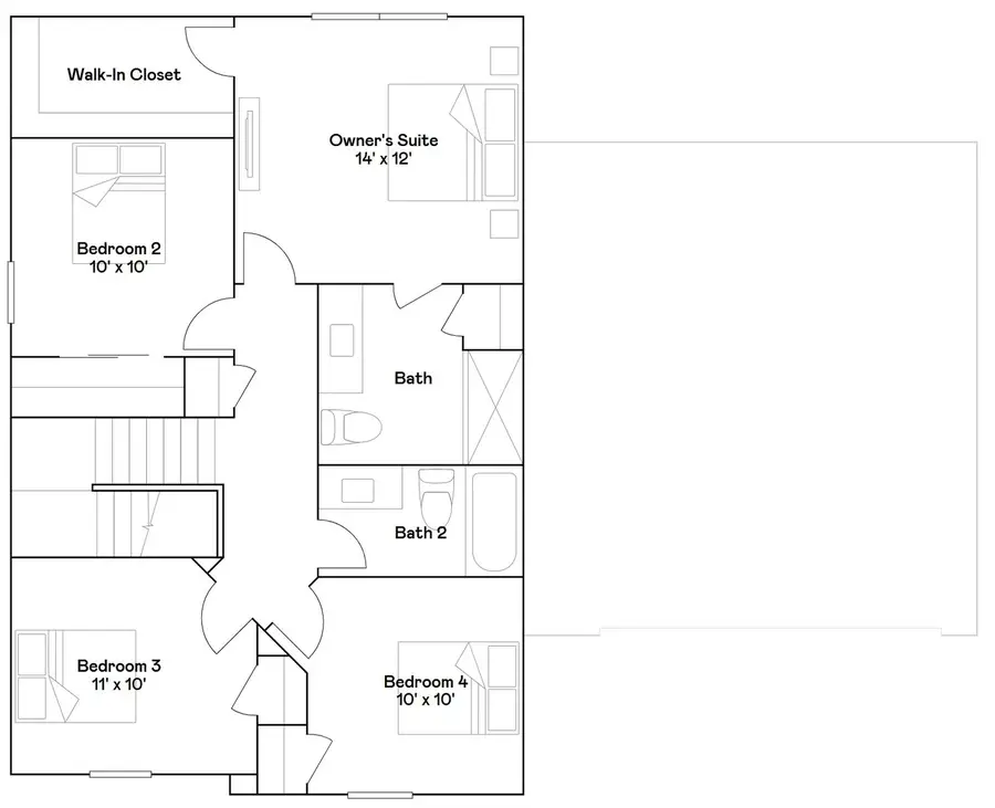
READY FOR MAY DELIVERY! Homesite #0032. Experience the Meadowlark model, a masterfully designed two-story home combining style and convenience. With three bedrooms, two bathrooms, and a powder room, this home offers the perfect space for modern living. The first floor features a bright, open-concept layout, with a spacious family room, accessible dining area, and an impressive kitchen. The kitchen includes a large island with beautiful countertops, ample cabinetry, stainless steel appliances, and a built-in pantry for added storage. Situated on the second floor, the owner's suite provides a peaceful haven, complete with a walk-in closet and a spa-inspired bathroom with double sinks, a deluxe shower, and high-end finishes. Two additional bedrooms share a full bathroom, and the practicality of a second-floor laundry room enhances the home's livability. The versatile loft and flex space offer endless possibilities for a home office, entertainment area, or extra living space to suit your needs. Throughout the home, thoughtful details like luxury vinyl plank flooring, quartz countertops, LED lighting, and decorative railings enhance both the aesthetic and functionality of every room. Exterior will be Country Beige color siding with Kings Mill color brick. (pic for reference ONLY). *Photos are not this actual home* Hunter's Chase provides a serene lifestyle with convenient access to nearby shopping, dining and more in downtown Beecher. Growing families will enjoy proximity to local schools, with endless outdoor recreation available at nearby nature preserves....
Contact an agent
Home facts
- Year built:2025
- Listing ID #:12621047
- Updated:April 23, 2026 at 10:48 AM
Rooms and interior
- Bedrooms:4
- Total bathrooms:3
- Full bathrooms:2
- Half bathrooms:1
- Rooms Total:8
- Kitchen Description:Dishwasher, Disposal, Microwave, Range, Stainless Steel Appliance(s)
- Basement:Yes
- Basement Description:Full, Unfinished
- Living area:1,792 sq. ft.
Heating and cooling
- Cooling:Central Air
- Heating:Forced Air, Natural Gas
- Central air:Yes
Structure and exterior
- Roof:Asphalt
- Year built:2025
- Building area:1,792 sq. ft.
- Levels:2 Story
Schools
- High school:Beecher High School
- Middle school:Beecher Junior High School
- Elementary school:Beecher Elementary School
Utilities
- Water:Public
- Sewer:Public Sewer
Finances and disclosures
- Price:$338,990
- Price per sq. ft.:$189.17
Parking
- Total parking spaces:2
- Parking description:Asphalt, Attached Garage, Garage
- Garage:Yes
- Garage spaces:2
New listings near 1545 Rolling Pass
- New
$44,900Active2 beds 2 baths69 Meadowlark Lane, Beecher, IL 60401
MLS# 12626527Listed by: VILLAGE REALTY, INC. - New
$279,000Active3 beds 3 baths1,464 sq. ft.422 Miller Street, Beecher, IL 60401
MLS# 12624013Listed by: OAK LEAF REALTY - New
$39,900Active3 beds 2 baths30 Meadowlark Lane, Beecher, IL 60401
MLS# 12624720Listed by: MCCOLLY REAL ESTATE - New
$1,100,000Active4 beds 3 baths3,500 sq. ft.1935 E Offner Road, Beecher, IL 60401
MLS# 12624700Listed by: EXCLUSIVE REALTORS - New
$675,000Active5 beds 2 baths1,668 sq. ft.29153 S Klemme Road, Beecher, IL 60401
MLS# 12622966Listed by: REALTY OF AMERICA, LLC
$288,800Pending3 beds 3 baths1,906 sq. ft.280 Sunset Boulevard, Beecher, IL 60401
MLS# 12621426Listed by: SPARTAN RESIDENTIAL- New
$250,000Active4 beds 2 baths463 Orchard Lane, Beecher, IL 60401
MLS# 12621591Listed by: 1% LISTS REAL ESTATE SOLUTIONS
$347,990Pending4 beds 3 baths2,362 sq. ft.1621 Rolling Pass, Beecher, IL 60401
MLS# 12617404Listed by: HOMESMART CONNECT LLC- New
$36,000Active2 beds 1 baths31 Meadowlark Lane, Beecher, IL 60401
MLS# 12616873Listed by: WIRTZ REAL ESTATE GROUP INC.