2156 N Claremont Street, Chicago, IL 60647
Local realty services provided by:ERA Naper Realty
Listed by: sophia klopas, jason stratton
Office: jameson sotheby's int'l realty
MLS#:12612291
Source:MLSNI
Price summary
- Price:$2,400,000
About this home
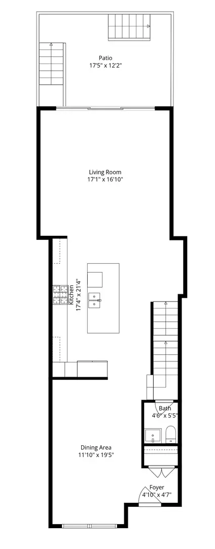
WALK THE HOUSE ON THE VIRTUAL TOUR BUTTON! 99% NEW CONSTRUCTION (enjoy lower taxes) - 1 WALL LEFT TO GIVE THE HOME 2 FEET OF MORE WIDTH. RARE 3 LEVELS ABOVE GROUND HOME - OVER 4200 SQFT. 6 BED + 5.5 BATHS (4 BEDS ABOVE GRADE). RARE ZONING IN BUCKTOWN THAT IS 1 BLOCK AWAY FROM HOLSTIEN PARK. SHORT WALK TO BLUE LINE, PULASKI SCHOOL. QUIET STREET THAT ONLY RUNS 1 BLOCK (NO TRAFFIC). ALL HIGH LEVEL FINISHES - 1ST FLOOR HAS OPEN KITCHEN WITH LARGE HEART OF THE HOME THAT OPENS UP TO GRILL DECK AND THEN UP TO GARAGE ROOF TOP DECK. SECOND FLOOR HAS 2 ON SUIT BEDROOMS, LAUNDRY AND LARGE MASTER BEDROOM SUIET (EVERY BEDROOM HAS ITS OWN BATHROOM). 3RD FLOOR (BONUS FLOOR) HAS 3RD FAMILY ROOM W/ BAR THAT WALKS OUT TO EAST FACING ROOF TOP DECK WITH FULL BATHROOM AND LARGE BEDROOM (ALMOST LIKE ITS OWN APARTMENT ON THE 3RD FLOOR). LOWER LEVEL HAS LARGE FAMILY ROOM, ANOTHER WET BAR. WHOLE BASEMENT HAS RADIANT HEATED FLOORS, AND 2 BEDROOMS. IN ALL - 3 ROOF DECKS, 6 BEDROOMS, 3 FAMILY ROOMS, 2 WET BARS, 5 AND HALF BATHS AND 2 CAR GARAGE....
Contact an agent
Home facts
- Listing ID #:12612291
- Updated:April 12, 2026 at 11:02 AM
Rooms and interior
- Bedrooms:6
- Total bathrooms:6
- Full bathrooms:5
- Half bathrooms:1
- Rooms Total:11
- Dining Description:Separate Dining Room
- Bathrooms Description:Double Sinks, Garden Tub, Steam Shower
- Kitchen Description:Dishwasher, Disposal, Double Oven, Freezer, Microwave, Refrigerator, Stainless Steel Appliance(s)
- Basement:Yes
- Basement Description:Finished
Heating and cooling
- Cooling:Central Air
- Heating:Forced Air, Individual Room Controls, Natural Gas, Radiant, Sep Heating Systems - 2+
- Central air:Yes
Structure and exterior
- Roof:Asphalt
- Architectural Style:American 4-Square, Contemporary
- Exterior Features:Balcony, Roof Deck
- Foundation Description:Concrete Perimeter
- Levels:2 Story
Schools
- Middle school:Pulaski International
- Elementary school:Pulaski International
Utilities
- Water:Public
- Sewer:Public Sewer
Finances and disclosures
- Price:$2,400,000
- Tax amount:$6,738 (2024)
Features and amenities
- Laundry features:Dryer, Washer
- Amenities:CO Detectors, Sump Pump, TV-Cable
Parking
- Total parking spaces:2
- Parking description:Detached Garage, Garage
- Garage:Yes
- Garage spaces:2
New listings near 2156 N Claremont Street
- New
$190,000Active4 beds 2 baths1,140 sq. ft.39 W 83rd Street, Chicago, IL 60620
MLS# 12614161Listed by: REAL 1 REALTY - New
$58,000Active3 beds 1 baths1,227 sq. ft.4850 S Lake Park Avenue #2111, Chicago, IL 60615
MLS# 12615432Listed by: REALTY OF AMERICA, LLC - New
$264,999Active2 beds 1 baths1,000 sq. ft.6867 N Overhill Avenue #1D, Chicago, IL 60631
MLS# 12616485Listed by: RE/MAX 10 - New
$175,000Active3 beds 2 baths1,195 sq. ft.9738 S Greenwood Avenue, Chicago, IL 60628
MLS# 12616507Listed by: EQUITABLE INVESTMENT GROUP INC - New
$235,000Active3 beds 2 baths1,216 sq. ft.9020 S King Drive, Chicago, IL 60619
MLS# 12616808Listed by: REAL PEOPLE REALTY - New
$450,000Active2 beds 2 bathsAddress Withheld By Seller, Chicago, IL 60611
MLS# 12616798Listed by: ANASIA INC - New
$526,500Active2 beds 3 baths2,154 sq. ft.814 W 15th Place, Chicago, IL 60608
MLS# 12615708Listed by: TRADEMARKS & ASSOCIATES - New
$359,999Active5 beds 2 baths941 sq. ft.5022 S Leclaire Avenue, Chicago, IL 60638
MLS# 12615821Listed by: ADAM ZAWADA - New
$650,000Active2 beds 3 baths1,663 sq. ft.2121 W Division Street #1, Chicago, IL 60622
MLS# 12615760Listed by: @PROPERTIES CHRISTIE'S INTERNATIONAL REAL ESTATE - New
$299,900Active1 beds 1 baths655 sq. ft.600 N Dearborn Street #1705, Chicago, IL 60610
MLS# 12615815Listed by: COMPASS