3820 N Damen Avenue #1, Chicago, IL 60618
Local realty services provided by:Results Realty ERA Powered
3820 N Damen Avenue #1,Chicago, IL 60618
$1,495,000
- 4 Beds
- 4 Baths
- 2,900 sq. ft.
- Condominium
- Active
Listed by: gordon munden, mark markarian
Office: jameson sotheby's intl realty
MLS#:12608160
Source:MLSNI
Price summary
- Price:$1,495,000
- Price per sq. ft.:$515.52
- Monthly HOA dues:$419
About this home
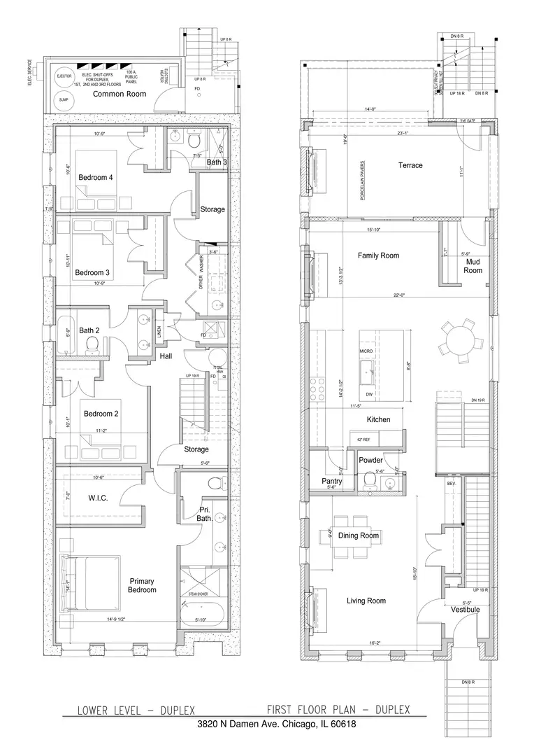
Luxury New Construction condo on an oversize 30' wide lot in the desirable neighborhood of North Center and Bell school district set for delivery in June 2026. Brand new 4-unit development built by long standing home builder Strand Partners LLC. Masonry and limestone building with extra-wide luxury condos along with a masonry 3-car garage with Coach House above. This high-end home with a timeless facade boasts premier finishes and quality throughout consisting of 4 bedrooms with 3.5 baths a private terrace with gas fireplace, porcelain decking, and abundant natural light. Top-of-the-line finishes throughout including custom chefs kitchen featuring breakfast nook, eat-in island, custom cabinetry, Thermador professional appliances, natural stone countertops, white oak hardwood floors, walk-in pantry, and tiled backsplash. Upscale trim includes 8' double panel solid doors with Emtek hardware, 7" base, 3.25" casing, and Kohler kitchen and bath fixtures. Bright and spacious family room off the kitchen with gas fireplace and stone mantle opens to the private outdoor space. A mud room off the breakfast nook is spacious with plenty of storage. Designer baths with detailed tile work, primary suite "wet room" with steam shower and soaking tub, double vanity, and heated floor. Walk-in laundry with full size W/D, separate mechanicals, storage, and radiant heat throughout lower level. Spacious bedrooms with generous built-out closet space in all. 10' ceilings on both levels with abundant natural light. Extra insulation and sound proofing between units, bathrooms and laundry. Weathershield casement and awning windows. With its prime location, you'll enjoy the convenience of being just steps away from all the vibrant shops and award-winning restaurants that Roscoe Village and North Center have to offer including easy access to public transportation, along with the highly regarded Bell school district. If you are looking for extra living quarters there is a spacious one-bedroom coach house listed separately, which would make a great nanny, in-law, or office. Shown by appointment....
Contact an agent
Home facts
- Year built:2026
- Listing ID #:12608160
- Updated:April 10, 2026 at 12:28 PM
Rooms and interior
- Bedrooms:4
- Total bathrooms:4
- Full bathrooms:3
- Half bathrooms:1
- Rooms Total:9
- Dining Description:Breakfast Room
- Bathrooms Description:Double Sinks, Separate Shower, Soaking Tub, Steam Shower
- Kitchen Description:Dishwasher, Disposal, High End Refrigerator, Microwave, Range, Range Hood
- Basement:Yes
- Basement Description:Finished, Full
- Living area:2,900 sq. ft.
Heating and cooling
- Cooling:Central Air
- Heating:Forced Air, Natural Gas, Radiant, Sep Heating Systems - 2+, Zoned
- Central air:Yes
Structure and exterior
- Year built:2026
- Building area:2,900 sq. ft.
Schools
- Elementary school:Alexander Graham Elementary Scho
Utilities
- Water:Lake Michigan
- Sewer:Public Sewer
Finances and disclosures
- Price:$1,495,000
- Price per sq. ft.:$515.52
Features and amenities
- Laundry features:Dryer, Washer
Parking
- Total parking spaces:1
- Parking description:Detached Garage, Garage
- Garage:Yes
- Garage spaces:1
New listings near 3820 N Damen Avenue #1
- New
$210,000Active-- beds 1 baths642 sq. ft.Address Withheld By Seller, Chicago, IL 60611
MLS# 12604045Listed by: JAMESON SOTHEBY'S INTL REALTY - Open Sat, 11am to 1pmNew
$375,000Active2 beds 1 baths800 sq. ft.901 W Cornelia Avenue #1N, Chicago, IL 60657
MLS# 12611932Listed by: FULTON GRACE REALTY - Open Sat, 1 to 3pmNew
$460,000Active3 beds 2 baths1,700 sq. ft.2702 W Chicago Avenue #2, Chicago, IL 60622
MLS# 12612439Listed by: COMPASS - Open Sat, 10am to 12pmNew
$275,000Active1 beds 1 baths420 S Clinton Street #110A, Chicago, IL 60607
MLS# 12612754Listed by: BERKSHIRE HATHAWAY HOMESERVICES CHICAGO - Open Sat, 11am to 1pmNew
$529,000Active5 beds 4 baths3,600 sq. ft.7251 S Paxton Avenue, Chicago, IL 60649
MLS# 12579446Listed by: RE/MAX IN THE VILLAGE - Open Sat, 11am to 1pmNew
$699,000Active2 beds 2 baths1,504 sq. ft.2500 N Seminary Avenue #4E, Chicago, IL 60614
MLS# 12584809Listed by: CHICAGO PROPERTIES FIRM - New
$120,000Active4 beds 2 baths1,620 sq. ft.8220 S Prairie Avenue, Chicago, IL 60619
MLS# 12602997Listed by: VILLAGE REALTY, INC. - Open Sat, 11am to 12:30pmNew
$1,300,000Active2 beds 3 baths250 E Pearson Street #1903, Chicago, IL 60611
MLS# 12607445Listed by: COMPASS - Open Sat, 11am to 12:30pmNew
$550,000Active2 beds 2 baths1123 W Chestnut Street #2E, Chicago, IL 60642
MLS# 12613192Listed by: COMPASS - Open Sat, 11am to 1pmNew
$565,000Active2 beds 2 baths2547 N Clark Street #2N, Chicago, IL 60614
MLS# 12613895Listed by: COMPASS