724 W Grace Street #1, Chicago, IL 60613
Local realty services provided by:ERA Naper Realty
724 W Grace Street #1,Chicago, IL 60613
$650,000
- 3 Beds
- 3 Baths
- - sq. ft.
- Condominium
- Sold
Listed by: sophia klopas, jason stratton
Office: jameson sotheby's int'l realty
MLS#:12593097
Source:MLSNI
Sorry, we are unable to map this address
Price summary
- Price:$650,000
- Monthly HOA dues:$600
About this home
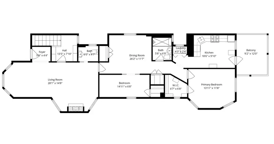
WATCH FULL WALK THRU VIDEO ON VTOUR BUTTON (LOOK AT FLOOR PLAN ON PICS). Step back in time in this amazing vintage home just blocks away from the lake. This 3 bed + office home offers over 2,700 sqft and features all the charm of a pre-war vintage duplex with the amenities desired for today's living. First floor has a massive 28-foot-long living room with large south-facing bay windows and a vintage fireplace, formal dining room, library area, second bedroom, and a large primary bedroom with walk-in closet, finished off with an updated kitchen that walks out to a private deck space and brick paver backyard. Lower level has a huge family room, office, bedroom with office area, and over 150 sqft of storage. Gut renovation was completed in 1994; since then, parapet wall was rebuilt 5 years ago, front half of the roof has been replaced, electrical has been updated, bathrooms upgraded, first floor laundry added, and the entire unit has been freshly painted. Garage parking included. HOA $600/month. Taxes $8,584. Six windows need to be replaced; estimate attached in additional information....
Contact an agent
Home facts
- Listing ID #:12593097
- Updated:May 16, 2026 at 07:04 AM
Rooms and interior
- Bedrooms:3
- Total bathrooms:3
- Full bathrooms:2
- Half bathrooms:1
- Rooms Total:9
- Dining Description:Separate Dining Room
- Kitchen Description:Dishwasher, Microwave, Range, Refrigerator, Stainless Steel Appliance(s)
- Basement Description:Finished, Full
Heating and cooling
- Cooling:Central Air
- Heating:Forced Air, Natural Gas
- Central air:Yes
Structure and exterior
- Roof:Asphalt
- Exterior Features:Balcony
Utilities
- Water:Lake Michigan, Public
- Sewer:Public Sewer
Finances and disclosures
- Price:$650,000
- Tax amount:$8,584 (2024)
Features and amenities
- Laundry features:Dryer, Washer
Parking
- Total parking spaces:1
- Parking description:Detached Garage, Garage
- Garage:Yes
- Garage spaces:1
New listings near 724 W Grace Street #1
- Open Sun, 1 to 3pmNew
$479,900Active8 beds 3 baths1419 S Kedvale Avenue, Chicago, IL 60623
MLS# 12650097Listed by: SOLARIS ENTERPRISES INC - New
$1,159,000Active3 beds 3 baths3,000 sq. ft.2717 N Lehmann Court N #1A, Chicago, IL 60614
MLS# 12647248Listed by: DWELL CHICAGO INC - New
$439,800Active6 beds 3 baths2,161 sq. ft.2936 N Kenneth Avenue, Chicago, IL 60641
MLS# 12647739Listed by: HOMESMART CONNECT LLC - New
$335,000Active1 beds 1 baths910 sq. ft.501 N Clinton Street #607, Chicago, IL 60654
MLS# 12650057Listed by: @PROPERTIES CHRISTIE'S INTERNATIONAL REAL ESTATE - Open Sat, 12 to 2pmNew
$529,900Active3 beds 3 baths1,900 sq. ft.4447 S Vincennes Avenue #2, Chicago, IL 60653
MLS# 12650083Listed by: FULTON GRACE REALTY - New
$179,900Active0 Acres3932 N Oak Park Avenue N, Chicago, IL 60634
MLS# 12522912Listed by: HOMETOWN REAL ESTATE GROUP LLC - Open Sat, 1 to 2:30pmNew
$699,900Active4 beds 3 baths327 S Leavitt Street #1, Chicago, IL 60612
MLS# 12572963Listed by: NORTH CLYBOURN GROUP, INC. - New
$725,000Active4 beds 4 baths4,200 sq. ft.5455 W Roscoe Street, Chicago, IL 60641
MLS# 12625636Listed by: @PROPERTIES CHRISTIE'S INTERNATIONAL REAL ESTATE - New
$359,900Active3 beds 2 baths2,000 sq. ft.1221 E Hyde Park Boulevard #1, Chicago, IL 60615
MLS# 12627485Listed by: REDFIN CORPORATION - Open Sat, 12 to 2pmNew
$650,000Active5 beds 5 baths2,954 sq. ft.9139 S Oakley Avenue, Chicago, IL 60643
MLS# 12630570Listed by: BERKSHIRE HATHAWAY HOMESERVICES CHICAGO