1851 Diamond Drive, Elgin, IL 60124
Local realty services provided by:Results Realty ERA Powered
1851 Diamond Drive,Elgin, IL 60124
$785,930
- 4 Beds
- 4 Baths
- 3,876 sq. ft.
- Single family
- Active
Listed by: bill flemming
Office: homesmart connect llc.
MLS#:12620988
Source:MLSNI
Price summary
- Price:$785,930
- Price per sq. ft.:$202.77
- Monthly HOA dues:$41.67
About this home
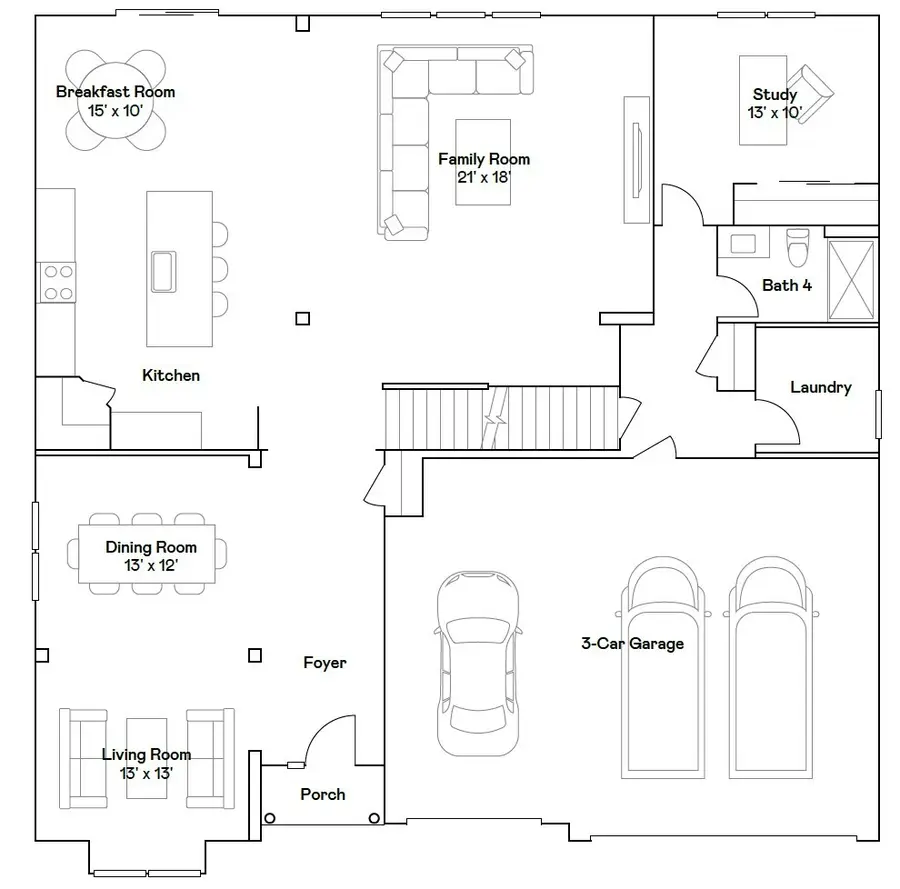
READY FOR JUNE DELIVERY!! Homesite #0254 This new two-story home is the community's largest floorplan. The first floor features a living and dining room at the front of the home, an open design among the family room, designer-select options, gourmet kitchen with GE Profile Double Oven, 36" cooktop, subway tile backsplash, soft-close cabinetry and drawers throughout and 36" vent hood and breakfast room and a secluded study. Upstairs, three secondary bedrooms and an owner's suite with a home office and a giant walk-in closet provide tranquil havens for family members. Exterior will be James Hardie sidings in the color Aged Pewter (pic for reference ONLY) *Photos are not this actual home* Ponds of Stony Creek is a welcoming community of new single-family homes in Elgin, IL, offering the perfect blend of comfort, convenience, and outdoor fun. Designed with families in mind, this community boasts fantastic onsite amenities, including a splash park, tot lot, picnic area, and scenic multi-use trails that wind through natural surroundings. Just a short drive away, downtown Elgin offers even more to explore. Situated along the Fox River, it features charming historic architecture, diverse shops and restaurants, and the popular Elgin Riverwalk-a local favorite for leisurely strolls and riverside views. Enjoy year-round entertainment with festivals, events, and exciting attractions like the Grand Victoria Casino. At Ponds of Stony Creek, every day brings new opportunities for recreation, relaxation, and connection in a community you'll love to call home....
Contact an agent
Home facts
- Year built:2025
- Listing ID #:12620988
- Updated:April 23, 2026 at 10:48 AM
Rooms and interior
- Bedrooms:4
- Total bathrooms:4
- Full bathrooms:4
- Rooms Total:11
- Dining Description:Breakfast Room
- Kitchen Description:Cooktop, Dishwasher, Disposal, Microwave, Range Hood, Stainless Steel Appliance(s)
- Basement:Yes
- Basement Description:Full, Unfinished
- Living area:3,876 sq. ft.
Heating and cooling
- Cooling:Central Air
- Heating:Forced Air, Natural Gas
- Central air:Yes
Structure and exterior
- Roof:Asphalt
- Year built:2025
- Building area:3,876 sq. ft.
- Levels:2 Story
Schools
- High school:St Charles North High School
- Middle school:Thompson Middle School
- Elementary school:Ferson Creek Elementary School
Utilities
- Water:Public
- Sewer:Public Sewer
Finances and disclosures
- Price:$785,930
- Price per sq. ft.:$202.77
Parking
- Total parking spaces:3
- Parking description:Asphalt, Attached Garage, Garage
- Garage:Yes
- Garage spaces:3
New listings near 1851 Diamond Drive
- New
$199,900Active-- beds -- bathsLot A Lenz Road, Elgin, IL 60124
MLS# 12626169Listed by: REAL BROKER LLC - Open Sun, 12 to 2pmNew
$399,900Active4 beds 3 baths1,598 sq. ft.25 Devonshire Circle, Elgin, IL 60123
MLS# 12625892Listed by: EXIT REALTY REDEFINED - New
$379,000Active3 beds 2 baths2,407 sq. ft.1125 Cedar Avenue, Elgin, IL 60120
MLS# 12626770Listed by: @PROPERTIES CHRISTIE'S INTERNATIONAL REAL ESTATE - New
$380,000Active2 beds 4 baths1,958 sq. ft.243 Garden Drive, Elgin, IL 60124
MLS# 12626566Listed by: BERKSHIRE HATHAWAY HOMESERVICES AMERICAN HERITAGE - New
$642,640Active4 beds 3 baths2,932 sq. ft.291 Snowdrop Lane, Elgin, IL 60124
MLS# 12626803Listed by: DAYNAE GAUDIO - New
$429,000Active3 beds 3 baths1,697 sq. ft.910 Oak Ridge Boulevard, Elgin, IL 60120
MLS# 12616444Listed by: GC REALTY AND DEVELOPMENT - Open Sun, 12 to 2pmNew
$235,000Active3 beds 2 baths1,230 sq. ft.463 North Street, Elgin, IL 60120
MLS# 12587290Listed by: EXP REALTY
$660,549Pending4 beds 4 baths2,356 sq. ft.204 Mountain Interval Road #06527, Schaumburg, IL 60193
MLS# 12625642Listed by: TWIN VINES REAL ESTATE SVCS
$691,211Pending4 beds 3 baths2,722 sq. ft.208 Mountain Interval Road #06426, Schaumburg, IL 60193
MLS# 12625674Listed by: TWIN VINES REAL ESTATE SVCS- Open Sun, 2 to 4pmNew
$430,000Active4 beds 3 baths2,410 sq. ft.1932 Banks Drive, Elgin, IL 60123
MLS# 12625522Listed by: REDFIN CORPORATION