1853 Chandolin Lane, Elgin, IL 60124
Local realty services provided by:Results Realty ERA Powered
1853 Chandolin Lane,Elgin, IL 60124
$769,900
- 4 Beds
- 4 Baths
- 3,876 sq. ft.
- Single family
- Active
Listed by: bill flemming
Office: homesmart connect llc.
MLS#:12502778
Source:MLSNI
Price summary
- Price:$769,900
- Price per sq. ft.:$198.63
- Monthly HOA dues:$41.67
About this home
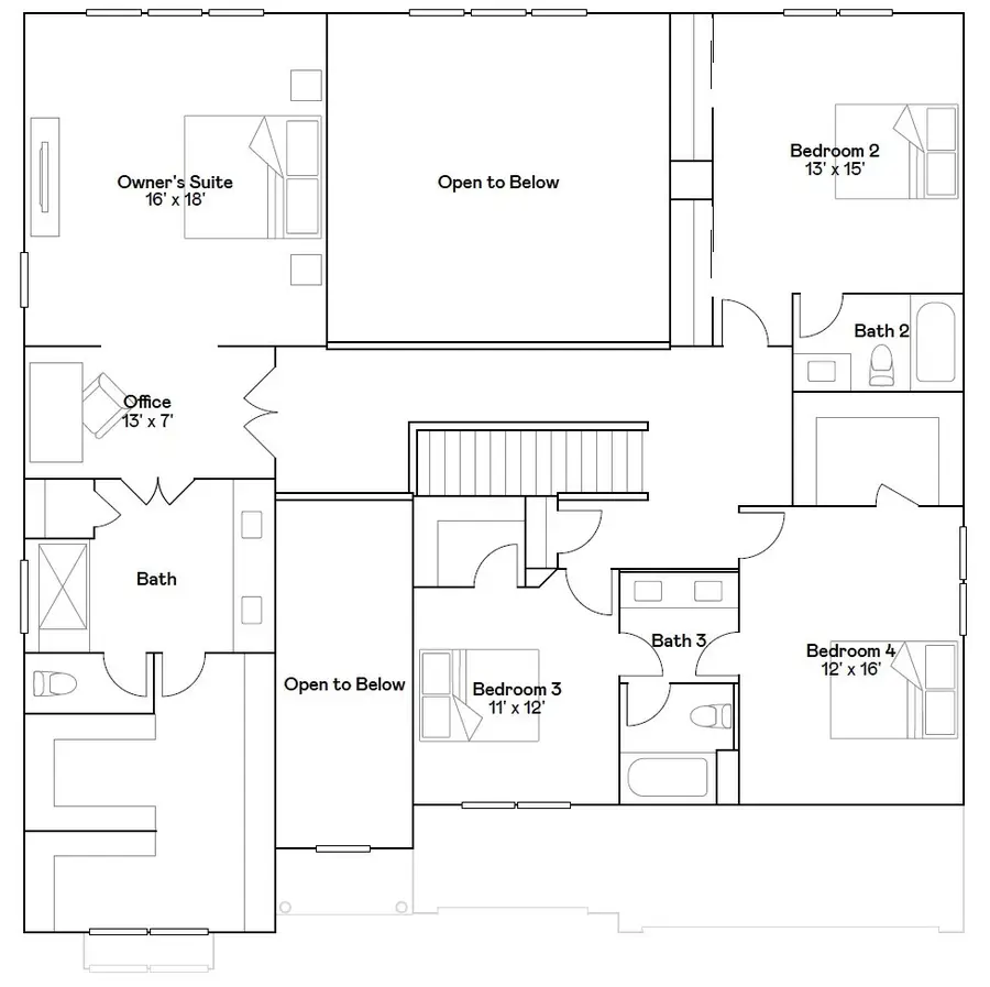
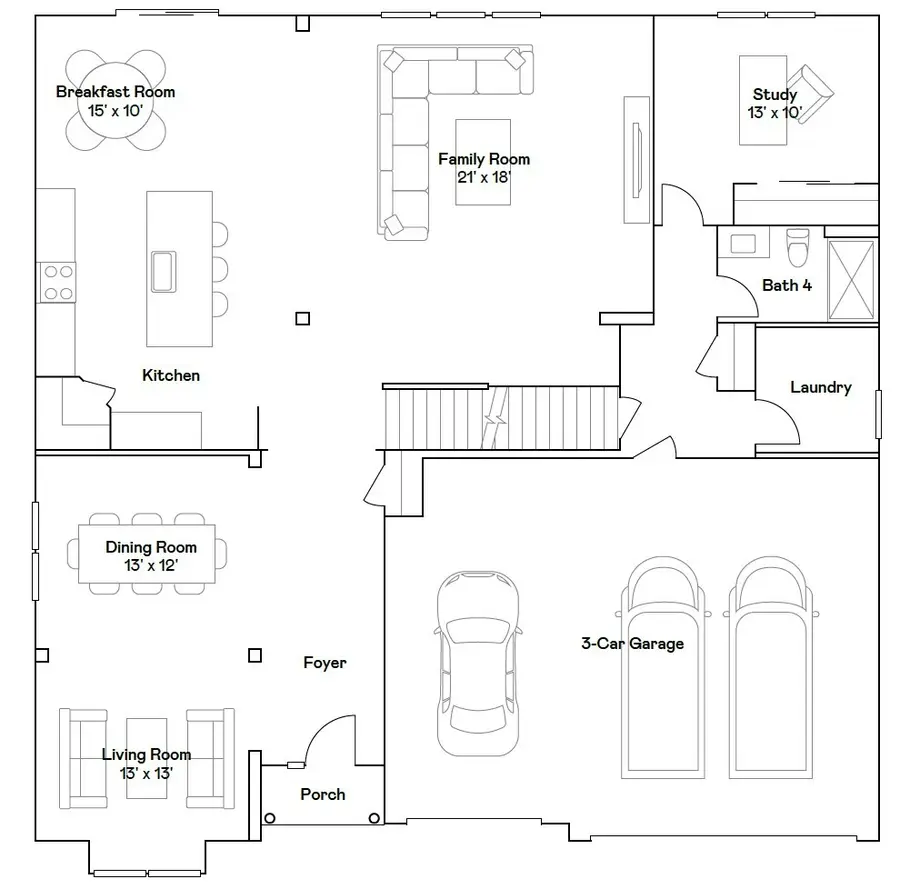
READY FOR MAY DELIVERY!! Homesite #0239 This new two-story home is the community's largest floorplan. The first floor features a living and dining room at the front of the home, an open design among the family room, designer-select options, gourmet kitchen with GE Profile Double Oven, 36" cooktop, subway tile backsplash, soft-close cabinetry and drawers throughout and 36" vent hood, breakfast room, and a secluded study. Upstairs, three secondary bedrooms and an owner's suite with a home office and a giant walk-in closet provide tranquil havens for family members. Exterior will be James Hardie Night Gray color siding with Old Lafayette exterior color brick. (pic for reference ONLY) *Photos are not this actual home* Ponds of Stony Creek is a welcoming community of new single-family homes in Elgin, IL, offering the perfect blend of comfort, convenience, and outdoor fun. Designed with families in mind, this community boasts fantastic onsite amenities, including a splash park, tot lot, picnic area, and scenic multi-use trails that wind through natural surroundings. Just a short drive away, downtown Elgin offers even more to explore. Situated along the Fox River, it features charming historic architecture, diverse shops and restaurants, and the popular Elgin Riverwalk-a local favorite for leisurely strolls and riverside views. Enjoy year-round entertainment with festivals, events, and exciting attractions like the Grand Victoria Casino. At Ponds of Stony Creek, every day brings new opportunities for recreation, relaxation, and connection in a community you'll love to call home....
Contact an agent
Home facts
- Year built:2025
- Listing ID #:12502778
- Added:156 day(s) ago
- Updated:March 29, 2026 at 10:48 AM
Rooms and interior
- Bedrooms:4
- Total bathrooms:4
- Full bathrooms:4
- Rooms Total:11
- Dining Description:Breakfast Room
- Kitchen Description:Cooktop, Dishwasher, Disposal, Microwave, Range Hood, Stainless Steel Appliance(s)
- Basement:Yes
- Basement Description:Full, Unfinished
- Living area:3,876 sq. ft.
Heating and cooling
- Cooling:Central Air
- Heating:Forced Air, Natural Gas
- Central air:Yes
Structure and exterior
- Roof:Asphalt
- Year built:2025
- Building area:3,876 sq. ft.
- Levels:2 Story
Schools
- High school:St Charles North High School
- Middle school:Thompson Middle School
- Elementary school:Ferson Creek Elementary School
Utilities
- Water:Public
- Sewer:Public Sewer
Finances and disclosures
- Price:$769,900
- Price per sq. ft.:$198.63
Parking
- Total parking spaces:3
- Parking description:Asphalt, Attached Garage, Garage
- Garage:Yes
- Garage spaces:3
New listings near 1853 Chandolin Lane
- New
$695,000Active4 beds 3 baths2,589 sq. ft.530 Cumberland Trail, Elgin, IL 60123
MLS# 12604056Listed by: PETER DROSSOS REAL ESTATE - New
$480,000Active2 beds 2 baths1,933 sq. ft.2791 Beacon Point Circle, Elgin, IL 60124
MLS# 12593171Listed by: BAIRD & WARNER - New
$410,000Active4 beds 3 baths1,872 sq. ft.2478 Crystal Creek Lane, Elgin, IL 60124
MLS# 12593495Listed by: KELLER WILLIAMS INFINITY - New
$415,000Active4 beds 3 baths3,187 sq. ft.585 Park Street, Elgin, IL 60120
MLS# 12602532Listed by: RE/MAX ALL PRO - New
$295,000Active3 beds 3 baths1,450 sq. ft.1780 Pebble Beach Circle, Elgin, IL 60123
MLS# 12603928Listed by: LUNA REAL ESTATE INC. - Open Sun, 12 to 2pmNew
$270,000Active3 beds 2 baths1,255 sq. ft.1670 College Green Drive, Elgin, IL 60123
MLS# 12603535Listed by: MPOWER RESIDENTIAL BROKERAGE LLC - Open Sun, 12 to 2pmNew
$430,000Active4 beds 3 baths2,410 sq. ft.1932 Banks Drive, Elgin, IL 60123
MLS# 12590066Listed by: REDFIN CORPORATION - New
$593,365Active4 beds 3 baths2,536 sq. ft.552 Ayre Drive, Elgin, IL 60124
MLS# 12603409Listed by: HOMESMART CONNECT LLC - New
$599,535Active4 beds 3 baths2,662 sq. ft.589 Lismore Circle, Elgin, IL 60124
MLS# 12603434Listed by: HOMESMART CONNECT LLC - New
$529,990Active4 beds 3 baths2,235 sq. ft.549 Ayre Drive, Elgin, IL 60124
MLS# 12603395Listed by: HOMESMART CONNECT LLC