3613 Sandstone Circle, Elgin, IL 60124
Local realty services provided by:Results Realty ERA Powered
3613 Sandstone Circle,Elgin, IL 60124
$611,990
- 4 Beds
- 3 Baths
- 2,437 sq. ft.
- Single family
- Active
Listed by: bill flemming
Office: homesmart connect llc.
MLS#:12589948
Source:MLSNI
Price summary
- Price:$611,990
- Price per sq. ft.:$251.12
- Monthly HOA dues:$41.67
About this home
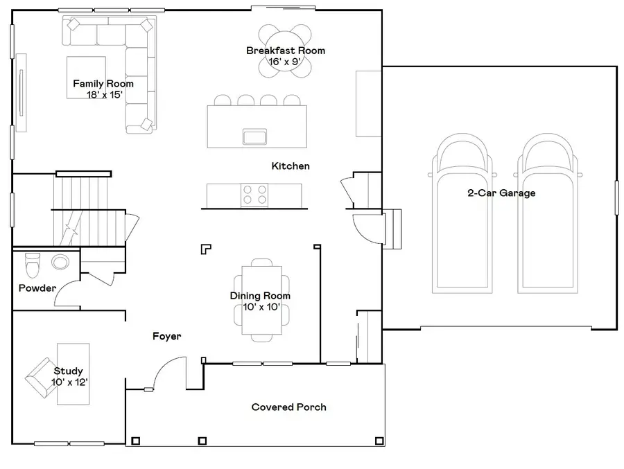
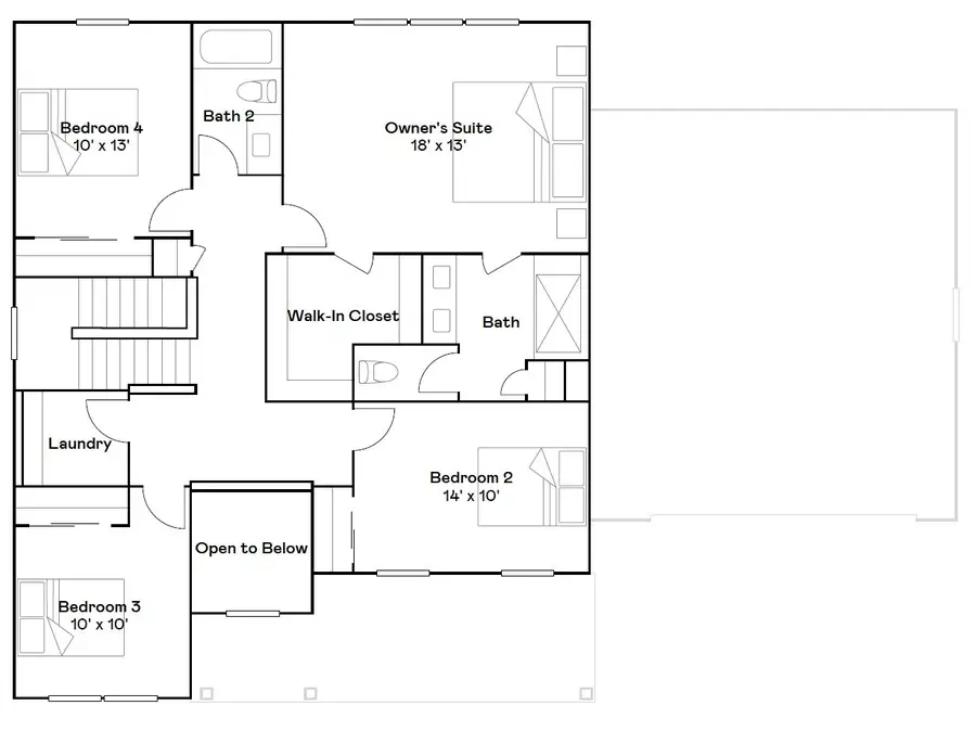
READY FOR JUNE DELIVERY! Homesite #0231. Introducing the Auburn model-a thoughtfully crafted two-story home that combines timeless elegance with everyday practicality. This spacious residence features four well-appointed bedrooms, two full baths, and a convenient powder room-ideal for family living and hosting guests. A private study and formal dining room flank the welcoming foyer, offering versatile spaces for both work and special gatherings. At the heart of the home, the kitchen-with its oversized center island, premium cabinetry, and sleek countertops-flows effortlessly into the breakfast room and the adjacent family room, creating a seamless open-concept layout perfect for daily life and entertaining. Upstairs, the owner's suite provides a serene retreat, complete with a generous walk-in closet and a spacious en-suite bathroom. Three additional bedrooms share the level, along with a second-floor laundry room-adding layout flexibility and modern convenience. With its thoughtful floor plan-formal living and dining areas, a dedicated study, open yet distinct kitchen-family spaces, and a well-equipped upper level-the Auburn model offers a perfect balance of sophistication and functional design. It's a brilliant option for today's modern families. Exterior will be James Hardie Deep Ocean color siding with Manor House exterior color brick. (pic for reference ONLY) *Photos are not this actual home* This is a corner homesite. This community features an array of great amenities, including a splash park, tot lot, picnic area and meandering multi-use trails. Situated on the Fox River, downtown Elgin is filled with historic buildings, shops and restaurants for families to enjoy. Spend time along the Elgin Riverwalk, partake in thrilling games at Grand Victoria Casino and attend lively festivities and events throughout the year....
Contact an agent
Home facts
- Year built:2025
- Listing ID #:12589948
- Added:1 day(s) ago
- Updated:March 13, 2026 at 10:59 AM
Rooms and interior
- Bedrooms:4
- Total bathrooms:3
- Full bathrooms:2
- Half bathrooms:1
- Rooms Total:9
- Dining Description:Breakfast Room
- Kitchen Description:Cooktop, Dishwasher, Disposal, Microwave, Range Hood, Stainless Steel Appliance(s)
- Basement:Yes
- Basement Description:Full, Unfinished
- Living area:2,437 sq. ft.
Heating and cooling
- Cooling:Central Air
- Heating:Forced Air, Natural Gas
- Central air:Yes
Structure and exterior
- Roof:Asphalt
- Year built:2025
- Building area:2,437 sq. ft.
- Levels:2 Story
Schools
- High school:St Charles North High School
- Middle school:Thompson Middle School
- Elementary school:Ferson Creek Elementary School
Utilities
- Water:Public
- Sewer:Public Sewer
Finances and disclosures
- Price:$611,990
- Price per sq. ft.:$251.12
Parking
- Total parking spaces:2
- Parking description:Asphalt, Attached Garage, Garage
- Garage:Yes
- Garage spaces:2
New listings near 3613 Sandstone Circle
- New
$349,000Active4 beds 3 baths1,740 sq. ft.371 North Street, Elgin, IL 60120
MLS# 12581669Listed by: COLDWELL BANKER REALTY - Open Sat, 12 to 2pmNew
$565,000Active4 beds 3 baths2,888 sq. ft.3681 Congressional Parkway, Elgin, IL 60124
MLS# 12588546Listed by: BAIRD & WARNER FOX VALLEY - GENEVA - New
$320,000Active3 beds 3 baths1,626 sq. ft.1135 Reserve Drive, Elgin, IL 60124
MLS# 12586368Listed by: COLDWELL BANKER REAL ESTATE GROUP - New
$395,000Active3 beds 2 baths1,565 sq. ft.974 Annandale Drive, Elgin, IL 60123
MLS# 12590401Listed by: KELLER WILLIAMS INFINITY - New
$670,000Active4 beds 4 baths3,261 sq. ft.3579 Emerald Road, Elgin, IL 60124
MLS# 12556708Listed by: BERKSHIRE HATHAWAY HOMESERVICES STARCK REAL ESTATE - Open Sun, 1 to 3pmNew
$635,000Active5 beds 4 baths2,833 sq. ft.3641 Eldorado Road, Elgin, IL 60124
MLS# 12590348Listed by: BAIRD & WARNER FOX VALLEY - GENEVA - New
$619,999Active5 beds 4 baths3,445 sq. ft.11N080 Juliet Drive, Elgin, IL 60124
MLS# 12582111Listed by: HOMETOWN REALTY GROUP - New
$550,000Active5 beds 3 baths3,308 sq. ft.436 W Amberside Drive, Elgin, IL 60124
MLS# 12584593Listed by: SUBURBAN LIFE REALTY, LTD - New
$419,900Active3 beds 3 baths1,894 sq. ft.1254 Red Oak Court, Elgin, IL 60120
MLS# 12576261Listed by: EXECUTIVE REALTY GROUP LLC