12197 Dodwell Street, Huntley, IL 60142
Local realty services provided by:ERA Naper Realty
12197 Dodwell Street,Huntley, IL 60142
$359,990
- 3 Beds
- 3 Baths
- 1,767 sq. ft.
- Townhouse
- Pending
Listed by: bill flemming
Office: homesmart connect llc.
MLS#:12560387
Source:MLSNI
Price summary
- Price:$359,990
- Price per sq. ft.:$203.73
- Monthly HOA dues:$230
About this home
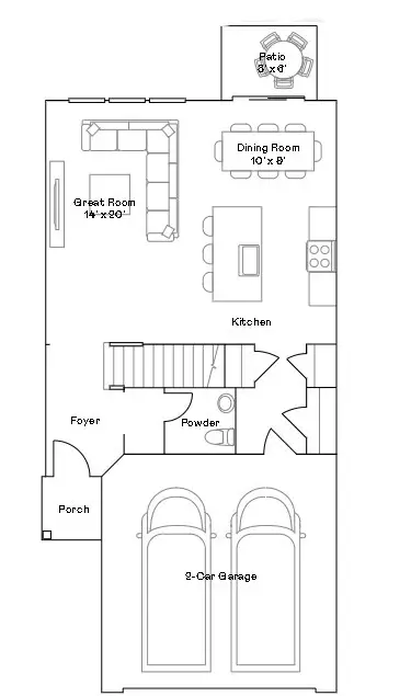
AVAILABLE FOR MARCH DELIVERY! Homesite #5604 Introducing the Marianne, a newly designed two-story townhome that seamlessly blends comfort and elegance. This model offers three spacious bedrooms, two full baths, a half bath, and a contemporary open-concept living space, complete with a two-car garage for added convenience. The first floor features the great room, the focal point of the home, effortlessly flowing into the dining area and the chef-inspired kitchen. The kitchen boasts a magnificent island with a breakfast bar, 42" cabinets, polished quartz countertops, and top-of-the-line stainless steel appliances. Luxury vinyl plank flooring spans the main floor, while sliding glass doors open to the patio, ideal for outdoor relaxation. On the second floor, you'll find two generously sized secondary bedrooms, along with the exquisite owner's suite-a true sanctuary to unwind after a busy day. This serene retreat includes a generous walk-in closet and a spa-inspired bath, complete with a deluxe shower for the ultimate relaxation experience. Complete with a convenient upstairs laundry room, the Marianne combines thoughtful design and modern amenities, offering both comfort and style in every corner. *Photos are not this actual home* Regency Square offers an exciting opportunity to own a new home in the heart of Huntley, just minutes from its vibrant and bustling downtown. Designed for a variety of lifestyles, this thoughtfully planned community will feature a three-acre park, dog park, and a scenic lake, all providing residents with a peaceful connection to nature and plenty of space to relax and recharge. Just around the corner, Deicke Park offers expansive green space ideal for picnics, sports, and outdoor fun. With walking trails, a serene pond, and playgrounds for all ages, it's the perfect local retreat for families and individuals alike. Downtown Huntley enhances the lifestyle with its charming small-town atmosphere, tree-lined streets, and a wide variety of boutiques, cafes, and restaurants. Whether you're exploring local artisan shops or enjoying a cozy meal at a favorite eatery, there's something to discover around every corner. For those seeking fun and adventure, the Stingray Bay Aquatic Center is just minutes away. Dive into excitement with a massive pool, thrilling water slides, and a splash park perfect for younger kids-offering a mix of relaxation and recreation for all ages. At Regency Square, you're not just finding a home-you're becoming part of a community rich in amenities, charm, and everyday convenience....
Contact an agent
Home facts
- Year built:2025
- Listing ID #:12560387
- Added:53 day(s) ago
- Updated:March 29, 2026 at 07:57 AM
Rooms and interior
- Bedrooms:3
- Total bathrooms:3
- Full bathrooms:2
- Half bathrooms:1
- Rooms Total:6
- Kitchen Description:Dishwasher, Disposal, Microwave, Range, Stainless Steel Appliance(s)
- Basement:Yes
- Living area:1,767 sq. ft.
Heating and cooling
- Cooling:Central Air
- Heating:Forced Air, Natural Gas
- Central air:Yes
Structure and exterior
- Roof:Asphalt
- Year built:2025
- Building area:1,767 sq. ft.
- Lot Features:Common Grounds
Schools
- High school:Huntley High School
- Middle school:Heineman Middle School
- Elementary school:Leggee Elementary School
Utilities
- Water:Public
- Sewer:Public Sewer
Finances and disclosures
- Price:$359,990
- Price per sq. ft.:$203.73
Parking
- Total parking spaces:2
- Parking description:Asphalt, Attached Garage, Garage
- Garage:Yes
- Garage spaces:2
New listings near 12197 Dodwell Street
- Open Sun, 1 to 3pmNew
$379,000Active2 beds 2 baths1,551 sq. ft.12939 Mesa Street, Huntley, IL 60142
MLS# 12603619Listed by: BERKSHIRE HATHAWAY HOMESERVICES STARCK REAL ESTATE - Open Sun, 11am to 1pmNew
$354,900Active2 beds 2 baths1,450 sq. ft.12942 Wisconsin Circle, Huntley, IL 60142
MLS# 12582421Listed by: HUNTLEY REALTY - Open Sun, 3 to 4pmNew
$259,900Active2 beds 2 baths1,150 sq. ft.11722 Daniel Lane #39, Huntley, IL 60142
MLS# 12599600Listed by: KELLER WILLIAMS SUCCESS REALTY - New
$479,000Active3 beds 3 baths2,256 sq. ft.9490 Diana Lane, Huntley, IL 60142
MLS# 12600483Listed by: KELLER WILLIAMS SUCCESS REALTY - Open Sun, 12 to 2pmNew
$385,900Active2 beds 2 baths1,744 sq. ft.12970 Brookwood Drive, Huntley, IL 60142
MLS# 12601955Listed by: BERKSHIRE HATHAWAY HOMESERVICES STARCK REAL ESTATE - New
$549,900Active4 beds 4 baths3,242 sq. ft.9668 Rainsford Drive, Huntley, IL 60142
MLS# 12589193Listed by: REALTY EXECUTIVES CORNERSTONE - New
$330,000Active2 beds 2 baths1,197 sq. ft.13498 Lehigh Street, Huntley, IL 60142
MLS# 12602602Listed by: RE/MAX SUBURBAN - New
$369,000Active3 beds 4 baths1,637 sq. ft.9834 Cummings Street, Huntley, IL 60142
MLS# 12602746Listed by: CENTURY 21 INTEGRA - New
$369,990Active3 beds 3 baths1,767 sq. ft.12173 Dodwell Street, Huntley, IL 60142
MLS# 12602870Listed by: HOMESMART CONNECT LLC - New
$354,990Active3 beds 3 baths1,764 sq. ft.12326 Tinsley Street, Huntley, IL 60142
MLS# 12602885Listed by: HOMESMART CONNECT LLC