1621 N Breckenridge Road, Bloomington, IN 47404
Local realty services provided by:ERA Crossroads
Listed by: tracee lutes, drew herronCell: 812-322-2650
Office: re/max acclaimed properties
MLS#:202538994
Source:Indiana Regional MLS
Price summary
- Price:$214,000
- Price per sq. ft.:$152.86
About this home
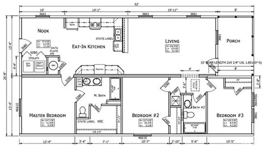
An new affordable 3 BR, 2 Bath single level home with plenty of living space and a covered front porch! Choose many of your selections and watch your home being built for you. This is a PROPOSED CONSTRUCTION and buyers may increase or reduce the size of the home and may choose their finishes making the purchase price higher or lower depending on their choices. This is a part of the Summit Hill Land Trust project and the lot is a leased lot rather than a part of the purchase price and sale. The Land Trust will provide all information regarding a long term land lease and financing availability. There is a maximum income limit for buyer's to qualify for the program which means the buyer is limited to earning less than 120% of the area median income. Buyer's will work with a representative from the Land Trust to assist with the qualification process.
Contact an agent
Home facts
- Year built:2025
- Listing ID #:202538994
- Added:139 day(s) ago
- Updated:February 10, 2026 at 04:34 PM
Rooms and interior
- Bedrooms:3
- Total bathrooms:2
- Full bathrooms:2
- Living area:1,400 sq. ft.
Heating and cooling
- Cooling:Central Air
- Heating:Gas
Structure and exterior
- Roof:Shingle
- Year built:2025
- Building area:1,400 sq. ft.
- Lot area:0.09 Acres
Schools
- High school:Bloomington North
- Middle school:Tri-North
- Elementary school:Arlington Heights
Utilities
- Water:City
- Sewer:City
Finances and disclosures
- Price:$214,000
- Price per sq. ft.:$152.86
New listings near 1621 N Breckenridge Road
- New
$329,000Active3 beds 2 baths1,246 sq. ft.1110 W 6th Street, Bloomington, IN 47404
MLS# 202604294Listed by: RE/MAX ACCLAIMED PROPERTIES - New
$369,900Active3 beds 3 baths1,880 sq. ft.5786 W Tensleep Road, Bloomington, IN 47403
MLS# 202604270Listed by: RE/MAX ACCLAIMED PROPERTIES - New
$459,900Active3 beds 3 baths1,952 sq. ft.3030 E Carowinds Court, Bloomington, IN 47401
MLS# 202604273Listed by: RE/MAX ACCLAIMED PROPERTIES - Open Sun, 1 to 3pmNew
$525,000Active5 beds 3 baths3,792 sq. ft.5368 W Stonewood Drive, Bloomington, IN 47403
MLS# 202604250Listed by: BERKSHIRE HATHAWAY HOMESERVICES INDIANA REALTY-BLOOMINGTON - New
$199,000Active2 beds 1 baths1,532 sq. ft.927 W 6th Street, Bloomington, IN 47404
MLS# 202604246Listed by: CENTURY 21 SCHEETZ - BLOOMINGTON - New
$219,900Active3 beds 3 baths1,251 sq. ft.2869 S Walnut Street Pike, Bloomington, IN 47401
MLS# 202604230Listed by: UTNAGE REALTY - New
$229,900Active3 beds 2 baths1,276 sq. ft.1134 E Regency Drive, Bloomington, IN 47401
MLS# 202604187Listed by: SYCAMORE REAL ESTATE GROUP - New
$145,000Active3 beds 2 baths1,155 sq. ft.3350 W Indian Creek Drive, Bloomington, IN 47403
MLS# 202604189Listed by: RE/MAX ACCLAIMED PROPERTIES - New
$590,000Active4 beds 3 baths2,291 sq. ft.1158 E Citation Drive, Bloomington, IN 47401
MLS# 202604198Listed by: CENTURY 21 SCHEETZ - BLOOMINGTON - New
$465,000Active3.12 Acres3379 W Profile Parkway, Bloomington, IN 47404
MLS# 202604202Listed by: COLLIERS INTERNATIONAL