18625 158 Th Street, Basehor, KS 66007
Local realty services provided by:ERA McClain Brothers
18625 158 Th Street,Basehor, KS 66007
$2,800,000
- 0 Acres
- Lots / Land
- Active
Listed by: krishna chinnam
Office: keller williams realty partners inc.
MLS#:2603848
Source:Bay East, CCAR, bridgeMLS
Price summary
- Price:$2,800,000
About this home
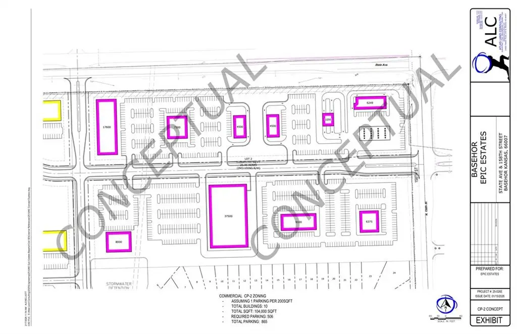
Multiple listings on-site. This listing is for the highlighted section of the plan only.
Outstanding 21.86± acre commercial development opportunity at 18625 168th Street, Basehor, KS 66007. This offering represents the highlighted commercial portion of the master plan and is positioned to become a cornerstone retail and business destination within one of Basehor’s fastest-growing corridors.
Prime Visibility & Positioning
Located directly across from the new Fareway Grocery Store, this tract benefits from strong daily traffic counts and built-in consumer activity. Immediate proximity to Basehor-Linwood schools further enhances daytime population and long-term retail demand.
Infrastructure in Place
• Water mains along north and east property lines
• Sewer extended approximately halfway into the site
• Utilities available on or immediately adjacent
• Reduced development timeline and lower upfront capital costs
Scale & Flexibility
One of the largest remaining commercially zoned tracts along the Hwy 24/40 corridor, offering the rare opportunity to design a cohesive retail center, mixed commercial campus, grocery shadow center, medical plaza, or large-format retail development.
Regional Growth Advantage
Strategically positioned within minutes of the Legends area and the greater Kansas City metro, the site captures both regional traffic and strong local rooftops. As residential growth accelerates in Basehor, this property stands to serve as a primary commercial hub for the community.
Development Ready
Preliminary site concepts have been prepared, allowing developers to move efficiently toward approvals and vertical construction.
Investment Highlights
• 21.86± acres – Commercial zoning
• Direct frontage on paved, public-maintained roads
• High-visibility corridor location
• Adjacent to new grocery anchor
• Located within an expanding residential growth market
A rare large-scale commercial opportunity with infrastructure advantages....
Contact an agent
Home facts
- Listing ID #:2603848
- Added:32 day(s) ago
- Updated:March 29, 2026 at 02:22 PM
Structure and exterior
- Lot Features:City Limits
Utilities
- Water:Rural
- Sewer:Septic Tank
Finances and disclosures
- Price:$2,800,000
New listings near 18625 158 Th Street
$544,395Pending3 beds 3 baths2,319 sq. ft.14679 Amanda Lane, Basehor, KS 66007
MLS# 2609804Listed by: WEICHERT, REALTORS WELCH & CO.- New
$499,950Active3 beds 3 baths2,362 sq. ft.5003 N 145th Street, Basehor, KS 66007
MLS# 2609267Listed by: WEICHERT, REALTORS WELCH & CO. - New
$352,500Active3 beds 3 baths2,430 sq. ft.3705 N 153rd Street, Basehor, KS 66007
MLS# 2609489Listed by: GREATER KANSAS CITY REALTY
$913,911Pending4 beds 4 baths3,320 sq. ft.16622 Orchard Road, Basehor, KS 66007
MLS# 2609132Listed by: WEICHERT, REALTORS WELCH & CO.- New
$425,000Active4 beds 3 baths2,167 sq. ft.802 154th Circle, Basehor, KS 66007
MLS# 2608142Listed by: PLATINUM REALTY LLC
$543,010Pending3 beds 3 baths2,319 sq. ft.14625 Amanda Lane, Basehor, KS 66007
MLS# 2609318Listed by: WEICHERT, REALTORS WELCH & CO.- New
$486,895Active3 beds 3 baths2,020 sq. ft.1475 N 163rd Street, Basehor, KS 66007
MLS# 2609060Listed by: REECENICHOLS - LEES SUMMIT - Open Sun, 12 to 2pmNew
$459,950Active4 beds 4 baths2,412 sq. ft.16349 Lolly Lane, Basehor, KS 66007
MLS# 2607401Listed by: LYNCH REAL ESTATE
$359,900Pending3 beds 3 baths1,896 sq. ft.15588 Crestwood Drive, Basehor, KS 66007
MLS# 2604997Listed by: PLATINUM REALTY LLC- Open Sun, 12 to 4pmNew
$489,950Active3 beds 4 baths2,120 sq. ft.1400 N 157th Lane, Basehor, KS 66007
MLS# 2608372Listed by: SPEEDWAY REALTY LLC