868 Belle Rdg Lp, Bellevue, KY 41073
Local realty services provided by:ERA Real Solutions Realty
868 Belle Rdg Lp,Bellevue, KY 41073
$669,000
- 3 Beds
- 4 Baths
- 2,100 sq. ft.
- Single family
- Active
Listed by: charles pond
Office: tree ridge realty, llc.
MLS#:637547
Source:KY_NKMLS
Price summary
- Price:$669,000
- Price per sq. ft.:$318.57
- Monthly HOA dues:$100
About this home
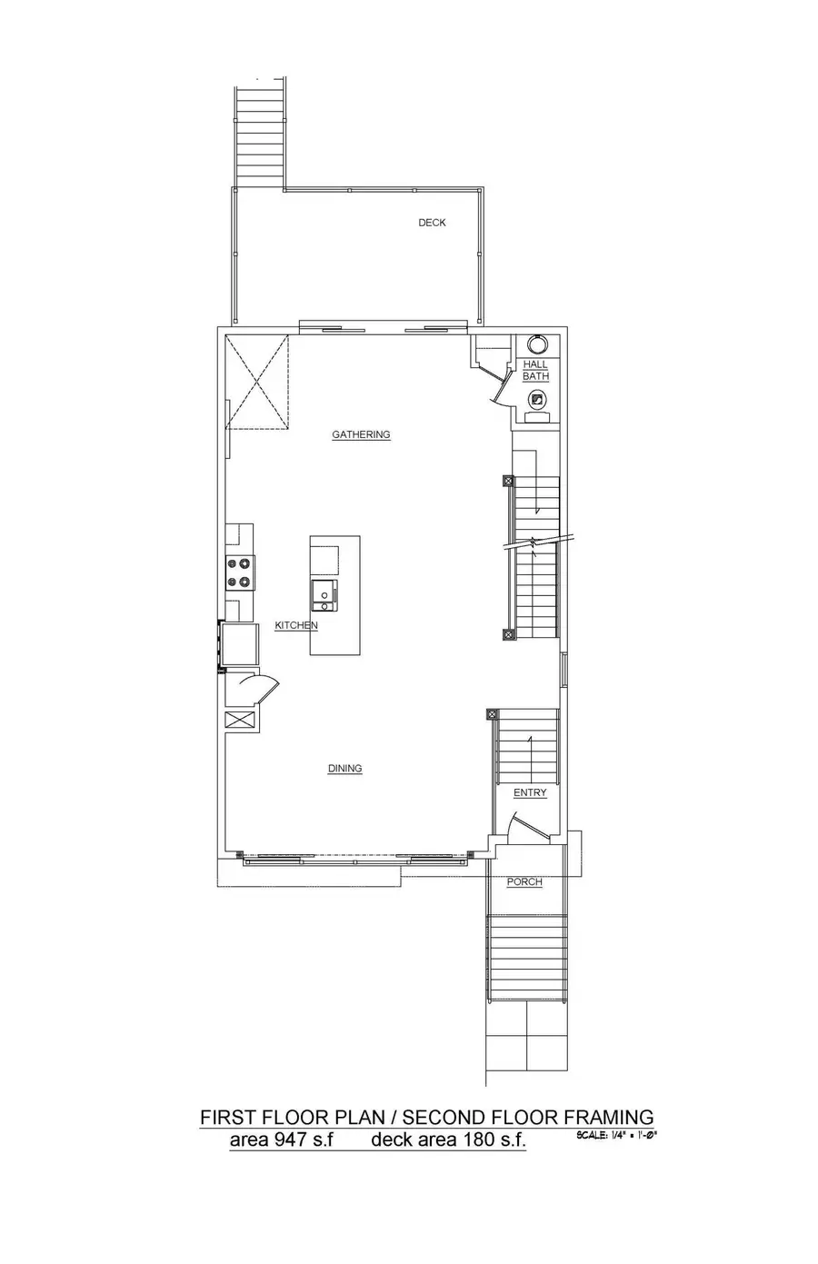
NEW CONSTRUCTION Aydan model with multiple levels of outdoor living and amazing seasonal city skyline views! This ReaLife Homes 3 story, 3 bedroom, 2 car garage model features the following: Contemporary interior and exterior finishes, 9 foot ceilings, open great room/ kitchen/ dining area with full wall glass door opening to the pond and waterfall in the rear yard, covered rooftop deck with direct bedroom access, granite countertops, specialty lighting, luxury tile and vinyl plank flooring, and MORE! Come experience one of a kind urban living in the completely new development of Reserve at Bellevue, a Northern Kentucky Homefest site. Development features amenities such as a golf cart friendly community, beautiful entry pond with cascading waterfalls, community gathering spaces with fire pits and grill areas, and an approximately 1 mile combination of concrete and wooded walking paths. One of the largest new urban developments within just minutes of downtown Cincinnati, the river, and all the shopping of Newport Pavilion. Buyer can pick from multiple cutting edge urban contemporary plans for this and other available ReaLife Homes lots....
Contact an agent
Home facts
- Year built:2026
- Listing ID #:637547
- Added:206 day(s) ago
- Updated:May 23, 2026 at 02:54 PM
Rooms and interior
- Bedrooms:3
- Total bathrooms:4
- Full bathrooms:3
- Half bathrooms:1
- Rooms Total:8
- Kitchen Description:Dishwasher, Disposal, Electric Oven, Gas Range, Pantry, Refrigerator, Stainless Steel Appliance(s)
- Living area:2,100 sq. ft.
Heating and cooling
- Cooling:Central Air
- Heating:Forced Air
- Central air:Yes
Structure and exterior
- Year built:2026
- Building area:2,100 sq. ft.
- Lot area:0.08 Acres
- Lot Features:Cleared, Cul-De-Sac, Sloped
- Architectural Style:Contemporary
- Construction Materials:Fiber Cement
- Exterior Features:Balcony, Deck, Lighting, Private Yard
- Foundation Description:Poured Concrete
Schools
- High school:Campbell County High
- Middle school:Campbell County Middle School
- Elementary school:Crossroads Elementary
Utilities
- Water:Public, Water Available
- Sewer:Public Sewer, Sewer Available
Finances and disclosures
- Price:$669,000
- Price per sq. ft.:$318.57
Features and amenities
- Appliances:Refrigerator
- Laundry features:Washer Hookup
- Amenities:Cathedral Ceiling(s), Ceiling Fan(s), Granite Counters, High Ceilings, Landscaping, Multi Panel Doors, Trail(s), Vinyl Frames
Parking
- Total parking spaces:4
- Garage:Yes
- Garage spaces:2
New listings near 868 Belle Rdg Lp
- Open Sat, 12 to 1:30pmNew
$543,900Active3 beds 3 baths2,074 sq. ft.484 Van Voast Avenue, Bellevue, KY 41073
MLS# 642873Listed by: PIVOT REALTY GROUP - New
$279,900Active3 beds 2 baths1,167 sq. ft.320 Lafayette Avenue #318, Bellevue, KY 41073
MLS# 642820Listed by: RE/MAX VICTORY + AFFILIATES - Open Sat, 1 to 3pmNew
$340,000Active3 beds 2 baths1,672 sq. ft.324 Foote Avenue, Bellevue, KY 41073
MLS# 642810Listed by: SIMPLE FEE REALTY - Open Sun, 1 to 3pmNew
$274,900Active3 beds 2 baths1,320 sq. ft.329 Berry Avenue, Bellevue, KY 41073
MLS# 642801Listed by: EXP REALTY, LLC - Open Sat, 11am to 12:30pmNew
$375,000Active3 beds 2 baths1,484 sq. ft.138 Ward Avenue, Bellevue, KY 41073
MLS# 642792Listed by: KELLER WILLIAMS ADVISORS - Open Sun, 12 to 1pmNew
$995,000Active3 beds 3 baths864 Belle Ridge Loop, Bellevue, KY 41073
MLS# 642776Listed by: SIDE REALTY LLC - New
$569,900Active3 beds 3 baths112 Ward Avenue, Bellevue, KY 41073
MLS# 642647Listed by: PLUM TREE REALTY - New
$385,000Active4 beds 2 baths145 Lake Street, Bellevue, KY 41073
MLS# 642740Listed by: HUFF REALTY - FT. MITCHELL - Open Sat, 11am to 1pmNew
$469,900Active5 beds 3 baths1,808 sq. ft.363 Berry Avenue, Bellevue, KY 41073
MLS# 642680Listed by: HUFF REALTY - FLORENCE
$299,000Pending3 beds 2 baths1,000 sq. ft.319 Berry Avenue, Bellevue, KY 41073
MLS# 642678Listed by: HUFF REALTY - CC