00 I-12, Covington, LA 70433
Local realty services provided by:ERA TOP AGENT REALTY
00 I-12,Covington, LA 70433
$1,012,500
- 40.5 Acres
- Lots / Land
- Active
Listed by: terrie hughes
Office: kpg realty, llc.
MLS#:2546053
Source:LA_GSREIN
Price summary
- Price:$1,012,500
About this home
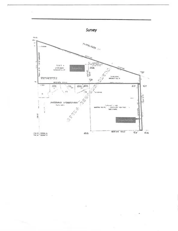
ATTENTION DEVELOPERS! 40.5 Beautiful wooded acres for sale in Covington, LA. This Prime Property is located in NO FLOOD ZONE X as noted in the April 30, 2008 new flood zoning map . There is a 60 foot wide Access Servitude already in place from Brewster Road to the parcel to the right of the undeveloped land on the right side of the Nottoway subdivision. The acres are located between Highway 1077 and Highway 21 on the south side of I-12 and north of the Nottoway subdivision. The Nottoway subdivision abuts the property. There is an approximate 100' foot wooded buffer between the property and I-12. This incredible location is convenient to everything with quick easy access to I-12 from Highway 1077 or Highway 21, the city of Covington, Madisonville, Mandeville, Robert, Slidell, Hammond and the Causeway Bridge. All utilities are available in the area. This is a fabulous location for a new residential development. Homeowners can enjoy excellent private and public schools, nearby shopping, numerous restaurants, St. Tammany Hospital, recreation facilities, festivals and the wonderful lifestyle of living on the north shore....
Contact an agent
Home facts
- Listing ID #:2546053
- Added:71 day(s) ago
- Updated:May 14, 2026 at 03:13 PM
Structure and exterior
- Lot area:40.5 Acres
- Lot Features:Acreage, Outside City Limits
Schools
- High school:St.Tammany
- Middle school:St.Tammany
- Elementary school:St.Tammany
Utilities
- Water:Public
- Sewer:Public Sewer
Finances and disclosures
- Price:$1,012,500
New listings near 00 I-12
- New
$465,000Active3 beds 3 baths2,569 sq. ft.14272 S Lakeshore Drive, Covington, LA 70435
MLS# 2555796Listed by: COMPASS MANDEVILLE (COMP15) - New
$549,000Active4 beds 3 baths2,406 sq. ft.660 Place Saint Etienne Place, Covington, LA 70433
MLS# 2558425Listed by: ALL AROUND REALTY, LLC - New
$350,000Active3 beds 2 baths1,651 sq. ft.75451 Beverly Drive, Covington, LA 70435
MLS# 2558357Listed by: WATERMARK REALTY, LLC - New
$239,000Active3 beds 2 baths1,377 sq. ft.70468 H Street, Covington, LA 70433
MLS# 2552350Listed by: 1 PERCENT LISTS - New
$369,900Active3 beds 2 baths1,825 sq. ft.468 Tiger Avenue, Covington, LA 70433
MLS# 2558395Listed by: KELLER WILLIAMS REALTY SERVICES - New
$130,000Active1 beds 1 baths816 sq. ft.350 Emerald Forest Boulevard #22110, Covington, LA 70433
MLS# 2557365Listed by: DEMPSEY ROGERS, INC. - New
$525,000Active4 beds 3 baths2,912 sq. ft.108 Southdown Lane, Covington, LA 70433
MLS# 2552099Listed by: COMPASS PERKINS (CJBR01) - New
$130,000Active1 beds 1 baths688 sq. ft.350 Emerald Forest Boulevard #12205, Covington, LA 70433
MLS# 2558009Listed by: KELLER WILLIAMS REALTY SERVICES - New
$675,000Active4 beds 4 baths3,708 sq. ft.807 Tradition Drive, Covington, LA 70433
MLS# 2558155Listed by: KELLER WILLIAMS REALTY SERVICES - New
$465,000Active4 beds 3 baths2,584 sq. ft.2473 Dixie Drive, Covington, LA 70435
MLS# 2558145Listed by: EXP REALTY, LLC