923 Spain Street, New Orleans, LA 70117
Local realty services provided by:ERA TOP AGENT REALTY
923 Spain Street,New Orleans, LA 70117
$425,000Last list price
- 3 Beds
- 2 Baths
- - sq. ft.
- Single family
- Sold
Listed by: lisa fury
Office: reve, realtors
MLS#:2531461
Source:LA_GSREIN
Sorry, we are unable to map this address
Price summary
- Price:$425,000
About this home
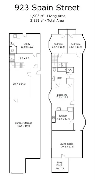
There is beauty in all things, and this Marigny Unicorn offers an exciting opportunity to live in one of New Orleans’ most vibrant neighborhoods at an affordable price—with a rare 20’ x 50’ Garage offering Parking for Several Cars, an extra deep 155 foot lot, and 2,000+ sqft of 1st floor BONUS area.
<br>
Built in 1952 and well-loved, its previous owner updated the electrical panel, added PEX plumbing, and solar panels between 2020-2022. In addition to solid construction and reduced utility costs, there are beautifully coved ceilings, exposed wood trim and baseboards, and the original wood floors beneath the carpeting.
<br>
The upstairs side-hall layout is quite spacious and features an enclosed front porch, 3 generously sized bedrooms, an oversized living/dining room, and lots of windows to brighten your day. The garage and 2 bonus rooms are located downstairs, along with the utility room leading to a covered patio and a lush backyard.
<br>
Whether you move right in, color-drench the entire space, reimagine the floor plan, use the garage for parking, storage, or costume making, or create a wonderful live/work/guest space, the possibilities are endless! All in an unbeatable location, walkable to the French Quarter, and all of Marigny's favorite haunts. Come see this rare gem and fall in love today.
<br>
Contact an agent
Home facts
- Year built:1952
- Listing ID #:2531461
- Added:82 day(s) ago
- Updated:March 02, 2026 at 07:29 AM
Rooms and interior
- Bedrooms:3
- Total bathrooms:2
- Full bathrooms:1
- Half bathrooms:1
- Rooms Total:12
- Kitchen Description:Range, Refrigerator
Heating and cooling
- Cooling:Central Air
- Heating:Central, Heating
Structure and exterior
- Roof:Shingle
- Year built:1952
- Lot Features:City Lot, Oversized Lot
- Architectural Style:Craftsman
- Construction Materials:Stucco, Wood Siding
- Exterior Features:Courtyard, Covered, Porch
- Foundation Description:Raised
- Levels:2 Story
Utilities
- Water:Public
- Sewer:Public Sewer
Finances and disclosures
- Price:$425,000
Features and amenities
- Appliances:Range, Refrigerator
- Laundry features:Washer Hookup
New listings near 923 Spain Street
- New
$1,170,000Active5 beds 4 baths4,432 sq. ft.2100 Jefferson Avenue, New Orleans, LA 70115
MLS# 2539025Listed by: BERKSHIRE HATHAWAY HOMESERVICES PREFERRED, REALTOR - Open Tue, 11:30am to 1:30pmNew
$385,000Active4 beds 3 baths2,516 sq. ft.4450 Lennox Boulevard, New Orleans, LA 70131
MLS# 2545183Listed by: COMPASS WESTBANK (LATT10) - Open Wed, 11:30am to 1:30pmNew
$724,900Active5 beds 4 baths3,388 sq. ft.1735 Delachaise Street, New Orleans, LA 70115
MLS# 2545288Listed by: COMPASS UPTOWN (LATT07) - New
$450,000Active6 beds 6 baths2,208 sq. ft.1444 Japonica Street, New Orleans, LA 70117
MLS# 2545266Listed by: REVE, REALTORS
$238,000Active1 beds 1 baths442 sq. ft.727 Barracks Street #5, New Orleans, LA 70116
MLS# 2516626Listed by: KELLER WILLIAMS REALTY 455-0100- New
$875,000Active5 beds 4 baths3,172 sq. ft.7904 Sycamore Street, New Orleans, LA 70118
MLS# 2545217Listed by: MCENERY RESIDENTIAL, LLC - New
$128,000Active3 beds 2 baths2,095 sq. ft.7524 Daniel Drive, New Orleans, LA 70127
MLS# 2545236Listed by: COMPASS HISTORIC (LATT09) - New
$450,000Active4 beds 2 baths2,200 sq. ft.321 32 Harney Street, New Orleans, LA 70124
MLS# 2545259Listed by: ETHEL KIDD REAL ESTATE, L.L.C. - New
$339,000Active4 beds 2 baths2,159 sq. ft.129-31 N Genois Street, New Orleans, LA 70119
MLS# 2544110Listed by: FRERET REALTY - New
$278,000Active4 beds 2 baths2,008 sq. ft.5885 Macarthur Boulevard, New Orleans, LA 70131
MLS# 2545172Listed by: KELLER WILLIAMS REALTY 455-0100