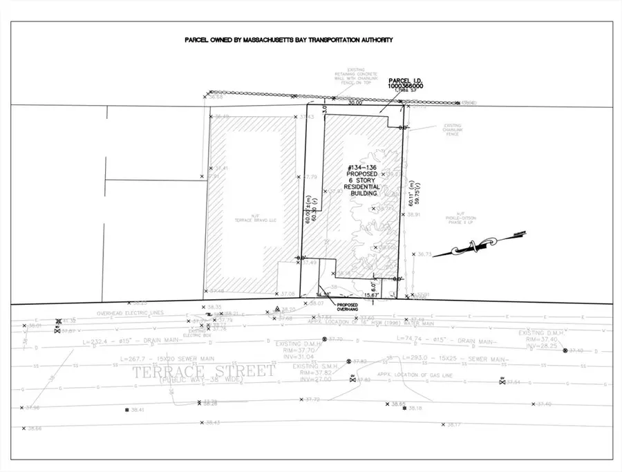
134 Terrace Street, Boston, MA 02120

Local realty services provided by:Cohn & Company ERA Powered
134 Terrace Street,Boston, MA 02120
$549,000
  • 0.04 Acres
  • Lots / Land
  • Active
Listed by: the team - real estate advisors, travers peterson
Office: coldwell banker realty - cambridge
MLS#:73470939
Source:MLSPIN

Price summary

  • Price:$549,000

About this home

ZBA approved lot for six story construction building with five market rate residential units. Located a short distance to Roxbury Crossing Orange line, Brigham Circle Green line, and Northeastern University. As well as being a short distance to Brigham and Women's Hospital, Childrens's Hospital and downtown Boston. Excellent design and build opportunity.

Contact an agent

contact an agent

Yes, I would like more information. Please use and/or share my information with an ERA®  affiliated agent to contact me about my real estate needs. By clicking Send message, I request to be contacted by phone or text message and consent to being contacted by automated means. I understand that my consent to receive calls or texts is not a condition of purchasing any property, goods, or services. Alternatively, I understand that I can access real estate services by email or I can contact the agent myself.

If an ERA®  affiliated agent is not available in the area where I need assistance, I agree to be contacted by a real estate agent affiliated with another brand owned or licensed by Anywhere Real Estate (BHGRE® , CENTURY 21® , Coldwell Banker® , Corcoran® , Sotheby's International Realty® ).
 I acknowledge that I have read and agree to theTerms of useandPrivacy notice

Home facts

  • Listing ID #:73470939
  • Updated:April 26, 2026 at 10:28 AM

Structure and exterior

  • Lot area:0.04 Acres
  • Lot Features:Level, Sidewalks

Utilities

  • Water:At Street, Public
  • Sewer:At Street, Public Sewer

Finances and disclosures

  • Price:$549,000
  • Tax amount:$875 (2025)
The property listing data and information, or the Images, set forth herein were provided to MLS Property Information Network, Inc. from third party sources, including sellers, lessors and public records, and were compiled by MLS Property Information Network, Inc. The property listing data and information, and the Images, are for the personal, non-commercial use of consumers having a good faith interest in purchasing or leasing listed properties of the type displayed to them and may not be used for any purpose other than to identify prospective properties which such consumers may have a good faith interest in purchasing or leasing. MLS Property Information Network, Inc. and its subscribers disclaim any and all representations and warranties as to the accuracy of the property listing data and information, or as to the accuracy of any of the Images, set forth herein.