42 Commonwelath Ave, Salisbury, MA 01952

Local realty services provided by:ERA Cape Real Estate
42 Commonwelath Ave,Salisbury, MA 01952
$849,900
  • 0.07 Acres
  • Lots / Land
  • Active
Listed by: thomas j saab, brittany saab
Office: tom saab real estate
MLS#:73464225
Source:MLSPIN

Price summary

  • Price:$849,900

About this home

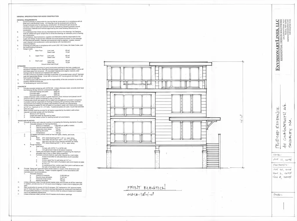
We present to you an opportunity of a lifetime at Salisbury Beach Near the Seabrook Beach line. Commonwealth Ave is the most desirable and number one requested location at Salisbury Beach. You will be enjoying all the benefits of the most northern part of Salisbury Beach while connecting directly to the southern part of Seabrook Beach. Seabrook, NH tax rate is $15.09 per thousand while the Salisbury tax rate is only $10.08. You certainly can understand the difference and the benefits of owning in Salisbury Beach. This offer includes a buildable lot directly across from the oceanfront and only steps to Beach Access #12, providing easy and direct access to the beachfront. In addition, included is the entire set of building plans that HAS BEEN approved by the Town of Salisbury Zoning Board, Conservation Commission, as well as MassDEP.

Contact an agent

contact an agent

Yes, I would like more information. Please use and/or share my information with an ERA®  affiliated agent to contact me about my real estate needs. By clicking Send message, I request to be contacted by phone or text message and consent to being contacted by automated means. I understand that my consent to receive calls or texts is not a condition of purchasing any property, goods, or services. Alternatively, I understand that I can access real estate services by email or I can contact the agent myself.

If an ERA®  affiliated agent is not available in the area where I need assistance, I agree to be contacted by a real estate agent affiliated with another brand owned or licensed by Anywhere Real Estate (BHGRE® , CENTURY 21® , Coldwell Banker® , Corcoran® , Sotheby's International Realty® ).
 I acknowledge that I have read and agree to theTerms of useandPrivacy notice

Home facts

  • Listing ID #:73464225
  • Updated:April 02, 2026 at 10:28 AM

Structure and exterior

  • Lot area:0.07 Acres
  • Lot Features:Sloped

Utilities

  • Water:Public
  • Sewer:Public Sewer

Finances and disclosures

  • Price:$849,900
  • Tax amount:$6,341 (2024)
The property listing data and information, or the Images, set forth herein were provided to MLS Property Information Network, Inc. from third party sources, including sellers, lessors and public records, and were compiled by MLS Property Information Network, Inc. The property listing data and information, and the Images, are for the personal, non-commercial use of consumers having a good faith interest in purchasing or leasing listed properties of the type displayed to them and may not be used for any purpose other than to identify prospective properties which such consumers may have a good faith interest in purchasing or leasing. MLS Property Information Network, Inc. and its subscribers disclaim any and all representations and warranties as to the accuracy of the property listing data and information, or as to the accuracy of any of the Images, set forth herein.