360 Center Street, South Dennis, MA 02660
Local realty services provided by:ERA Cape Real Estate
360 Center Street,South Dennis, MA 02660
$649,000
- 2 Beds
- 2 Baths
- 1,199 sq. ft.
- Single family
- Active
Upcoming open houses
- Sat, Nov 0101:00 pm - 03:00 pm
Listed by:lynn d van norman508-237-9380
Office:gibson sotheby's international realty
MLS#:22505360
Source:CAPECOD
Price summary
- Price:$649,000
- Price per sq. ft.:$541.28
About this home
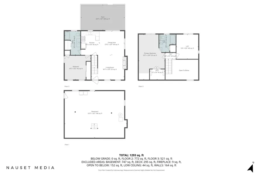
Live the Cape Cod lifestyle year-round in this 2-bedroom, 2-bath home built in 1993 by Reef Builders. Perfect for entertaining, it features a large deck, refreshed landscaping with a new lawn and blue stone driveway, and a spacious yard ideal for summer BBQs, alfresco dining, and outdoor games. The surrounding landscape of native huckleberry, pine, and oak, interspersed with native grasses, creates a bird lover's paradise--bringing color, song, and life right to your doorstep. Designed with a 3-bedroom septic and potential to expand--including space for a garage--plus a very dry walk-out basement, this home offers flexibility for the future. The first-floor bedroom and two updated bathrooms complement a move-in ready interior, while every room, including the loft with extra sleeping space, has a mini-split for year-round comfort. Recent updates include a new roof, Trex deck, porcelain tile flooring, and hot water heater. Tucked away yet just minutes from Cape Cod Sound beaches, Swan Pond, the bike path, shops, and dining, this home blends coastal charm with thoughtful craftsmanship--a retreat for balance, comfort, connection to nature, and memorable gatherings with family and friends.
Contact an agent
Home facts
- Year built:1993
- Listing ID #:22505360
- Added:3 day(s) ago
- Updated:October 28, 2025 at 02:25 PM
Rooms and interior
- Bedrooms:2
- Total bathrooms:2
- Full bathrooms:2
- Living area:1,199 sq. ft.
Heating and cooling
- Heating:Hot Water
Structure and exterior
- Roof:Asphalt
- Year built:1993
- Building area:1,199 sq. ft.
- Lot area:0.63 Acres
Schools
- Middle school:Dennis-Yarmouth
- Elementary school:Dennis-Yarmouth
Utilities
- Sewer:Septic Tank
Finances and disclosures
- Price:$649,000
- Price per sq. ft.:$541.28
- Tax amount:$2,239 (2025)
New listings near 360 Center Street
- Open Sun, 11am to 2pmNew
$1,495,000Active4 beds 5 baths2,660 sq. ft.3 Pinefield Lane, South Dennis, MA 02660
MLS# 22505313Listed by: REALTY EXECUTIVES CAPE COD - New
$595,000Active3 beds 1 baths1,128 sq. ft.16 Uncle Stanleys Way, Dennis, MA 02660
MLS# 73448311Listed by: Today Real Estate, Inc. - New
$459,000Active3 beds 1 baths788 sq. ft.62 Old Fish House Road, South Dennis, MA 02660
MLS# 22505375Listed by: KINLIN GROVER COMPASS - New
$489,999Active3 beds 1 baths1,134 sq. ft.11 Uncle Stanleys Way, Dennis, MA 02660
MLS# 73447850Listed by: Gibson Sotheby's International Realty
$1,500,000Pending3 beds 3 baths2,784 sq. ft.61 Barque Circle, South Dennis, MA 02660
MLS# 22505264Listed by: GIBSON SOTHEBY'S INTERNATIONAL REALTY
$674,900Active2 beds 2 baths1,200 sq. ft.10 Joanne, Dennis, MA 02660
MLS# 73442375Listed by: Kinlin Grover Compass
Listed by ERA$249,000Active1 beds 1 baths760 sq. ft.432 Old Chatham Road #103, Dennis, MA 02660
MLS# 73441752Listed by: ERA Cape Real Estate, LLC
Listed by ERA$249,000Active1 beds 1 baths760 sq. ft.432 Old Chatham Road, South Dennis, MA 02660
MLS# 22505077Listed by: ERA CAPE REAL ESTATE, LLC
$595,000Active3 beds 1 baths1,128 sq. ft.16 Uncle Stanleys Way, South Dennis, MA 02660
MLS# 22505072Listed by: TODAY REAL ESTATE