Cherry Lane #Lot 1, York, ME 03909
Local realty services provided by:ERA Key Realty Services
Cherry Lane #Lot 1,York, ME 03909
$1,305,000
- 3 Beds
- 3 Baths
- 2,850 sq. ft.
- Single family
- Active
Listed by: grant parham, susan green
Office: green & company603-964-7572
MLS#:5084013
Source:PrimeMLS
Price summary
- Price:$1,305,000
- Price per sq. ft.:$326.82
- Monthly HOA dues:$278
About this home
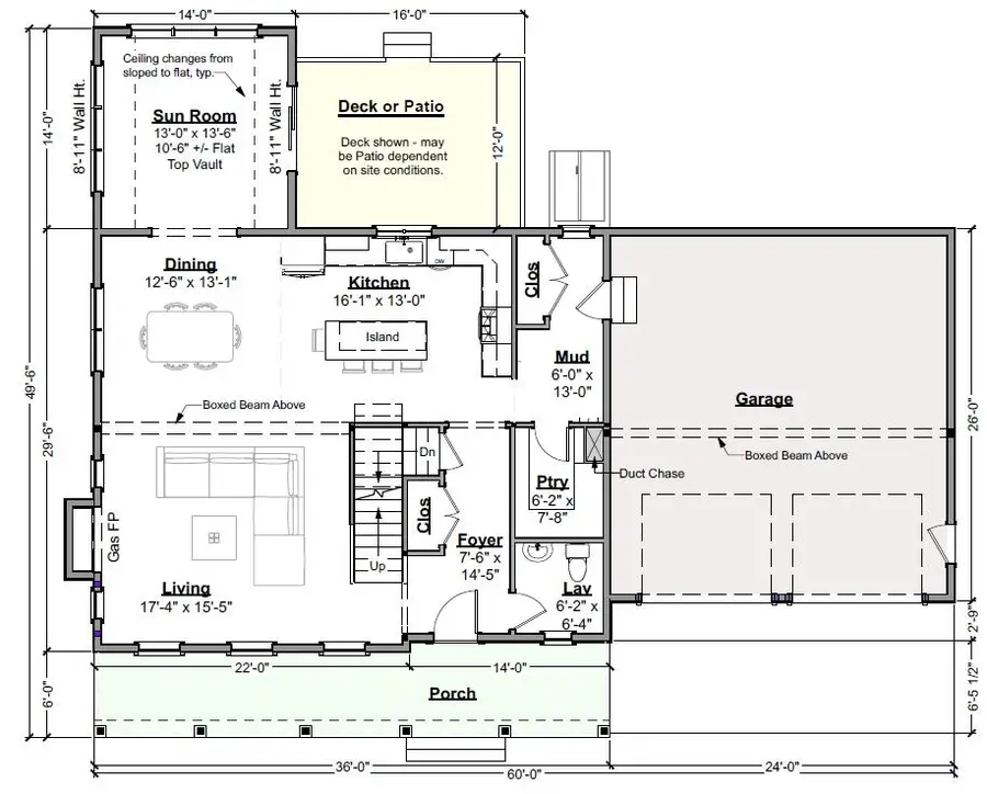
NEW CONSTRUCTION: Introducing Harbor Woods, York's newest community of seven homes now beginning construction. Nestled amongst conservation land, and minutes to York Harbor and Kittery Point, Harbor Woods is the perfect location to enjoy all that Coastal Maine living has to offer. This Country Farmhouse home style has a lovely front farmers porch, the ideal place to enjoy morning coffee. The living layout is spacious and open flow. This home includes a beautiful sunny four season room! The owner's entry off the two car garage has a convenient mud area with coat storage space. The wrap around kitchen offers a generous island seating area, stone countertops and large walk in pantry with plenty of storage. Upstairs are four generously sized bedrooms/office, most with walk in closets and a conveniently located laundry room with space for cabinetry/folding area. The primary hallway leads to a spacious primary bedroom suite, with walk in closet, tile shower, powder closet, and double vanity. Full basement offers expansion potential or great storage space. High-end finishes include tile shower, hardwood flooring, custom kitchen with stone countertops, high ceilings, beautiful trim work, and much more! Choose your homesite and customize this home at Harbor Woods!...
Contact an agent
Home facts
- Year built:2026
- Listing ID #:5084013
- Added:11 day(s) ago
- Updated:April 28, 2026 at 10:33 AM
Rooms and interior
- Bedrooms:3
- Total bathrooms:3
- Full bathrooms:1
- Rooms Total:10
- Flooring:Carpet, Hardwood, Tile
- Kitchen Description:Dishwasher, Microwave, Refrigerator
- Basement Description:Concrete, Concrete Floor, Exterior Access, Full, Interior, Interior Access, Storage Space, Unfinished
- Living area:2,850 sq. ft.
Heating and cooling
- Cooling:Central AC, Multi-zone
- Heating:Forced Air, Multi Zone
Structure and exterior
- Year built:2026
- Building area:2,850 sq. ft.
- Levels:2 Story
Utilities
- Sewer:Private, Septic
Finances and disclosures
- Price:$1,305,000
- Price per sq. ft.:$326.82
Features and amenities
- Appliances:Refrigerator
- Amenities:Underground
Parking
- Parking description:Paved Driveway
- Garage spaces:2
New listings near Cherry Lane #Lot 1
- New
$1,850,000Active3 beds 4 baths3,882 sq. ft.8 Old Seabury Road, York, ME 03909
MLS# 1659343Listed by: GREAT ISLAND REALTY, LLC - New
$1,495,000Active-- beds 5 baths3,001 sq. ft.88 York Street, York, ME 03909
MLS# 1659180Listed by: ANNE ERWIN SOTHEBY'S INTERNATIONAL REALTY - New
$5,725,000Active4 beds 6 baths6,753 sq. ft.1 Cove Road, York, ME 03902
MLS# 1659121Listed by: ANNE ERWIN SOTHEBY'S INTERNATIONAL REALTY - New
$85,000Active1 beds 2 baths744 sq. ft.1 Ocean Avenue #410/412 2, York, ME 03909
MLS# 5084953Listed by: PARMLEY PROPERTIES REALTY LLC - New
$825,000Active4 beds 3 baths1,971 sq. ft.2 Prosper Way, York, ME 03902
MLS# 1658786Listed by: LEGACY PROPERTIES SOTHEBY'S INTERNATIONAL REALTY
$89,000Pending1 beds 2 baths820 sq. ft.1 Ocean Avenue #406 408 1, York, ME 03909
MLS# 5084721Listed by: PARMLEY PROPERTIES REALTY LLC- New
$1,195,000Active3 beds 3 baths2,181 sq. ft.49 Highland Avenue, York, ME 03909
MLS# 1658657Listed by: ANNE ERWIN SOTHEBY'S INTERNATIONAL REALTY - New
$824,900Active3 beds 4 baths2,462 sq. ft.239 Cider Hill Road, York, ME 03909
MLS# 1658635Listed by: ABIGAIL DOURIS REAL ESTATELLC - New
$875,000Active2 beds 3 baths3,035 sq. ft.5 Village Park Drive #22, York, ME 03909
MLS# 1658562Listed by: ANCHOR REAL ESTATE - New
$725,000Active3 beds 2 baths1,872 sq. ft.16 Passaic Road, York, ME 03902
MLS# 1658517Listed by: REMAX ANDREW REALTY SERVICES