965 W Maumee Street, Adrian, MI 49221
Local realty services provided by:ERA Reardon Realty
965 W Maumee Street,Adrian, MI 49221
$259,900
- 2 Beds
- 2 Baths
- 1,100 sq. ft.
- Condominium
- Active
Listed by: kay buenaflor prong
Office: howard hanna real estate services-tecumseh
MLS#:50201697
Source:MI_LCAR
Price summary
- Price:$259,900
- Price per sq. ft.:$236.27
- Monthly HOA dues:$120
About this home
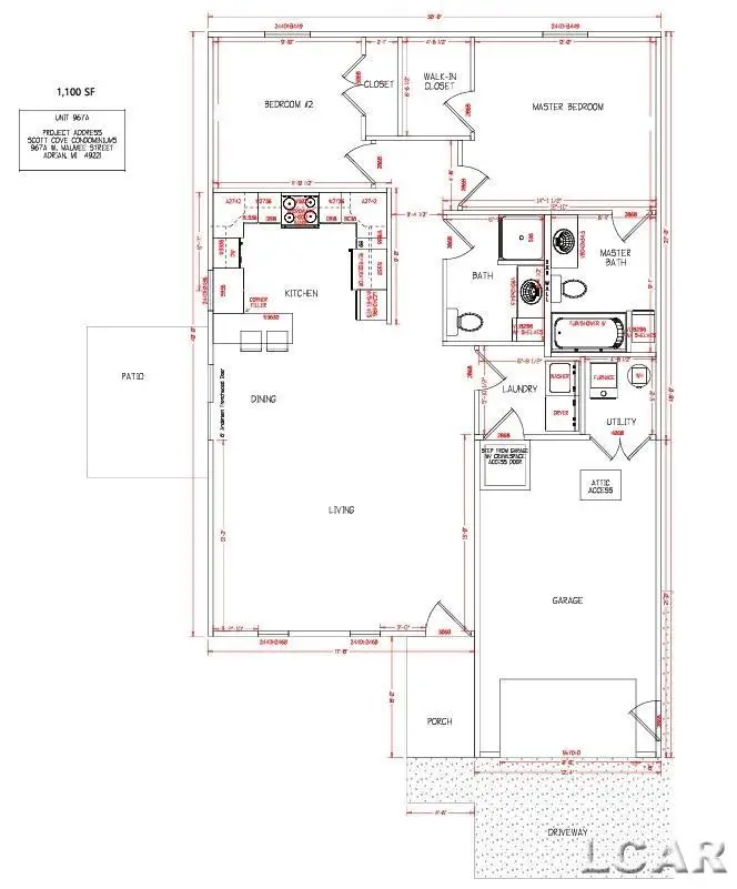
Scott Cove Condominiums! One of 5 condos in Sought-After Scott Cove! New Build Stand-Alone Condos with Summer 2026 Move-in! Skillfully Constructed by Ruttkofsky Builders with construction underway and still time to choose your colors, style and finishes to make this your custom new home. Whether you’re downsizing, rightsizing, buying your first home, or seeking a low-maintenance lifestyle, this stand-alone condo offers modern living at its finest! Exclusive Scott Cove community with West Side Adrian location close to shopping, dining, restaurants, and parks. Relax and let the well-organized and low-fee association manage the mowing, plowing, building and exterior maintenance. Beautifully Crafted with KraftMaid cabinets, quartz counters, wood flooring, and energy efficient materials and mechanicals. Just the right fit with 2 bedrooms, 2 bathrooms, spacious primary bedroom/bath, open living area, kitchen with peninsula, and attached garage! Contact us today to proficiently Design and Plan for your New Home!...
Contact an agent
Home facts
- Year built:2026
- Listing ID #:50201697
- Added:46 day(s) ago
- Updated:April 16, 2026 at 03:13 PM
Rooms and interior
- Bedrooms:2
- Total bathrooms:2
- Full bathrooms:2
- Rooms Total:8
- Dining Description:On Main Level
- Kitchen Description:On Main Level
- Bedroom Description:First Floor Bedroom
- Living area:1,100 sq. ft.
Heating and cooling
- Cooling:Ceiling Fan(s), Central A/C
- Heating:Forced Air, Natural Gas
Structure and exterior
- Year built:2026
- Building area:1,100 sq. ft.
- Architectural Style:Ranch
- Construction Materials:Stone, Vinyl Siding
- Exterior Features:Patio
- Foundation Description:Crawl
- Levels:1 Story
Utilities
- Water:Public Water, Water Heater - Gas
- Sewer:Public Sanitary
Finances and disclosures
- Price:$259,900
- Price per sq. ft.:$236.27
- Tax amount:$150
Features and amenities
- Laundry features:First Floor Laundry, On Main Level, Utility/Laundry Room
- Amenities:Cable/Internet Avail., Walk-In Closet
Parking
- Parking description:1 Space, Attached Garage, Gar Door Opener, Garage
- Garage spaces:1
New listings near 965 W Maumee Street
- New
$230,000Active2 beds 2 baths1,243 sq. ft.104 Lakewood Drive, Adrian, MI 49221
MLS# 50206169Listed by: GOEDERT REAL ESTATE - ADR - New
$215,000Active3 beds 2 baths1,080 sq. ft.331 Anthony Court, Adrian, MI 49221
MLS# 50206066Listed by: THE WAGLEY GROUP - New
$649,900Active3 beds 4 baths3,141 sq. ft.3754 Timberhill Drive, Adrian, MI 49221
MLS# 50206056Listed by: FOUNDATION REALTY, LLC - MANITOU BEACH - New
$164,900Active4 beds 3 baths1,131 sq. ft.565 Riverside Avenue, Adrian, MI 49221
MLS# 26019048Listed by: XSELL REALTY - Open Sun, 3 to 5pmNew
$569,900Active4 beds 4 baths3,434 sq. ft.4563 Kelsey Avenue, Adrian, MI 49221
MLS# 50205953Listed by: FOUNDATION REALTY, LLC-TECUMSEH - Open Sun, 1 to 3pmNew
$199,900Active3 beds 2 baths1,296 sq. ft.534 E Siena Heights Drive, Adrian, MI 49221
MLS# 26018914Listed by: XSELL REALTY - New
$299,000Active3 beds 2 baths1,399 sq. ft.3216 Aspen Trail, Adrian, MI 49221
MLS# 26018972Listed by: XSELL REALTY - New
$34,900Active2.28 Acres0 Black Highway, Adrian, MI 49221
MLS# 50205686Listed by: GOEDERT REAL ESTATE - ADR - New
$44,000Active2 beds 1 baths1,040 sq. ft.953 Savannah River Drive, Adrian, MI 49221
MLS# 26018432Listed by: CORNERSTONE REAL ESTATE - New
$274,900Active3 beds 3 baths2,106 sq. ft.1795 Howell Highway, Adrian, MI 49221
MLS# 50205584Listed by: HOWARD HANNA REAL ESTATE SERVICES-ADRIAN