967 W Maumee Street, Adrian, MI 49221
Local realty services provided by:ERA Reardon Realty
967 W Maumee Street,Adrian, MI 49221
$259,900
- 2 Beds
- 2 Baths
- 1,100 sq. ft.
- Condominium
- Active
Listed by: kay buenaflor prong
Office: howard hanna real estate services-tecumseh
MLS#:50200674
Source:MI_LCAR
Price summary
- Price:$259,900
- Price per sq. ft.:$236.27
- Monthly HOA dues:$120
About this home
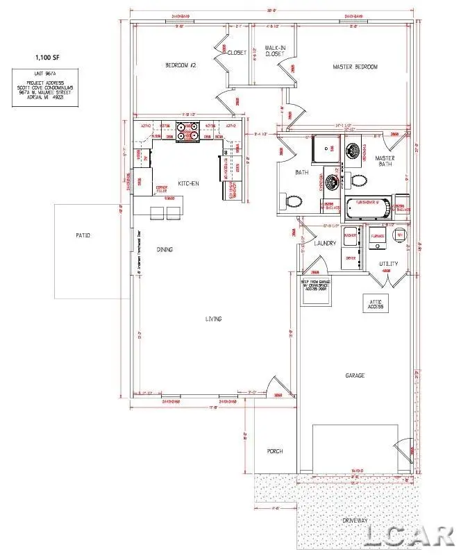
Scott Cove Condominiums! New Build Stand-Alone Condos with Summer 2026 Move-in! Skillfully Constructed by Ruttkofsky Builders with construction underway and still time to choose your colors, style and finishes to make this your custom new home. Whether you’re downsizing, rightsizing, buying your first home, or seeking a low-maintenance lifestyle, this stand-alone condo offers modern living at its finest! Sought-after exclusive Scott Cove community with West Side Adrian location close to shopping, dining, restaurants, and parks. Relax and let the well-organized and low-fee association manage the mowing, plowing, building and exterior maintenance. Beautifully Crafted with KraftMaid cabinets, quartz counters, wood flooring, and energy efficient materials and mechanicals. Just the right fit with 2 bedrooms, 2 bathrooms, spacious primary bedroom/bath, open living area, kitchen with peninsula, and attached garage! Contact us today to proficiently Design and Plan for your New Home!
Contact an agent
Home facts
- Year built:2026
- Listing ID #:50200674
- Added:55 day(s) ago
- Updated:April 16, 2026 at 03:13 PM
Rooms and interior
- Bedrooms:2
- Total bathrooms:2
- Full bathrooms:2
- Rooms Total:8
- Dining Description:On Main Level
- Kitchen Description:On Main Level
- Bedroom Description:First Floor Bedroom
- Living area:1,100 sq. ft.
Heating and cooling
- Cooling:Ceiling Fan(s), Central A/C
- Heating:Forced Air, Natural Gas
Structure and exterior
- Year built:2026
- Building area:1,100 sq. ft.
- Architectural Style:Ranch
- Construction Materials:Stone, Vinyl Siding
- Exterior Features:Patio
- Foundation Description:Crawl
- Levels:1 Story
Utilities
- Water:Public Water, Water Heater - Gas
- Sewer:Public Sanitary
Finances and disclosures
- Price:$259,900
- Price per sq. ft.:$236.27
- Tax amount:$150
Features and amenities
- Laundry features:First Floor Laundry, On Main Level, Utility/Laundry Room
- Amenities:Cable/Internet Avail., Walk-In Closet
Parking
- Parking description:1 Space, Attached Garage, Gar Door Opener, Garage
- Garage spaces:1
New listings near 967 W Maumee Street
- New
$219,900Active4 beds 2 baths1,824 sq. ft.715 Alexander Drive, Adrian, MI 49221
MLS# 50205515Listed by: GOEDERT REAL ESTATE - ADR - New
$339,000Active3 beds 4 baths2,390 sq. ft.830 Richlyn Drive, Adrian, MI 49221
MLS# 50205482Listed by: THE WAGLEY GROUP - New
$220,000Active2 beds 1 baths1,412 sq. ft.418 S Scott Street, Adrian, MI 49221
MLS# 26018113Listed by: CORNERSTONE REAL ESTATE - Open Sun, 1 to 3pmNew
$155,000Active3 beds 1 baths1,117 sq. ft.422 May Drive, Adrian, MI 49221
MLS# 50205444Listed by: FOUNDATION REALTY, LLC - New
$310,000Active4 beds 2 baths1,964 sq. ft.5910 Lyons Highway, Adrian, MI 49221
MLS# 26017994Listed by: XSELL REALTY - New
$1,200Active6 beds 1 baths2,022 sq. ft.3748 Black Highway, Adrian, MI 49221
MLS# 50205344Listed by: GOEDERT REAL ESTATE - ADR - New
$515,000Active49 Acres2000 W Bailey Highway #2000 Gorman Rd, Adrian, MI 49221
MLS# 50205327Listed by: FOUNDATION REALTY, LLC - New
$950Active2 beds 1 baths650 sq. ft.553 Northwestern Drive, Adrian, MI 49221
MLS# 50205286Listed by: FOUNDATION REALTY, LLC - New
$179,000Active3 beds 2 baths1,482 sq. ft.418 Ormsby Street, Adrian, MI 49221
MLS# 26017632Listed by: XSELL REALTY - New
$92,000Active3 beds 2 baths1,568 sq. ft.448 Raisin River Drive, Adrian, MI 49221
MLS# 26017111Listed by: CORNERSTONE REAL ESTATE