6262 S Bear Den Trail, Muskegon, MI 49444
Local realty services provided by:ERA Reardon Realty Great Lakes
6262 S Bear Den Trail,Muskegon, MI 49444
$325,575
- 2 Beds
- 2 Baths
- 1,147 sq. ft.
- Single family
- Pending
Listed by: thomas a serio
Office: real estate west
MLS#:25053897
Source:MI_MICHRIC
Price summary
- Price:$325,575
- Price per sq. ft.:$283.85
- Monthly HOA dues:$41.67
About this home
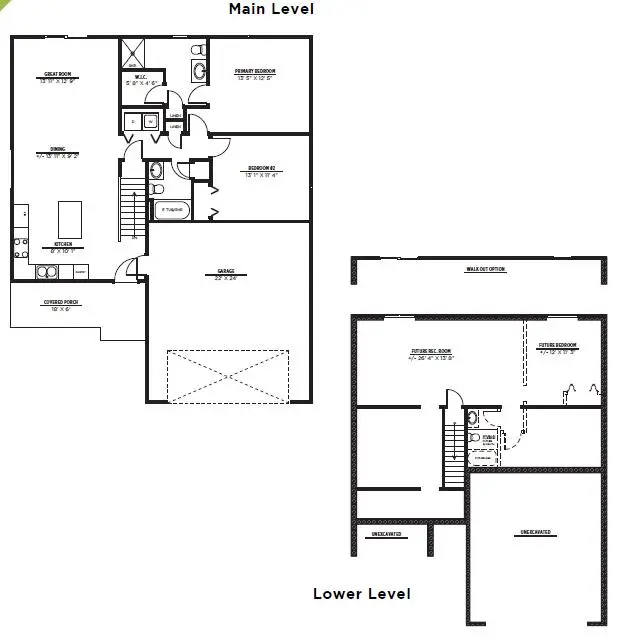
CUSTOM BUILD! This 'Aspen' ranch home plan is situated on lot #250 with a daylight basement. The Aspen offers 2 large bedrooms and 2 full bathrooms. This plan offers a modern twist to a traditional floorplan. The open concept great room offers access to the covered front porch. L-Shaped kitchen hosts lots of cabinetry, an island and separate dining area. The living room has a slider to the deck. Master suite complete with a walk in closet and full bathroom. The full basement is plumbed for a full bath and could be finished for future living space. Upgrades include 9' ceilings, 42'' upper cabinets, a tiled kitchen backsplash, and LG stainless steel kitchen appliances. Odeno is a custom home development in Fruitport Schools. Winding roads, walking trails, and community ponds set this neighborhood apart. Private and serene, yet just minutes from highway access, shopping, and recreation. Welcome to Odeno- Place of Many Hearts. Some photos may be of previously completed homes. Builder to v erify finishes and final sale price prior to accepting an offer....
Contact an agent
Home facts
- Year built:2026
- Listing ID #:25053897
- Added:162 day(s) ago
- Updated:April 01, 2026 at 07:44 AM
Rooms and interior
- Bedrooms:2
- Total bathrooms:2
- Full bathrooms:2
- Rooms Total:8
- Kitchen Description:Dishwasher, Disposal, Microwave, Range, Refrigerator
- Basement:Yes
- Basement Description:Daylight
- Living area:1,147 sq. ft.
Heating and cooling
- Heating:Forced Air
- Central air:Yes
Structure and exterior
- Year built:2026
- Building area:1,147 sq. ft.
- Lot area:0.25 Acres
- Construction Materials:Vinyl Siding
Utilities
- Water:Public
Finances and disclosures
- Price:$325,575
- Price per sq. ft.:$283.85
Parking
- Garage:Yes
- Garage spaces:2
New listings near 6262 S Bear Den Trail
- Open Sat, 11:30am to 1pmNew
$210,000Active3 beds 1 baths1,020 sq. ft.3057 Glenrick Avenue, Muskegon, MI 49442
MLS# 26012718Listed by: FIVE STAR REAL ESTATE WHITEHALL - New
$319,900Active4 beds 2 baths2,214 sq. ft.1140 W Giles Road, Muskegon, MI 49445
MLS# 26012749Listed by: FIVE STAR REAL ESTATE - New
$179,900Active3 beds 2 baths1,296 sq. ft.1288 Aspacia Street, Muskegon, MI 49445
MLS# 26012662Listed by: COLDWELL BANKER WOODLAND SCHMIDT WHITEHALL - New
$154,900Active3 beds 2 baths1,176 sq. ft.1699 Sanford Street, Muskegon, MI 49441
MLS# 26012701Listed by: REALTORS 2 GO LLC - New
$139,900Active3 beds 1 baths980 sq. ft.1540 James Avenue, Muskegon, MI 49442
MLS# 26012610Listed by: FIVE STAR REAL ESTATE - New
$210,000Active3 beds 2 baths1,344 sq. ft.560 N Green Creek Road, Muskegon, MI 49445
MLS# 26012585Listed by: SHORELINE PROPERTIES OF WM LLC - New
$259,000Active3 beds 1 baths1,116 sq. ft.444 W Chadwick, Muskegon, MI 49445
MLS# 26012540Listed by: FIVE STAR REAL ESTATE - New
$429,900Active5 beds 4 baths3,432 sq. ft.3317 Danglwood Court, Muskegon, MI 49444
MLS# 26012564Listed by: CITY2SHORE GATEWAY GROUP - New
$324,900Active4 beds 3 baths1,558 sq. ft.2287 Torrent Street, Muskegon, MI 49441
MLS# 26012525Listed by: GREENRIDGE - NEXES
$419,730Pending2 beds 2 baths1,416 sq. ft.6338 Sturgeon Run, Muskegon, MI 49444
MLS# 26012482Listed by: REAL ESTATE WEST