9441 Fields Drive, Zeeland, MI 49464
Local realty services provided by:ERA Reardon Realty
Listed by: ron webb
Office: coldwell banker woodland schmidt
MLS#:26002511
Source:MI_GRAR
Price summary
- Price:$519,900
- Price per sq. ft.:$333.91
- Monthly HOA dues:$26.67
About this home
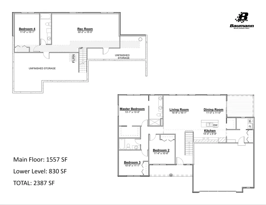
Baumann Building & Harvest Fields is offering this fabulous floor plan called the '' Bristol '' which offers 1557 sq.ft. of finished living space on the main floor which includes 3 bedrooms and 2 full baths. Master suite includes a master bath and walk-in closet. On the main floor you'll also find an open great room with cathedral ceilings, Kitchen w/ island, snack bar with quartz countertops & a large walk-in pantry, dining area with sliders to deck. Full appliance package, a main floor laundry plus a 2 1/2 stall garage for all your storage needs. You have an additional Bedroom, Bath & Family room finished in the walkout lower level to enjoy with lots of storage. Take a drive over and check Harvest Fields out and contact us today for this home or reserving your lot for your own custom home. We have 3 homes under construction currently and 4 lots left. Give me a call today to see what we have to offer. At Baumann Building we have built our reputation round our relationships with our clients. Our #1 priority is ensuring we know you well enough to create for you the perfect home.
Contact an agent
Home facts
- Year built:2026
- Listing ID #:26002511
- Added:6 day(s) ago
- Updated:January 28, 2026 at 05:19 PM
Rooms and interior
- Bedrooms:4
- Total bathrooms:3
- Full bathrooms:3
- Living area:2,387 sq. ft.
Heating and cooling
- Heating:Forced Air
Structure and exterior
- Year built:2026
- Building area:2,387 sq. ft.
- Lot area:0.24 Acres
Utilities
- Water:Public
Finances and disclosures
- Price:$519,900
- Price per sq. ft.:$333.91
- Tax amount:$110 (2025)
New listings near 9441 Fields Drive
- New
$559,900Active4 beds 4 baths2,493 sq. ft.9440 Fields Drive, Zeeland, MI 49464
MLS# 26003168Listed by: COLDWELL BANKER WOODLAND SCHMIDT - Open Sat, 10am to 12pmNew
$412,500Active3 beds 2 baths1,809 sq. ft.9538 Crescent Drive, Zeeland, MI 49464
MLS# 26003083Listed by: CITY2SHORE REAL ESTATE - New
$285,000Active3 beds 2 baths1,484 sq. ft.9794 Crystal Circle, Zeeland, MI 49464
MLS# 26003072Listed by: WEST EDGE REAL ESTATE LLC - New
$479,900Active4 beds 3 baths2,387 sq. ft.2425 Dayflower Boulevard #14, Zeeland, MI 49464
MLS# 26003043Listed by: KENSINGTON REALTY GROUP INC. - New
$425,000Active2 beds 2 baths1,753 sq. ft.6599 Bellflower Drive Sw #1, Zeeland, MI 49464
MLS# 26002900Listed by: KENSINGTON REALTY GROUP INC.
$325,000Pending3 beds 3 baths1,983 sq. ft.10962 Cranberry Court, Zeeland, MI 49464
MLS# 26002756Listed by: COLDWELL BANKER SCHMIDT REALTORS
$354,900Pending-- beds -- baths160 W Main Avenue, Zeeland, MI 49464
MLS# 26002533Listed by: HOMEREALTY HOLLAND
$219,900Pending3 beds 1 baths1,246 sq. ft.11190 Winter Drive, Zeeland, MI 49464
MLS# 26002427Listed by: HOMEREALTY HOLLAND
$349,900Pending3 beds 2 baths1,572 sq. ft.6503 Adams Street, Zeeland, MI 49464
MLS# 26002433Listed by: COLDWELL BANKER WOODLAND SCHMIDT