903 Misty Meadow Boulevard, Buffalo, MN 55313
Local realty services provided by:ERA Gillespie Real Estate
903 Misty Meadow Boulevard,Buffalo, MN 55313
$434,650
- 2 Beds
- 2 Baths
- 1,409 sq. ft.
- Single family
- Active
Listed by:daniel d boman
Office:counselor realty, inc
MLS#:6809570
Source:NSMLS
Price summary
- Price:$434,650
- Price per sq. ft.:$154.24
About this home
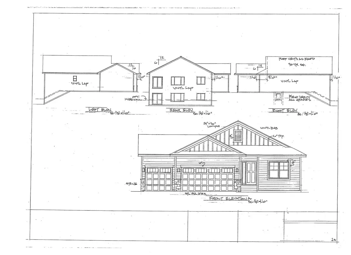
Note this is a To Be Built Home and nothing will be started until it is sold. Looking for an affordable rambler design, the Mirabel rambler by Drake Construction Inc offers 2 Bedrooms, 2 baths and 1409 square feet finished on the main level plus a full daylight window basement. Nice mudroom off the garage entrance with a sitting bench and adjoining laundry room. Open concept design on the kitchen/dining & great room with 9 foot flat ceilings. The kitchen offers a center island with a snack bar overhang, corner pantry closet, granite kitchen countertops, an LG stainless steel kitchen appliance package and easy care LVP flooring. The Great room has a large 3 wide window for more natural lighting. Beautiful wood/iron railing system. The primary bedroom is on the opposite side of the house from bedroom #2 for more privacy. The primary bathroom offers a double sink vanity, an enclosed water closet with a window, a linen closet and a 3x4 fiberglass shower bay plus a large walk in closet. The basement is set up for a future rec room, 2 more bedrooms and a 3/4 bath. Lots of house for the money!   
Contact an agent
Home facts
- Year built:2025
- Listing ID #:6809570
- Added:1 day(s) ago
- Updated:October 29, 2025 at 01:43 PM
Rooms and interior
- Bedrooms:2
- Total bathrooms:2
- Full bathrooms:1
- Living area:1,409 sq. ft.
Heating and cooling
- Cooling:Central Air
- Heating:Forced Air
Structure and exterior
- Roof:Age 8 Years or Less, Pitched
- Year built:2025
- Building area:1,409 sq. ft.
- Lot area:0.34 Acres
Utilities
- Water:City Water - Connected
- Sewer:City Sewer - Connected
Finances and disclosures
- Price:$434,650
- Price per sq. ft.:$154.24
- Tax amount:$576 (2025)
New listings near 903 Misty Meadow Boulevard
- Coming Soon $725,000Coming Soon4 beds 2 baths $725,000Coming Soon4 beds 2 baths1416 Pulaski Road, Buffalo, MN 55313MLS# 6810495Listed by: EXP REALTY
- Coming Soon $219,900Coming Soon2 beds 2 baths $219,900Coming Soon2 beds 2 baths1117 Ridgestone Place, Buffalo, MN 55313MLS# 6810149Listed by: KELLER WILLIAMS CLASSIC RLTY NW
- New $387,935Active3 beds 2 baths1,273 sq. ft. $387,935Active3 beds 2 baths1,273 sq. ft.822 Erickson Lane, Buffalo, MN 55313MLS# 6810373Listed by: LENNAR SALES CORP
- New $145,000Active1 beds 1 baths635 sq. ft. $145,000Active1 beds 1 baths635 sq. ft.110 1st Avenue Ne #402, Buffalo, MN 55313MLS# 6791704Listed by: COLDWELL BANKER REALTY
- Coming SoonOpen Sun, 10am to 12pm $225,000Coming Soon2 beds 2 baths $225,000Coming Soon2 beds 2 baths924 Golden Pond Court, Buffalo, MN 55313MLS# 6804818Listed by: NORTH STAR PRO REALTY LLC
- Coming Soon $389,900Coming Soon5 beds 2 baths $389,900Coming Soon5 beds 2 baths407 Buffalo Run Road, Buffalo, MN 55313MLS# 6807441Listed by: COLDWELL BANKER REALTY
- New $299,000Active4 beds 2 baths1,878 sq. ft. $299,000Active4 beds 2 baths1,878 sq. ft.707 2nd Avenue S, Buffalo, MN 55313MLS# 6799120Listed by: RELIANCE REALTY ADVISERS, LLC
- Open Sat, 10am to 12pmNew $349,900Active3 beds 2 baths1,808 sq. ft. $349,900Active3 beds 2 baths1,808 sq. ft.1614 Helen Street, Buffalo, MN 55313MLS# 6808237Listed by: NORTH STAR PRO REALTY LLC
- Open Sat, 11am to 1pmNew $355,000Active4 beds 2 baths1,903 sq. ft. $355,000Active4 beds 2 baths1,903 sq. ft.1400 4th Street Ne, Buffalo, MN 55313MLS# 6807978Listed by: PRO FLAT FEE REALTY LLC
