14167 Tern Boulevard, Biloxi, MS 39532
Local realty services provided by:ERA TOP AGENT REALTY
Listed by: alicia souza
Office: d r horton
MLS#:4142230
Source:MS_UNITED
Price summary
- Price:$299,900
- Price per sq. ft.:$178.94
- Monthly HOA dues:$65
About this home
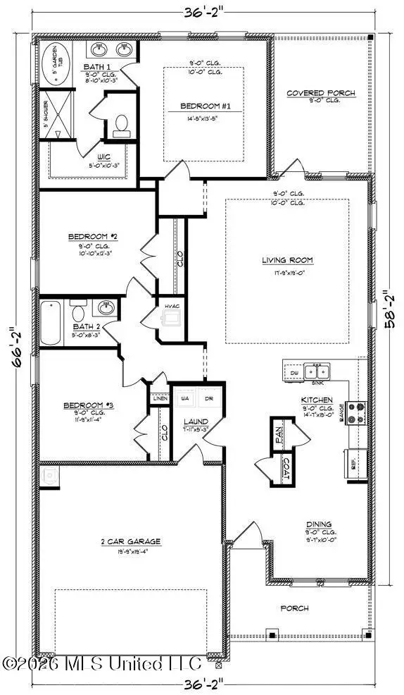
Welcome to 14167 Tern Boulevard at Mallard Creek in Biloxi, Mississippi. The Emily floorplan offers 3-bedrooms and 2-bathrooms in over 1,600 square feet of space. Entering the home from the front porch, you are greeted by a dining room that is perfect for those family meals. As you move inside, the kitchen has white shaker style cabinetry and stainless-steel appliances and opens right up to the living room area that offers access to a corner porch off the back of the home. The opposite side of the home offers two bedrooms that both share access to a full bathroom, as well as a laundry room that has access to the two-car garage. The primary bedroom sits to the back corner of the home with an ensuite. The ensuite has a dual sink vanity with granite countertop, tiled shower, separate garden tub, separate water closet and large walk-in closet. The Emily includes a Home is Connected smart home technology package which allows you to control your home with your smart device while near or away.Homes are built to FORTIFIED Gold HomeTM standards. Pictures may be of a similar home and not necessarily of the subject property. Pictures are representational only. Pictures, photographs, colors, features, and sizes are for illustration purposes only and will vary from the homes as built. Images are of model home and may include custom design features not available in other homes. Furnishings and decorative items are not included with home purchase. Some images may be virtually staged or have topography enhanced. Landscaping may be a decorator item not included in the purchase price and may not be available....
Contact an agent
Home facts
- Year built:2026
- Listing ID #:4142230
- Added:49 day(s) ago
- Updated:May 01, 2026 at 07:19 AM
Rooms and interior
- Bedrooms:3
- Total bathrooms:2
- Full bathrooms:2
- Flooring:Luxury Vinyl
- Bathrooms Description:Double Vanity, Soaking Tub
- Kitchen Description:Double Vanity, Kitchen Island, Soaking Tub
- Living area:1,676 sq. ft.
Heating and cooling
- Cooling:Ceiling Fan(s), Central Air, Electric
- Heating:Electric, Heat Pump
- Central air:Yes
Structure and exterior
- Year built:2026
- Building area:1,676 sq. ft.
- Lot area:0.18 Acres
- Lot Features:Front Yard, Rectangular Lot
- Construction Materials:Brick, HardiPlank Type
- Foundation Description:Slab
- Levels:1 Story
Schools
- High school:D'Iberville
- Middle school:North Woolmarket Middle School
- Elementary school:North Woolmarket
Utilities
- Water:Public
- Sewer:Public Sewer
Finances and disclosures
- Price:$299,900
- Price per sq. ft.:$178.94
- Tax amount:$300 (2025)
Features and amenities
- Laundry features:Electric Dryer Hookup, Washer Hookup
- Amenities:Ceiling Fan(s), Pantry, Recessed Lighting, Smart Home, Smart Thermostat, Tray Ceiling(s)
- Smart home:Yes
Parking
- Parking description:Concrete, Driveway, Garage Door Opener
- Garage:Yes
- Garage spaces:2
New listings near 14167 Tern Boulevard
- New
$272,500Active4 beds 2 baths1,801 sq. ft.6562 Eastland Circle, Biloxi, MS 39532
MLS# 4147903Listed by: HEART & HOME REALTY GROUP - New
$433,400Active4 beds 4 baths2,726 sq. ft.14251 Quill Avenue, Biloxi, MS 39532
MLS# 4147848Listed by: D R HORTON - New
$473,400Active5 beds 3 baths3,113 sq. ft.14245 Quill Avenue, Biloxi, MS 39532
MLS# 4147850Listed by: D R HORTON - New
$333,900Active4 beds 2 baths1,948 sq. ft.14162 Tern Boulevard, Biloxi, MS 39532
MLS# 4147852Listed by: D R HORTON - New
$325,000Active0.43 Acres1512 E Beach Boulevard, Biloxi, MS 39530
MLS# 4147789Listed by: SAWYER REAL ESTATE, INC. OF MS. - New
$311,000Active3 beds 2 baths1,710 sq. ft.9113 Natures Trail, Biloxi, MS 39532
MLS# 4147751Listed by: EXP REALTY - New
$164,900Active4 beds 1 baths1,250 sq. ft.329 Park Drive, Biloxi, MS 39531
MLS# 4147766Listed by: CENTURY 21 BUSCH REALTY GROUP - New
$105,000Active0.3 Acres408 Fowler Street, Biloxi, MS 39530
MLS# 4147742Listed by: CTA REALTY, LLC. - New
$43,000Active0.12 Acres410 Fowler Street, Biloxi, MS 39530
MLS# 4147743Listed by: CTA REALTY, LLC. - New
$499,000Active4 beds 3 baths2,284 sq. ft.10165 Daisy Vestry Road, Biloxi, MS 39532
MLS# 4147739Listed by: MOZINGO REAL ESTATE AND AUCTION, INC.