2556 Saint George Cove, Southaven, MS 38672
Local realty services provided by:ERA TOP AGENT REALTY
2556 Saint George Cove,Southaven, MS 38672
$379,900
- 3 Beds
- 2 Baths
- 1,919 sq. ft.
- Single family
- Pending
Listed by: lexie a hill, becky austin
Office: austin realty group, inc-her
MLS#:4133677
Source:MS_UNITED
Price summary
- Price:$379,900
- Price per sq. ft.:$197.97
- Monthly HOA dues:$33.33
About this home
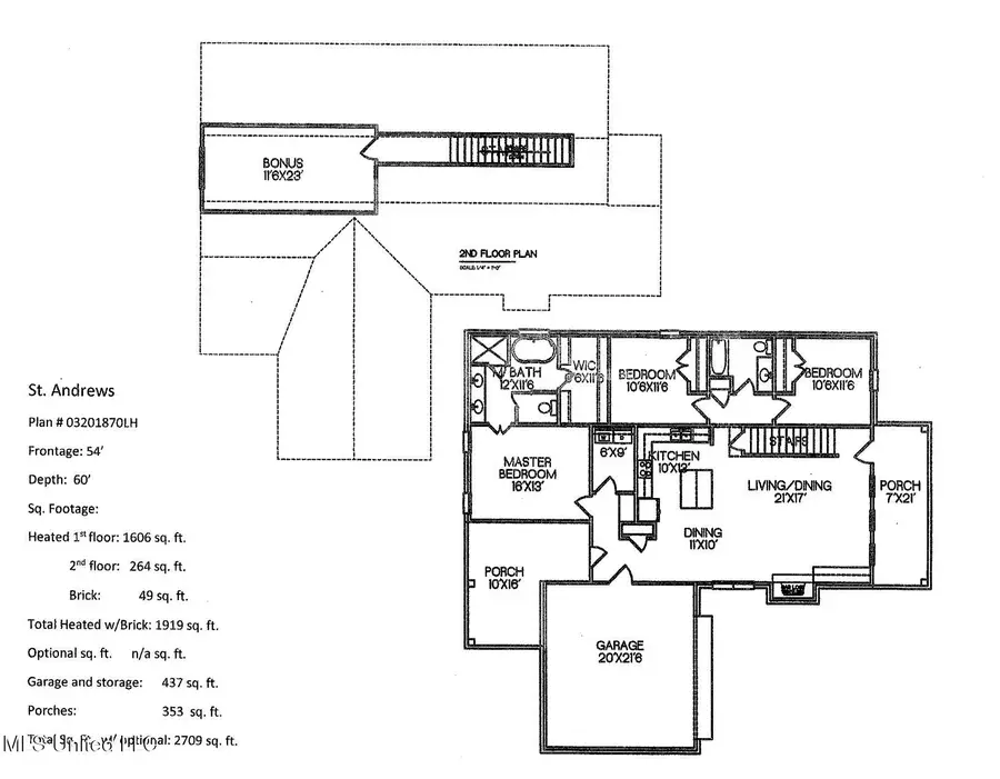
Silo Square's popular St. Andrews I plan will soon begin construction with a summer 2026 completion! You'll first be welcomed by a spacious & homey front porch and features 3 BR, 2 BA, & an upstairs bonus room. Plus, here, you'll enjoy a spacious master BA with a walk-in closet, relaxing soaker tub, and double vanity. The gas fireplace will make you feel right at home in the open concept living area and kitchen and the covered back porch is the perfect place to enjoy cool days or grilling out. Upstairs, you'll find a large bonus room with plenty of space for a home office, game room for the kids, or even a home gym.
Contact an agent
Home facts
- Year built:2026
- Listing ID #:4133677
- Added:113 day(s) ago
- Updated:April 04, 2026 at 07:13 AM
Rooms and interior
- Bedrooms:3
- Total bathrooms:2
- Full bathrooms:2
- Flooring:Carpet, Combination, Hardwood, Tile
- Bathrooms Description:Double Vanity, Soaking Tub
- Kitchen Description:Double Vanity, Kitchen Island, Soaking Tub
- Living area:1,919 sq. ft.
Heating and cooling
- Cooling:Ceiling Fan(s), Central Air, Electric
- Heating:Central, Natural Gas
- Central air:Yes
Structure and exterior
- Year built:2026
- Building area:1,919 sq. ft.
- Lot area:0.25 Acres
- Construction Materials:Brick, HardiPlank Type
- Exterior Features:Rain Gutters
- Foundation Description:Slab
- Levels:2 Story
Schools
- High school:Desoto Central
- Middle school:Desoto Central
- Elementary school:Desoto Central
Utilities
- Water:Public
- Sewer:Public Sewer, Sewer Connected
Finances and disclosures
- Price:$379,900
- Price per sq. ft.:$197.97
Features and amenities
- Amenities:Ceiling Fan(s), Crown Molding, Granite Counters, Open Floorplan, Walk-In Closet(s)
Parking
- Total parking spaces:2
- Garage:Yes
- Garage spaces:2
New listings near 2556 Saint George Cove
- New
$362,000Active4 beds 3 baths2,546 sq. ft.8493 Cross Over Road, Southaven, MS 38672
MLS# 4144852Listed by: INTEGRITY REAL ESTATE SERVICES - New
$149,900Active3 beds 1 baths1,000 sq. ft.1590 E Gilford Cove, Southaven, MS 38671
MLS# 4144756Listed by: MAINSTAY BROKERAGE, LLC - New
$298,500Active3 beds 2 baths1,768 sq. ft.1950 Pecan Grove Drive, Southaven, MS 38671
MLS# 4144740Listed by: KELLER WILLIAMS - New
$240,000Active3 beds 2 baths1,654 sq. ft.6760 Southern Pine Drive, Southaven, MS 38671
MLS# 4144664Listed by: REAL ESTATE AGENCY LLC - New
$269,900Active3 beds 3 baths1,684 sq. ft.7212 N Swinnea Ridge, Southaven, MS 38671
MLS# 4144676Listed by: CAPSTONE REALTY SERVICES - New
$459,000Active5 beds 4 baths3,691 sq. ft.4669 Dixie Lynn Drive, Southaven, MS 38671
MLS# 4144620Listed by: TURN KEY REALTY GROUP LLC - New
$224,900Active2 beds 2 baths1,246 sq. ft.5422 Worth Cove, Southaven, MS 38671
MLS# 4144603Listed by: CRYE-LEIKE OF MS-OB - New
$180,000Active3 beds 1 baths1,004 sq. ft.1778 Mississippi Valley Boulevard, Southaven, MS 38671
MLS# 4144466Listed by: AUSTIN REALTY GROUP, INC-HER - New
$305,000Active3 beds 2 baths2,063 sq. ft.8898 Kathryn Grace Drive, Southaven, MS 38671
MLS# 4144397Listed by: KELLER WILLIAMS REALTY - MS - New
$230,000Active4 beds 2 baths1,632 sq. ft.2023 Cresthill Drive, Southaven, MS 38671
MLS# 4144388Listed by: CRYE-LEIKE HERNANDO