Lot 1 Bruce industrial Arden Drive, Belgrade, MT 59714
Local realty services provided by:ERA Landmark Real Estate
Listed by: justin joyner, jason mascari
Office: montana land buyer realty
MLS#:407277
Source:MT_BZM
Price summary
- Price:$559,000
- Monthly HOA dues:$58.33
About this home
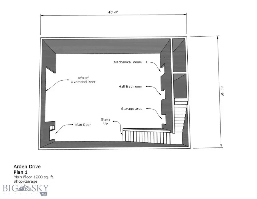
Bruce Industrial Park Commercial Property Opportunity! Lot 1 has an existing septic & drainfield. Lot 2 is also available- ask about pricing for both lots together!
Property Overview
Located in Bruce Industrial Park, Belgrade, MT, this property offers a generous 1.14 acres zoned for industrial use. The I (industrial) zoning permits a broad range of activities, including cannabis cultivation, veterinary services, warehouse operations, and storage facilities, among other possibilities. A full zoning description is available for review.
Utilities and Infrastructure
Engineering plans for both a well and septic system have already been completed, streamlining development processes. The property is currently approved for one living unit, which includes well and septic services, in addition to the various uses allowed under City of Belgrade zoning regulations.
Development Potential
This commercial lot presents significant development opportunities within Belgrade’s Bruce Industrial Park. Preliminary drawings are available for prospective buyers, or you may bring your own concepts to tailor the property to your needs. With over an acre of land, there is ample room for a variety of ideas and possibilities.
Adjoining Property Availability
An adjoining acre is also for sale by the same owner, offering the flexibility to develop one or both lots to suit your objectives. The potential to expand or customize your investment is truly limitless with these available parcels. Adjoining property is MLS# 407276...
Contact an agent
Home facts
- Listing ID #:407277
- Added:152 day(s) ago
- Updated:April 25, 2026 at 03:09 PM
Structure and exterior
- Lot area:1.14 Acres
Finances and disclosures
- Price:$559,000
- Tax amount:$3,293 (2025)
New listings near Lot 1 Bruce industrial Arden Drive
- New
$299,000Active1 beds 1 baths760 sq. ft.129 Village Drive #301B, Belgrade, MT 59714
MLS# 410071Listed by: KELLER WILLIAMS MONTANA REALTY - Open Sun, 12 to 3pmNew
$635,000Active4 beds 3 baths2,208 sq. ft.707 Thrice Loop, Belgrade, MT 59714
MLS# 410609Listed by: BIG SKY SOTHEBY'S - BOZEMAN - New
$4,299,000Active654 Acres1847 Maudlow Road, Belgrade, MT 59714
MLS# 410315Listed by: SAGE LAND COMPANY LLC. - New
$1,950,000Active-- beds -- baths203 Fletching Way, Belgrade, MT 59714
MLS# 410552Listed by: BIG SKY SOTHEBY'S - BOZEMAN
$559,900Pending3 beds 2 baths1,389 sq. ft.814 Accolade Loop, Belgrade, MT 59714
MLS# 410377Listed by: KELLER WILLIAMS MONTANA REALTY- New
$599,900Active4 beds 3 baths1,836 sq. ft.866 Accolade Loop, Belgrade, MT 59714
MLS# 408690Listed by: KELLER WILLIAMS MONTANA REALTY - Open Sun, 1 to 3pmNew
$579,900Active3 beds 3 baths1,596 sq. ft.833 Accolade Loop, Belgrade, MT 59714
MLS# 408697Listed by: KELLER WILLIAMS MONTANA REALTY - New
$579,900Active3 beds 3 baths1,596 sq. ft.837 Accolade Loop, Belgrade, MT 59714
MLS# 408699Listed by: KELLER WILLIAMS MONTANA REALTY - New
$692,600Active3 beds 3 baths1,927 sq. ft.1511 Gunslinger Lane, Belgrade, MT 59714
MLS# 410540Listed by: DONNIE OLSSON REAL ESTATE - New
$504,900Active3 beds 2 baths1,388 sq. ft.1106 Sunrise Drive, Belgrade, MT 59714
MLS# 410521Listed by: SMALL DOG REALTY