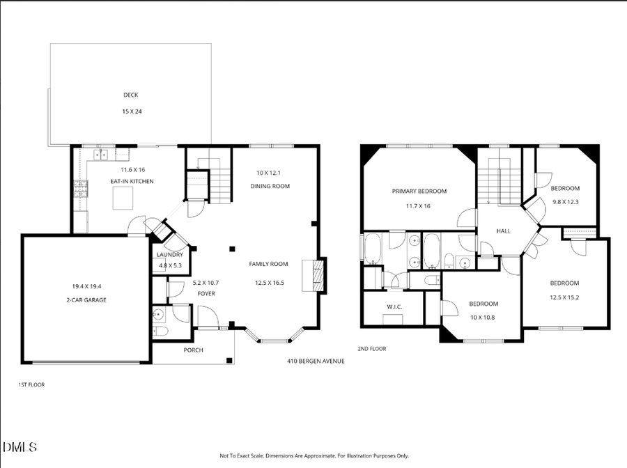
410 Bergen Avenue, Apex, NC 27502
Local realty services provided by:ERA Strother Real Estate
410 Bergen Avenue,Apex, NC 27502
$485,000
- 4 Beds
- 3 Baths
- 1,802 sq. ft.
- Single family
- Active
Listed by: fahryn leigh tripp
Office: realty world carolina prop
MLS#:10161864
Source:RD
Price summary
- Price:$485,000
- Price per sq. ft.:$269.15
- Monthly HOA dues:$36.17
About this home
Welcome to this beautifully maintained 4 bedroom, 2.5 bath home in the highly desirable Holland Crossing community of Apex, North Carolina, offered at $485,000. With approximately 1,800 square feet of thoughtfully designed living space, this home blends comfort, style, and convenience in a peaceful setting.
From the moment you arrive, you'll appreciate the quiet street and the charming view of green space right across the street perfect for enjoying your morning coffee from the front porch. Inside, the home is filled with natural light, highlighted by large windows and vaulted ceilings in the spacious primary bedroom, creating an open and airy feel throughout.
The main living area features a cozy natural gas log fireplace, while the kitchen shines with updated appliances including an oven and microwave (2020), refrigerator (2022), garbage disposal (2022), and a brand new dishwasher (2025). New faucets and stylish light fixtures in the kitchen and living room add a modern touch, and the entire home has been freshly painted for a move in ready experience.
Step outside to your private backyard retreat, complete with a large Trex composite deck ideal for entertaining or relaxing beautiful landscaping, a garden shed, and a fenced yard that has been recently stained and weatherproofed.
Major system updates provide peace of mind, including a roof replaced in 2019 and a fully upgraded HVAC system and ductwork in 2025, backed by a 10 year warranty on the A/C and a 20 year warranty on the furnace.
Located less than 2 miles from Apex Nature Park and just 4 miles from the American Tobacco Trail, outdoor enthusiasts will love the easy access to recreation. The Apex Greenway system connects nearby neighborhoods, schools, and shopping, while downtown Apex is just a quick 10 minute drive. Jordan Lake, perfect for swimming and boating, is only 20 minutes away
Holland Crossing offers a vibrant community atmosphere with amenities including two neighborhood pools, a playground, and HOA-hosted events such as movie nights and food trucks. Even summertime brings a nostalgic touch with regular visits from ice cream trucks.
Additional highlights include a 2-car garage and access to high speed fiber internet through Google or AT&T.
This home truly offers the perfect balance of modern updates, natural beauty, and community charm, an exceptional opportunity in one of Apex's most inviting neighborhoods. Note: The horse farm behind the property will potentially be developed soon. There is a natural area and a privacy fence as a buffer....
Contact an agent
Home facts
- Year built:1997
- Listing ID #:10161864
- Added:1 day(s) ago
- Updated:April 23, 2026 at 06:04 PM
Rooms and interior
- Bedrooms:4
- Total bathrooms:3
- Full bathrooms:2
- Half bathrooms:1
- Rooms Total:4
- Flooring:Vinyl
- Bathrooms Description:Bathtub/Shower Combination
- Kitchen Description:Dishwasher, Disposal, Microwave, Refrigerator
- Living area:1,802 sq. ft.
Heating and cooling
- Cooling:Central Air
- Heating:Natural Gas
- Central air:Yes
Structure and exterior
- Roof:Shingle
- Year built:1997
- Building area:1,802 sq. ft.
- Lot Features:Back Yard
- Construction Materials:Vinyl Siding
- Exterior Features:Fenced Yard, Storage
- Foundation Description:Slab
- Levels:Two
Schools
- High school:Wake - Apex Friendship
- Middle school:Wake - Lufkin Road
- Elementary school:Wake - Olive Chapel
Utilities
- Water:Public
- Sewer:Public Sewer
Finances and disclosures
- Price:$485,000
- Price per sq. ft.:$269.15
- Tax amount:$3,840
Features and amenities
- Appliances:Dishwasher, Disposal, Microwave, Refrigerator
- Amenities:Pool
Parking
- Garage:Yes
- Garage spaces:2
New listings near 410 Bergen Avenue
- New
$480,000Active3 beds 3 baths1,663 sq. ft.1211 Indian Trail, Apex, NC 27502
MLS# 10162073Listed by: EXP REALTY, LLC - C - New
$1,100,000Active4 beds 4 baths4,057 sq. ft.4004 Frontenac Court, Apex, NC 27539
MLS# 10162057Listed by: REDFIN CORPORATION - New
$640,000Active3 beds 3 baths2,164 sq. ft.809 Town Side Drive, Apex, NC 27502
MLS# 10161966Listed by: COLDWELL BANKER ADVANTAGE - New
$340,000Active3 beds 3 baths1,499 sq. ft.102 Galimore Way, Apex, NC 27502
MLS# 10162002Listed by: REDFIN CORPORATION - New
$730,000Active5 beds 3 baths2,920 sq. ft.1034 Holtridge Drive, Apex, NC 27523
MLS# 10161926Listed by: THE WOLGIN REAL ESTATE GROUP - Coming Soon
$749,499Coming Soon4 beds 3 baths215 Kanewind Terrace, Apex, NC 27523
MLS# 10161907Listed by: BALLENA LLC - Coming Soon
$649,999Coming Soon5 beds 3 baths437 Field Glow Lane, Apex, NC 27539
MLS# 10161888Listed by: LOVETTE PROPERTIES LLC - Open Sat, 1 to 3pmNew
$660,000Active4 beds 3 baths2,807 sq. ft.1916 Kings Knot Court, Apex, NC 27502
MLS# 10161817Listed by: BERKSHIRE HATHAWAY HOMESERVICE - New
$479,605Active3 beds 3 baths2,045 sq. ft.3116 Cathedral Comb Drive #245, Apex, NC 27502
MLS# 10161854Listed by: M/I HOMES OF RALEIGH LLC