321 Brandywine Road, Chapel Hill, NC 27516
Local realty services provided by:ERA Live Moore
321 Brandywine Road,Chapel Hill, NC 27516
$615,000
- 4 Beds
- 3 Baths
- 2,697 sq. ft.
- Single family
- Pending
Listed by: anna fadel
Office: peak, swirles & cavallito
MLS#:10150840
Source:RD
Price summary
- Price:$615,000
- Price per sq. ft.:$228.03
About this home
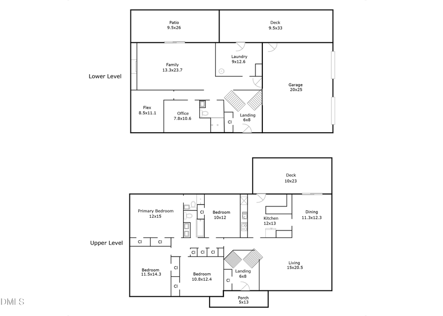
Bright and beautifully updated mid-century home in the popular Heritage Hills neighborhood. The main level features an open living/dining area with vaulted ceilings, where a glass door leads to a large two-level deck overlooking the peaceful backyard. The updated kitchen includes stainless steel appliances, granite countertops, and a generous breakfast bar. The main floor also offers four bedrooms, including a primary suite, plus a second full bath with a double vanity.
Need space for cars, hobbies, or extended family? The lower level provides exceptional flexibility with a large family room and brick fireplace, a full bath, two flex rooms, a dedicated laundry room, patio access, and direct entry from the climate-controlled two-car garage.
This home has been thoughtfully modernized for years of energy-efficient, low-maintenance living. Notable upgrades since 2023 include: new roof; hybrid heat pump water heater; induction range; refrigerator, dishwasher, and microwave; granite countertops; washer and dryer; and an EV charger. All three bathrooms feature new vanities, lighting, and toilets.
Enjoy a short walk to the Heritage Hills Recreation Club with pool and tennis. Low county taxes (outside city limits) and CH/Carrboro Public Schools....
Contact an agent
Home facts
- Year built:1967
- Listing ID #:10150840
- Added:6 day(s) ago
- Updated:March 13, 2026 at 12:37 AM
Rooms and interior
- Bedrooms:4
- Total bathrooms:3
- Full bathrooms:3
- Rooms Total:12
- Flooring:Carpet, Tile, Vinyl
- Dining Description:Eat-in Kitchen
- Bathrooms Description:Bathtub/Shower Combination
- Kitchen Description:Electric Range, Microwave, Refrigerator, Stainless Steel Appliance(s)
- Basement Description:Daylight, Exterior Entry, Finished, Full, Walk-Out Access
- Living area:2,697 sq. ft.
Heating and cooling
- Cooling:Central Air
- Heating:Forced Air, Natural Gas
- Central air:Yes
Structure and exterior
- Roof:Shingle
- Year built:1967
- Building area:2,697 sq. ft.
- Lot area:0.41 Acres
- Lot Features:Hardwood Trees
- Architectural Style:Contemporary
- Construction Materials:Brick Veneer
- Exterior Features:Deck, Patio
- Foundation Description:Slab
- Levels:Multi/Split
Schools
- High school:CH/Carrboro - Carrboro
- Middle school:CH/Carrboro - Grey Culbreth
- Elementary school:CH/Carrboro - Northside
Utilities
- Water:Public
- Sewer:Public Sewer
Finances and disclosures
- Price:$615,000
- Price per sq. ft.:$228.03
- Tax amount:$4,733
Features and amenities
- Appliances:Dryer, Electric Range, Microwave, Refrigerator, Stainless Steel Appliance(s), Washer, Water Heater
- Laundry features:Dryer, Laundry Room, Lower Level, Washer
- Amenities:Ceiling Fan(s), Entrance Foyer, Granite Counters, Quartz Counters, Vaulted Ceiling(s), Washer, Water Heater
- Pool features:Community Pool
Parking
- Parking description:Attached, Driveway, Garage, Garage Faces Side
- Garage:Yes
- Garage spaces:2
New listings near 321 Brandywine Road
- Open Sat, 1 to 3pmNew
$898,900Active4 beds 4 baths3,119 sq. ft.300 Long Meadows Road, Chapel Hill, NC 27516
MLS# 10152351Listed by: COMPASS -- CHAPEL HILL - DURHAM - New
$750,000Active4 beds 4 baths2,221 sq. ft.603 Kensington Drive, Chapel Hill, NC 27514
MLS# 10152368Listed by: BERKSHIRE HATHAWAY HOMESERVICE - New
$849,500Active4 beds 4 baths2,815 sq. ft.506 Bayberry Drive, Chapel Hill, NC 27517
MLS# 10152244Listed by: COLDWELL BANKER ADVANTAGE - New
$615,000Active4 beds 3 baths2,356 sq. ft.109 N Crabtree Knolls, Chapel Hill, NC 27514
MLS# 10152329Listed by: COOKE PROPERTY - Open Sat, 11am to 1pmNew
$225,000Active2 beds 3 baths1,326 sq. ft.250 S Estes Drive #31, Chapel Hill, NC 27514
MLS# 10152239Listed by: CENTURY 21 TRIANGLE GROUP - Open Sat, 1 to 3pmNew
$510,000Active4 beds 3 baths2,030 sq. ft.15 Abbey Road, Chapel Hill, NC 27516
MLS# 10152208Listed by: COMPASS -- RALEIGH - New
$565,000Active3 beds 3 baths2,173 sq. ft.9906 Oak Hollow Road, Chapel Hill, NC 27516
MLS# 10152226Listed by: COLDWELL BANKER ADVANTAGE - New
$1,100,000Active4 beds 3 baths3,597 sq. ft.105 Millingport Court, Chapel Hill, NC 27517
MLS# 10152173Listed by: URBAN DURHAM REALTY - Open Sun, 1 to 3pmNew
$1,200,000Active3 beds 3 baths2,680 sq. ft.32 Mount Bolus Road, Chapel Hill, NC 27514
MLS# 10152097Listed by: HOMEZU - Open Sun, 1 to 3pmNew
$750,000Active4 beds 2 baths2,084 sq. ft.1109 Sourwood Circle, Chapel Hill, NC 27517
MLS# 10152126Listed by: COMPASS -- CHAPEL HILL - DURHAM