85 Summersweet Lane, Chapel Hill, NC 27516

Local realty services provided by:ERA Live Moore
85 Summersweet Lane,Chapel Hill, NC 27516
$550,000
  • 3 Beds
  • 3 Baths
  • 2,036 sq. ft.
  • Single family
  • Active
Listed by: jen winkler
Office: keller williams elite realty
MLS#:10160284
Source:RD

Price summary

  • Price:$550,000
  • Price per sq. ft.:$270.14
  • Monthly HOA dues:$201

About this home

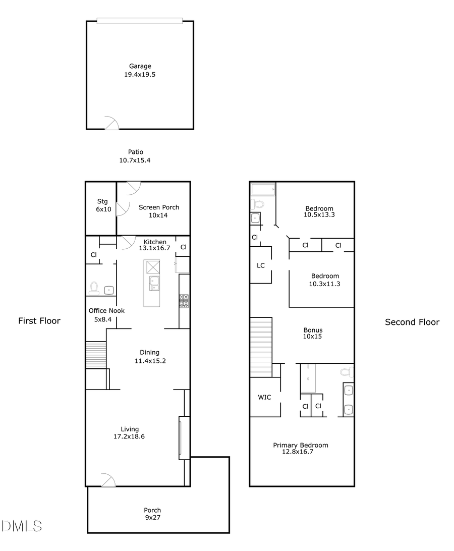
Charming corner-lot home in sought-after Briar Chapel, just moments from the community's top amenities! A welcoming wraparound porch, paired with beautifully maintained landscaping and rock wall garden beds, sets the tone from the moment you arrive. Inside, a light-filled, airy interior showcases site-finished hardwoods throughout the main level. The family room features a custom TV nook with built-in shelving, flowing seamlessly into the dining area and kitchen with granite countertops, a spacious island, and a pocket office with additional custom built-ins. Second floor features the primary suite complete with bathroom that offers dual vanities and a walk-in shower. Two additional bedrooms, a full bath, loft space, and laundry complete the second floor. Enjoy indoor/outdoor living with a screened porch off the kitchen overlooking a thoughtfully-designed patio area--perfect for relaxing or entertaining. Resort-style Briar Chapel amenities include two pools, community gardens,...

Contact an agent

contact an agent

Yes, I would like more information. Please use and/or share my information with an ERA®  affiliated agent to contact me about my real estate needs. By clicking Send message, I request to be contacted by phone or text message and consent to being contacted by automated means. I understand that my consent to receive calls or texts is not a condition of purchasing any property, goods, or services. Alternatively, I understand that I can access real estate services by email or I can contact the agent myself.

If an ERA®  affiliated agent is not available in the area where I need assistance, I agree to be contacted by a real estate agent affiliated with another brand owned or licensed by Anywhere Real Estate (BHGRE® , CENTURY 21® , Coldwell Banker® , Corcoran® , Sotheby's International Realty® ).
 I acknowledge that I have read and agree to theTerms of useandPrivacy notice

Home facts

  • Year built:2012
  • Listing ID #:10160284
  • Added:1 day(s) ago
  • Updated:April 16, 2026 at 01:48 PM

Rooms and interior

  • Bedrooms:3
  • Total bathrooms:3
  • Full bathrooms:2
  • Half bathrooms:1
  • Rooms Total:11
  • Flooring:Carpet, Hardwood, Tile
  • Dining Description:Eat-in Kitchen, Kitchen/Dining Room Combination, Living/Dining Room Combination
  • Bathrooms Description:Bathtub/Shower Combination, Double Vanity, Shower Only, Walk-In Shower, Water Closet
  • Kitchen Description:Dishwasher, ENERGY STAR Qualified Appliances, Exhaust Fan, Free-Standing Refrigerator, Gas Range, Gas Water Heater, Microwave, Range, Refrigerator, Stainless Steel Appliance(s)
  • Living area:2,036 sq. ft.

Heating and cooling

  • Cooling:Ceiling Fan(s), Central Air, ENERGY STAR Qualified Equipment, Gas, Zoned
  • Heating:Central, Forced Air, Natural Gas
  • Central air:Yes

Structure and exterior

  • Roof:Shingle
  • Year built:2012
  • Building area:2,036 sq. ft.
  • Lot area:0.11 Acres
  • Lot Features:Back Yard, Corner, Front Yard, Garden, Landscaped
  • Architectural Style:Charleston
  • Construction Materials:Fiber Cement
  • Exterior Features:Front Porch, Garden, Patio, Porch, Rear Porch, Screened, Wrap Around
  • Foundation Description:Slab
  • Levels:Two

Schools

  • High school:Chatham - Seaforth
  • Middle school:Chatham - Margaret B Pollard
  • Elementary school:Chatham - Chatham Grove

Utilities

  • Water:Public, Water Connected
  • Sewer:Public Sewer, Sewer Connected

Finances and disclosures

  • Price:$550,000
  • Price per sq. ft.:$270.14
  • Tax amount:$3,814

Features and amenities

  • Appliances:Dishwasher, Dryer, ENERGY STAR Qualified Appliances, Exhaust Fan, Free-Standing Refrigerator, Gas Range, Gas Water Heater, Microwave, Range, Refrigerator, Stainless Steel Appliance(s), Tankless Water Heater, Washer
  • Laundry features:Dryer, Electric Dryer Hookup, Laundry Closet, Upper Level, Washer, Washer Hookup
  • Amenities:Bookcases, Built-in Features, Ceiling Fan(s), Clubhouse, Gas Water Heater, Granite Counters, High Speed Internet, Kitchen Island, Management, Open Floorplan, Pantry, Playground, Pool, Recessed Lighting, Smooth Ceilings, Tankless Water Heater, Tennis Court(s), Trail(s), Walk-In Closet(s), Washer
  • Pool features:Community, In Ground, Salt Water

Parking

  • Parking description:Concrete, Covered, Detached, Driveway, Garage, Garage Door Opener, Garage Faces Rear, Off Street, Paved
  • Garage:Yes
  • Garage spaces:2
MLS LogoListings marked with a Doorify MLS icon are provided courtesy of the Doorify MLS, of North Carolina, Internet Data Exchange Database. Brokers make an effort to deliver accurate information, but buyers should independently verify any information on which they will rely in a transaction. The listing broker shall not be responsible for any typographical errors, misinformation, or misprints, and they shall be held totally harmless from any damages arising from reliance upon this data. This data is provided exclusively for consumers’ personal, non-commercial use. Copyright 2026 Doorify MLS of North Carolina. All rights reserved.