2915 Fawn Avenue, Durham, NC 27705
Local realty services provided by:ERA Parrish Realty Legacy Group
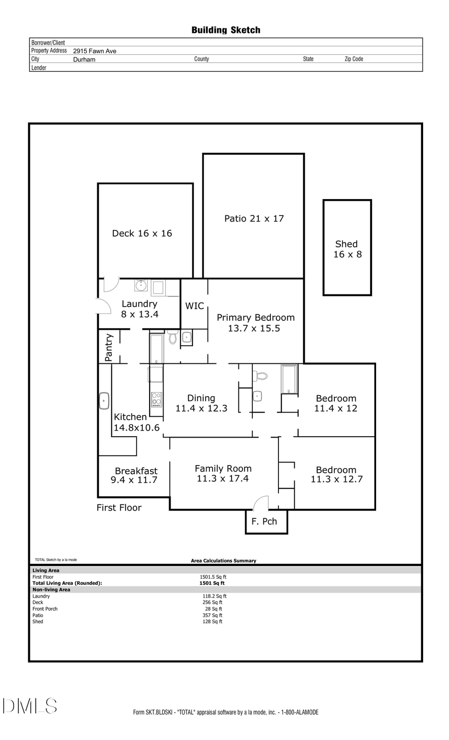
2915 Fawn Avenue,Durham, NC 27705
$470,000
- 3 Beds
- 2 Baths
- 1,501 sq. ft.
- Single family
- Active
Listed by: andrew jared dames
Office: century 21 triangle group
MLS#:10128435
Source:RD
Price summary
- Price:$470,000
- Price per sq. ft.:$313.12
About this home
Welcome to this charming single-level home set on just over half an acre in a prime Durham location - extraordinarily convenient to I-85, I-40, and only minutes from Duke University, Duke Medical Center, offices, Costco, grocery stores, and more. This thoughtfully updated 3-bedroom, 2-bath home offers an ideal blend of style and function. Step inside to find gleaming hardwood floors flowing through the living and dining rooms and into two of the bedrooms, creating a warm and inviting atmosphere. The impressive kitchen is a true highlight - beautifully updated with modern appliances, stylish finishes, and a walk-in pantry that makes everyday living a breeze. Step outside and you'll instantly see the potential of the expansive fenced backyard - a rare find offering both space and privacy. Whether you dream of entertaining on the large deck and patio, gardening, or building an additional home or ADU, there's room to make it your own. No HOA! With its single-story layout, desirable updates, and unbeatable location, this home is a perfect match for those seeking comfort today and opportunity for tomorrow.
Contact an agent
Home facts
- Year built:1952
- Listing ID #:10128435
- Added:59 day(s) ago
- Updated:December 16, 2025 at 05:21 PM
Rooms and interior
- Bedrooms:3
- Total bathrooms:2
- Full bathrooms:2
- Living area:1,501 sq. ft.
Heating and cooling
- Cooling:Central Air, Electric
- Heating:Central, Exhaust Fan, Forced Air, Gas Pack, Natural Gas
Structure and exterior
- Roof:Shingle
- Year built:1952
- Building area:1,501 sq. ft.
- Lot area:0.52 Acres
Schools
- High school:Durham - Riverside
- Middle school:Durham - Carrington
- Elementary school:Durham - Hillandale
Utilities
- Water:Public
- Sewer:Public Sewer
Finances and disclosures
- Price:$470,000
- Price per sq. ft.:$313.12
- Tax amount:$3,688
New listings near 2915 Fawn Avenue
- New
$389,000Active3 beds 2 baths1,483 sq. ft.2802 Glover Road, Durham, NC 27703
MLS# 10137416Listed by: NEST REALTY OF THE TRIANGLE - New
$275,000Active2 beds 3 baths3204 Coachmans Way, Durham, NC 27705
MLS# 10137396Listed by: KELLER WILLIAMS ELITE REALTY - New
$259,800Active2 beds 1 baths897 sq. ft.2113 Aiken Avenue, Durham, NC 27704
MLS# 10137394Listed by: CAROLINA HOME PARTNERS BY EXP REALTY - Coming Soon
$330,000Coming Soon3 beds 2 baths14 E Gleewood Place, Durham, NC 27713
MLS# 10137390Listed by: FATHOM REALTY NC, LLC - New
$675,000Active6 beds 4 baths2,674 sq. ft.604 Homeland Avenue, Durham, NC 27707
MLS# 10137377Listed by: LP REALTY - New
$85,000Active0.69 Acres620 Hurley Road, Durham, NC 27703
MLS# 10137364Listed by: PROMISE REALTY GROUP
$304,990Pending3 beds 3 baths1,558 sq. ft.3004 Hammer Creek Road, Durham, NC 27704
MLS# 10137356Listed by: PULTE HOME COMPANY LLC- New
$335,000Active3 beds 2 baths710 Constitution Drive #A, Durham, NC 27705
MLS# 1204134Listed by: CALL IT CLOSED INTERNATIONAL REALTY - New
$259,900Active2 beds 2 baths1,025 sq. ft.120 Sparger Springs Lane, Durham, NC 27705
MLS# 10137318Listed by: MY DOG TESS, INC. - New
$810,000Active4 beds 3 baths3,416 sq. ft.100 Pathwood Lane, Durham, NC 27705
MLS# 10137298Listed by: KELLER WILLIAMS ELITE REALTY