4205 Hayward Road, Durham, NC 27705
Local realty services provided by:ERA Pacesetters
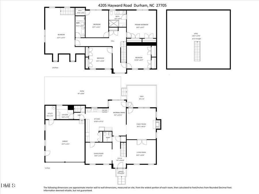
4205 Hayward Road,Durham, NC 27705
$749,000
- 4 Beds
- 3 Baths
- 3,204 sq. ft.
- Single family
- Pending
Listed by: martha hay
Office: coldwell banker advantage
MLS#:10133118
Source:RD
Price summary
- Price:$749,000
- Price per sq. ft.:$233.77
- Monthly HOA dues:$73.33
About this home
This charming Jay Kelly-built traditional home is situated on a quiet street in the desirable Garrett Farms community. Spanning 3,204 sq ft, it features four spacious bedrooms and 2.5 bathrooms, offering a blend of timeless charm and modern comforts.
The main level welcomes you with a gracious foyer, 9-foot ceilings, and hardwood floors, leading to formal living and dining areas. The oversized family room boasts a masonry gas-log fireplace and double doors that open to a versatile living/study space. The bright kitchen includes a separate breakfast room and easy access to the backyard.
Upstairs, you'll find four well-sized bedrooms, including a primary suite, along with a large bonus room accessible from a convenient back staircase—ideal for a playroom, media, or home office. A walk-up floored attic provides excellent storage options and potential for future expansion.
Enjoy outdoor entertaining on the large deck and patio overlooking a fenced, landscaped backyard that offers privacy and space to relax. Additional features include a two-car garage, main-level laundry, and city utilities.
Located just minutes from Duke University, Southpoint Mall, 15-501, and I-40, this home combines a peaceful neighborhood atmosphere with daily convenience—an excellent opportunity in one of Durham's established communities.
Contact an agent
Home facts
- Year built:1991
- Listing ID #:10133118
- Added:45 day(s) ago
- Updated:December 30, 2025 at 05:42 AM
Rooms and interior
- Bedrooms:4
- Total bathrooms:3
- Full bathrooms:2
- Half bathrooms:1
- Living area:3,204 sq. ft.
Heating and cooling
- Cooling:Ceiling Fan(s), Central Air
- Heating:Heat Pump, Natural Gas
Structure and exterior
- Roof:Shingle
- Year built:1991
- Building area:3,204 sq. ft.
- Lot area:0.35 Acres
Schools
- High school:Durham - Jordan
- Middle school:Durham - Githens
- Elementary school:Durham - Forest View
Utilities
- Water:Public
- Sewer:Public Sewer
Finances and disclosures
- Price:$749,000
- Price per sq. ft.:$233.77
- Tax amount:$5,001
New listings near 4205 Hayward Road
- New
$324,990Active3 beds 3 baths1,804 sq. ft.513 Hester Road, Durham, NC 27703
MLS# 10138569Listed by: LENNAR CAROLINAS LLC - New
$344,990Active3 beds 3 baths1,804 sq. ft.517 Hester Road, Durham, NC 27703
MLS# 10138474Listed by: LENNAR CAROLINAS LLC - New
$394,000Active3 beds 2 baths1,069 sq. ft.2708 Sarah Avenue, Durham, NC 27707
MLS# 10138475Listed by: DASH CAROLINA - New
$650,000Active1 beds 1 baths520 sq. ft.3513 Cheek Road, Durham, NC 27704
MLS# 10138472Listed by: KELLER WILLIAMS ELITE REALTY - New
$650,000Active17.84 Acres3513 Cheek Road, Durham, NC 27704
MLS# 10138469Listed by: KELLER WILLIAMS ELITE REALTY - New
$360,000Active3 beds 2 baths1,601 sq. ft.604 Bellmeade Bay Drive, Durham, NC 27703
MLS# 10138389Listed by: MARK SPAIN REAL ESTATE - New
$359,500Active3 beds 3 baths1,778 sq. ft.1135 Longitude Drive, Durham, NC 27713
MLS# 10138313Listed by: COLDWELL BANKER HPW - New
$425,000Active3 beds 3 baths1,709 sq. ft.5002 Gaithers Pointe Drive, Durham, NC 27713
MLS# 10138317Listed by: LONG & FOSTER REAL ESTATE INC - New
$489,500Active3 beds 3 baths1,536 sq. ft.711 Mallard Avenue, Durham, NC 27701
MLS# 10138318Listed by: ALLEN TATE / DURHAM - New
$890,000Active5 beds 4 baths3,820 sq. ft.5509 Weston Downs Drive, Durham, NC 27707
MLS# 10138298Listed by: MARK SPAIN REAL ESTATE